
Contemplando el entorno




Dos contenedores -en apariencia monolíticos- superpuestos, cruzados y apoyados sobre una plataforma configuran la vivienda. Elevada sobre el nivel promedio del lote, la casa “domina” el entorno y acentúa su carácter de observatorio.
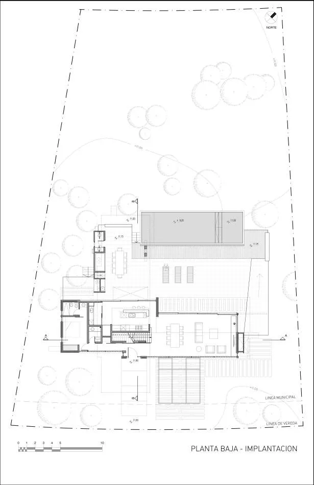
El proyecto entiende y potencia la necesidad de reunión. La casa finalmente se organiza alrededor de un patio, una terraza y una pileta que, cual espejo de agua, refleja multiplicando los efectos de luces naturales.
En planta baja la vivienda se cierra al frente buscando privacidad, negando el ritmo propio del barrio y potenciando la apertura al oeste. El espacio interior se diluye cuando la casa se abre a través de la apertura total de las carpinterías, lo cual genera grandes espacios mixtos, donde “el afuera” y “el adentro” se diluyen a la vez que aumenta el tamaño aparente de la casa. Como en un juego de opuestos, la casa se transforma en contenedores, tabiques y losa de cubierta que sirven de límite para el espacio que se percibe entrando desde el campo lejano.








En planta alta, un vagón que contiene el playroom y los dormitorios vuela sobre la plataforma hacia el contrafrente, generando así la sombra necesaria para las actividades exteriores. Hacia el frente, se extiende buscando integrarse al barrio - aquello que la planta baja niega- al tiempo que parece volar sobre la planta de acceso. Un poco más abajo, otro voladizo en forma de pérgola da escala al espacio exterior y se “estira” hacia la calle proyectando sombras que sirven de escudo solar para los vehículos.
El paso del tiempo y el recorrido del sol califican el espacio enriqueciendo la experiencia sensorial. Las pérgolas y caladuras en el hormigón filtran el sol y proyectan sombras que se manifiestan recorriendo las superficies horizontales y verticales.
Los ambientes son definidos por su tamaño, son neutros y no se revisten. Esta lógica de no determinación de los espacios busca la apropiación flexible de la vivienda por parte del usuario. Las marcas del encofrado y su controlada imperfección se toman como aciertos constructivos: estructura, color y textura se confunden, acentuando el carácter.





El hormigón armado, sin artificios, vuela sobre el terreno y se apoya en una plataforma, contrastando con la casa típica del barrio y caracterizándose como un elemento contundente y tan radical como el paisaje campero.
La vivienda se transforma en el auditorio para contemplar cada atardecer. Tal vez esa sea su mayor virtud: captar el espíritu del campo, por donde cada tarde ¨cae el sol¨.
Fotos: Diego Medina
[ INFORMACIÓN ]
Ubicación: Pinamar.
Sup. Terreno: 1475 m2
Sup. Construida: 290 m2
Año: 2016 - 2017
[PROYECTO]
Estudio Galera Arquitectura.
Arq. A. Galera / Arq. C. Amarante.
Arq. F. Villamil / D. Ballario
www.estudiogalera.com



















EGGER presenta su Colección Decorativa 26+, un espacio para nuevas sensaciones.

Se inauguró la 20° edición de Estilo Pilar con su nueva propuesta Boutique












