
Más que un diseño técnico, la Casa Tao en Puerto Vallarta de HW STUDIO nace de la memoria, la filosofía y el deseo de habitar el mundo con atención, convirtiendo la sombra en un refugio emocional inspirado en la estética japonesa.
**una estética moderna que ya es clásica, funcionalidad, espacios flexiblescapaces de acoger distintos modos de habitar y el bosque como marco, hacen queesta casa diseñada por el estudio galera cumpla un sueño casi imposible:gustarle a todos.
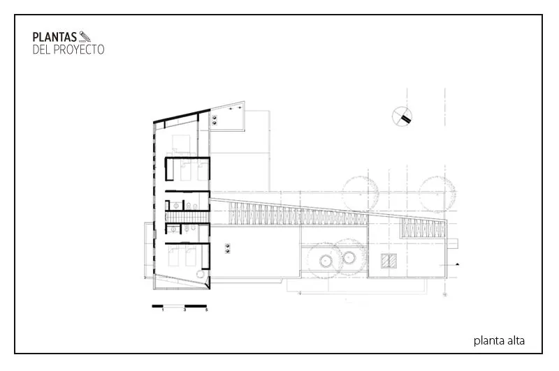
Casas19 de marzo de 2014 Espacio&Confort



Una de las propuestas más fecundas de la arquitectura contemporánea es, quizá, pensar la casa como un traje confeccionado a la medida del cliente. Batin, que fue creada como casa de vacaciones para alquiler y, por lo tanto, para ser usada por clientes “x”, logra adaptarse a las diferentes medidas de esos usuarios anónimos que la estrenarán en ocasiones siempre especiales -retiros o cortes en el trajín citadino-, y hacerlos sentir que ha sido diseñada exclusivamente para cada uno de ellos.
Es como un vestido-comodín de Chanel. Consigue ese efecto hurgando en el placard arquitectónico de los clásicos modernos sobre cuyo abc el equipo de profesionales (integrado por Ariel Galera, Horacio Riga, Diego Ballario y colaboradores) imprime el sello de elegancia simple que identifica al reconocido estudio.



























Más que un diseño técnico, la Casa Tao en Puerto Vallarta de HW STUDIO nace de la memoria, la filosofía y el deseo de habitar el mundo con atención, convirtiendo la sombra en un refugio emocional inspirado en la estética japonesa.

En esta vivienda de fin de semana, la Arq. Gisele Baldoni de Galuss convierte la iluminación en un lenguaje: menos luz, pero mejor pensada, para crear atmósferas que hablan.

Un hogar diseñado a medida, donde la herencia familiar convive con el espíritu relajado del mar y la creatividad.

Entre el bosque y el lago, una casa-puente que une generaciones, naturaleza y vida social.







En Lomas de Zamora, a solo 15 cuadras de la estación, Gini S.A. se posiciona como una empresa en constante crecimiento, dedicada a brindar materiales para la construcción que combinan calidad, variedad y precios accesibles.

Con base en Hudson, Moderna M3 S.A. se consolida como una empresa constructora referente en el diseño y la ejecución de viviendas unifamiliares, obras en barrios privados y desarrollos residenciales en la zona sur del Gran Buenos Aires.

Las cubiertas exteriores también pueden convivir armoniosamente con lo natural.

Faranda inaugura su nueva sucursal en Av. 44 e/149 y 150, San Carlos, acompañada por una renovación completa de su identidad: nueva imagen, propuesta de valor actualizada y una experiencia diseñada para conectar emocionalmente con cada visitante.

Tecnología nacional y accesible que facilita el mantenimiento de piscinas y que le aporta valor a todo proyecto.










