
Casa Emma
Espacio&Confort


Memoria de los autores: Habíamos escuchado mucho acerca del Museo de Paula Rego, diseñado por Eduardo Souto de Moura, y hace algunos años tuvimos la oportunidad de visitarlo. Al entrar al museo, quedamos conmovidos de inmediato. Debajo de una de las pirámides, nos envolvió una sensación de asombro y unaserenidad difícil de describir.
La luz se filtraba con suavidad a través de un alto tragaluz, cayendo como rayos dorados sobre las superficies del museo. Era como si cada rincón del edificio estuviera bañadoen una luz suave, aterciopelada y cálida, que tocaba todo y le daba vida. La manera en que la luz descendía desde esos techos era relajante, creando sombras y reflejos que danzaban en las paredes y los suelos. Recuerdo que, de inmediato, nos sentimos abrazados y protegidos.






En este fascinante mundo de la arquitectura, hay encuentros que nos conmueven, donde la luz y el espacio se convierten en elementos que despiertan emociones y crean experiencias transformadoras. Es en este contexto que presentamos nuestro proyecto, Casa Emma.
En este proyecto, hemos buscado transmitir esa misma sensación de serenidad y calma a través de la luz. Hemos explorado cuidadosamente cómo capturar la luz descendente, creando una experiencia envolvente que busca tocar a quienes ingresan a la casa, tal como fuimos tocadosnosotros.
Sin embargo, a diferencia del museo de Eduardo, Casa Emma la entendemos como un ejercicio de excavación, en el cual extraemos un vacío con forma de troje purépecha, construcciones por las cuales Emma sentía un especial cariño y apego. Por esa razón, la materialidad interior escompletamente de madera, tratando de enfatizar este concepto, hacerlo más evidente y evocador de esas construcciones tradicionales, con un sentido de respeto y continuidad, sin dejar de transmitir la misma sensación de serenidad y calma a través de la luz que sentimos aquel día.
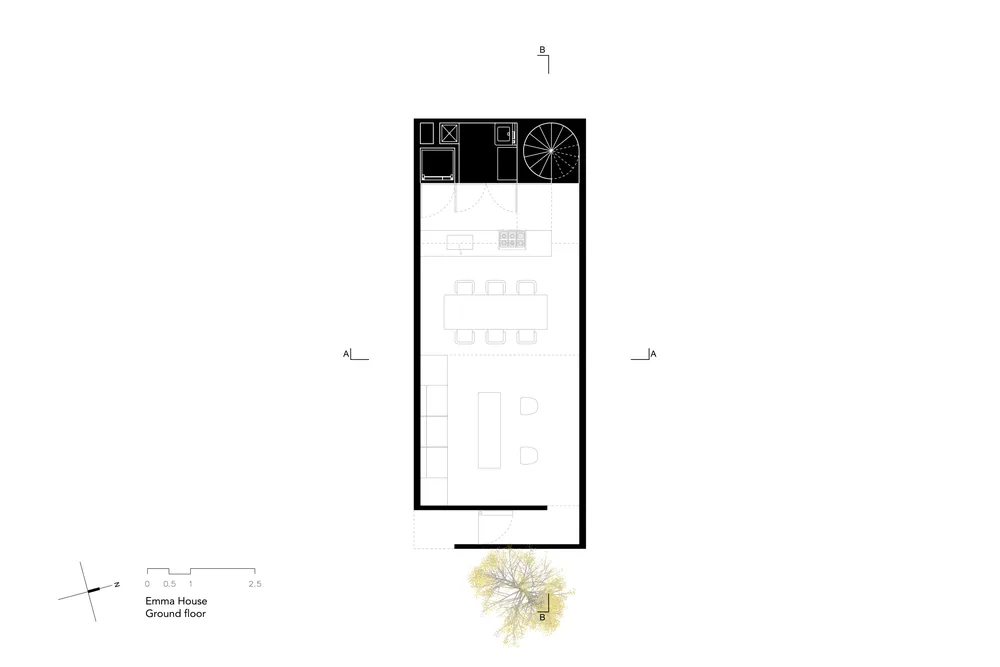
Al estar emplazada sobre un terreno pequeño de 4.00 mts x 10.00 mts de fondo, fue necesario no solo resolver la iluminación y la ventilación de manera zenital, sino también ser muy eficientes con el uso del espacio.
Al frente se colocó un pasillo de acceso que permite la entrada y, al mismo tiempo, oculta la cubierta que se revela más adelante. En el centro, una planta libre aloja la sala, el comedor y la cocina, sin divisiones entre ellos que agoten el espacio. Al fondo se oculta el refrigerador y se ubica el cuarto de máquinas-bodega, además de las circulaciones verticales, o escaleras, que conducen al habitante a un pequeño vestíbulo que lo lleva al baño completo o a la habitación, la cual está alojada sobre un mezzanine.
Este espacio es importante plásticamente, ya que es el único elemento que cambia de materialidad: es un volumen blanco que flota en el interior de la casa. Esta elección de cambio de material busca, de alguna manera, difuminarlo o hacerlo menos pesado, como si se tratara de un trozo de algodón flotando en el espacio; para ello, era necesario que la luz difuminara sus límites por medio del reflejo.
Nuestra intención con este proyecto es brindar a quienes lo visiten una experiencia que despierte emociones y los invite a la contemplación, tratando de trasladar en ellos laexperiencia que tuvimos aquel día en Cascáis.
Esta casa es una invitación a sumergirse en un mundo donde la luz se convierte en el lenguaje de las emociones y la conexión con uno mismo. Un espacio que rinde homenaje a la belleza de la luz, a la historia de Paula y a Emma, quien ahora nos recibe¬ desde ¬el ¬cielo.•
Fotos: César Béjar
PROYECTO
www.hw-studio.com
INFORMACIÓN
Ubicación: Morelia, Michoacán, México
Finalización: Julio de 2024
Sup. construida: 54.35 m² / Sup. del terreno: 40.00 m²
















































