
Conectada con la naturaleza
Espacio&Confort


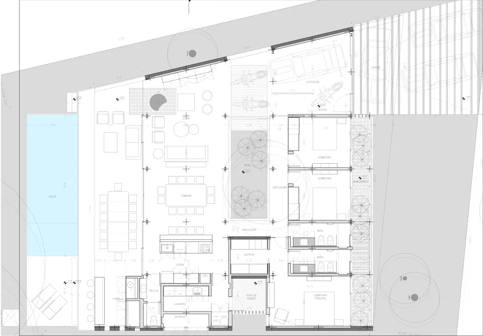
Para el comitente que vive en el centro de La Plata, la pandemia inspiró la necesidad de reconectar con la naturaleza, por lo que una de las premisas fundamentales al momento del encargo fue que desde todos los espacios de la futura casa se sintiera la presencia del verde y otra, que la casa se desarrollara íntegramente en una sola planta.
Dadas las dimensiones del lote y la superficie necesaria para el desarrollo de la casa se predeterminó una silueta que se ciñera a los retiros laterales y de frente para garantizar un jardín posterior de proporciones adecuadas. Un desafío adicional lo constituía el hecho de que la fachada de la casa al jardín no ofrecía la posibilidad de una buena orientación. Para dar respuesta el Estudio Cozzolino proyectó un volumen compacto con una horadación que define un patio verde interior en torno al cual se organiza la casa. Este patio acristalado incorpora iluminación natural al centro de la planta y crea un paisaje interior a la vez que articula el área diurna/social y el área nocturna/privada.






La conexión con la naturaleza pedida por sus dueños se materializa en todos los espacios: un fuelle verde contenido por paravistas de hierro oxidado filtra la relación de los dormitorios con el exterior; una profunda galería garantiza la relación de la cocina y el estar-comedor con el jardín y la pileta solárium.
Se intentó romper el límite entre el interior y el exterior a partir de grandes planos de vidrio templado, la continuidad de los solados y el plano de la cubierta, como así también la generosa apertura de las carpinterías del estar que permiten liberar un vano de más de seis metros. El patio interior crea un oasis verde de frondosa vegetación, rematando en uno de sus extremos en un plano vertical de hormigón, y en el otro en un gran paño vidriado que enmarca el entorno natural.
La cocina abierta actúa como remate visual del estar comedor, y está definida por una importante isla enfrentada a un plano de muebles que esconde detrás de sí el área de servicios, lavadero y toilette. Y el área de dormitorios se materializó como una caja de madera en contraste con el hormigón visto.
Se buscó garantizar la fluidez espacial a través de las visuales cruzadas y de la integración de los espacios, incluido el coche. La presencia de éste en el área social brinda una atmósfera de informalidad acorde al destino de la vivienda. El recibo y el espacio del auto están tamizados por paneles móviles verticales que permiten jugar con situaciones de mayor opacidad y transparencia. Se sacó partido de la doble geometría del lote para generar el semicubierto de acceso.









Desde el punto de vista estructural la casa está definida por una cascara de hormigón armado soportado por una grilla de columnas metálicas de perfiles grey HEB14. Una gran viga invertida permite liberar la galería de apoyos. El hormigón de cubierta y vigas está ejecutado con encofrado fenólico, y los tabiques laterales con encofrado de tablas cepilladas horizontales.
La climatización se resuelve con losa radiante y equipos Split individuales de refrigeración.
En cuanto a su materialidad, las carpinterías son de PVC con foliado de madera y DVH. Los solados interiores y exteriores son de porcelanato gris hormigón de 0,60 x 1,20m. Los revestimientos de madera son de lapacho hidrolaqueado. El mobiliario de cocina es de Cerejeira erosionada color nogal y sus mesadas de granito amazon con pulido efecto leather. Los revestimientos en baño son de microcemento alisado y porcelanato color óxido de cobre. Toda la herrería está pre oxidada y sellada con laca satinada. Todos los artefactos de iluminación están empotrados en losa y todas las puertas son pivotantes ejecutadas a medida El frente de parrilla es de hierro pre-oxidado con acabado de laca satinada y con sistema plegable contrapesado.
Fotos: Lean Arló
PROYECTO
Estudio Cozzolino / Arq. César Cozzolino
Arq. colaboradores: M. Visintin, L. Rosa Pace, R. Martínez Damonte
Ig: @estudiocozzolino
INFORMACIÓN
Ubicación: City Bell Chico
Año: 2021-2022
Superficie lote: 784,1 m²
Sup. const. cubierta: 185 m²/semi: 78 m²
















EGGER presenta su Colección Decorativa 26+, un espacio para nuevas sensaciones.

Se inauguró la 20° edición de Estilo Pilar con su nueva propuesta Boutique





















