
Entre el bosque y el lago, una casa-puente que une generaciones, naturaleza y vida social.
**costa esmeralda. constituirse en el confortable espacio de descanso de todauna familia y ocupar la menor parte del terreno posible. dos objetivos que,con el inconfundible sello del estudio galera, esta casa cumple con admirableprecisión.
Casas20 de mayo de 2014 Espacio&Confort



Cualquier amante de las escapadas de fin de semana y los paisajes marítimos debería viajar hacia el este de la provincia de Buenos Aires y dejarse sorprender por la belleza de Costa Esmeralda. Esta urbanización balnearia es la más austral del Partido de la Costa y ha sido bendecida con un paisaje agreste de médanos prominentes, pinares y amplias playas que es custodiado con igual celo, tanto por quienes optaron por construir allí su refugio de la cada vez más congestionada urbe como por sus escasos residentes.
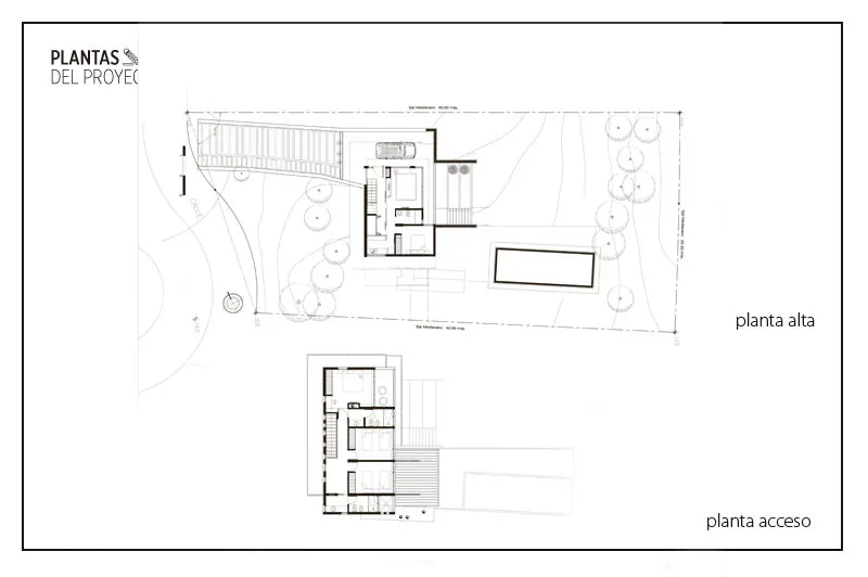
En ese entorno de edificaciones separadas por obligados espacios verdes, se levanta esta casa diseñada de acuerdo a dos objetivos en apariencia simples pero que, bien mirados, encierran una contradicción. Por un lado, brindar espacios de reunión y también privacidad para cada uno de los miembros de la familia propietaria; por otro, hacerlo destinando a ello la menor cantidad de metros posibles de un predio que, además, se buscó mantener intacto.
El predio de 975 m², cuenta con algunos pinos en el frente y una marcada depresión que va desde el fondo hacia la calle. Sacando partido de estas características fue que los profesionales del estudio integrado por Ariel Galera, Horacio Riga y Diego Ballario, junto a otros colaboradores, diseñaron la casa que usted ve.























Entre el bosque y el lago, una casa-puente que une generaciones, naturaleza y vida social.

Una vivienda de Fran Silvestre Arquitectos que convierte la sombra en refugio y la luz en paisaje.

La casa diseñada por MORA HUGHES arquitectos en Mendoza combina estética nórdica, la calidez de la madera y la música que marca el pulso de cada encuentro.

Estuvimos con la Arq Carolina Esnaola recorriendo una obra que realizó en el Quimilar. Un patio interno que divide el ambiente principal y llena de luz la casa.







En tiempos de vacas flacas, la estrategia no es salir a comprar más vacas, sino aprender a engordar las que ya tenemos.

Un recubrimiento acrílico antideslizante, versátil y resistente, pensado para prevenir accidentes.

Invertir en infraestructura es clave para la productividad, la equidad social y el crecimiento del país. Extracto de la entrevista a Martín Russo, de LFR Constructora.

Distribuidora Galuss, firma especializada en soluciones lumínicas para proyectos profesionales, anuncia la incorporación de dos marcas icónicas del diseño internacional: Luceplan y Artemide.

Tendencias, tecnologías e Innovación en Real Estate y Arquitectura. Jornada de capacitación para desarrollador, inmobiliarios y arquitectos.










