
Más que un diseño técnico, la Casa Tao en Puerto Vallarta de HW STUDIO nace de la memoria, la filosofía y el deseo de habitar el mundo con atención, convirtiendo la sombra en un refugio emocional inspirado en la estética japonesa.




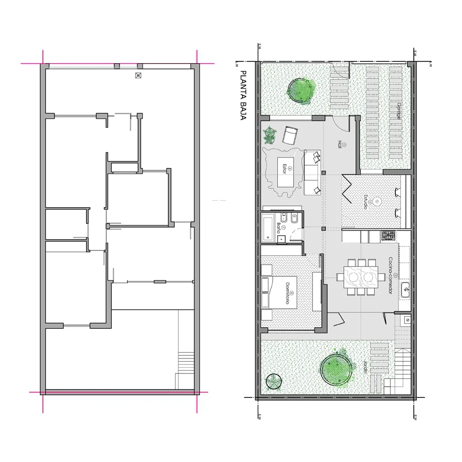
La idea de la reforma de esta vivienda de 94 m², realizada por el estudio Machelett Arquitectos y Mercedes Roza asociada, partió de la premisa de integrar casa/jardín en un mismo espacio. La síntesis de expresión de la casa es la conjugación de los materiales: madera, hierro, vidrio y hormigón, dando como resultado un estilo vintage- fabril. Bajo esta premisa se pusieron en valor muchos de los materiales de la casa, como los pisos de madera y las carpinterías, que se las llevó a su color natural para darles mayor integración al proyecto.
El frente integral de hierro sobre la línea municipal delimita clara y fuertemente, cual muralla, el espacio público de la ciudad con el privado de la vivienda. El portón propone una sutil permeabilidad visual por medio del diseño calado, preservando la intimidad y espacialidad del interior de la vista urbana. A su vez, la sistematización del calado aligera la pesadez del hierro.












Fotos: Leandro Arévalo
[ INFORMACIÓN ]
Tipo de proyecto: Reforma Vivienda unifamiliar
Ubicación: Saavedra, C.A.B.A.
Superficie construida: 94m²
Año: 2016
[ PROYECTO ]
Estudio Arqs. Machelett
Mercedes Roza Asoc.
Teléfono: (011) 42537231 / 42534674
www.machelettarqs.com.ar







Más que un diseño técnico, la Casa Tao en Puerto Vallarta de HW STUDIO nace de la memoria, la filosofía y el deseo de habitar el mundo con atención, convirtiendo la sombra en un refugio emocional inspirado en la estética japonesa.

En esta vivienda de fin de semana, la Arq. Gisele Baldoni de Galuss convierte la iluminación en un lenguaje: menos luz, pero mejor pensada, para crear atmósferas que hablan.

Un hogar diseñado a medida, donde la herencia familiar convive con el espíritu relajado del mar y la creatividad.

Entre el bosque y el lago, una casa-puente que une generaciones, naturaleza y vida social.







Todo es para ayer. Llegamos al fin de año. Esta columna también atravesó la deadline , la fecha de cierre, pero se abrió camino con la contagiosa energía de nuestro querido amigo Damián Garbarini.

La empresa líder en carpinterías y productos arquitectónicos de PVC anuncia a los ganadores de una de las tres categorías participantes del viaje y estadía a la feria VETECO 2026 en España.

En Lomas de Zamora, a solo 15 cuadras de la estación, Gini S.A. se posiciona como una empresa en constante crecimiento, dedicada a brindar materiales para la construcción que combinan calidad, variedad y precios accesibles.

Las cubiertas exteriores también pueden convivir armoniosamente con lo natural.

Tecnología nacional y accesible que facilita el mantenimiento de piscinas y que le aporta valor a todo proyecto.










