
La combinación perfecta entre hormigón visto, madera y vidrio da vida a esta casa que celebra la sencillez y la sofisticación, sin perder de vista el paisaje que la rodea.



Son variadas las formas existentes a la hora de construir una vivienda; se innova en la forma y en los materiales para lograr una mayor seguridad, resistencia y durabilidad.
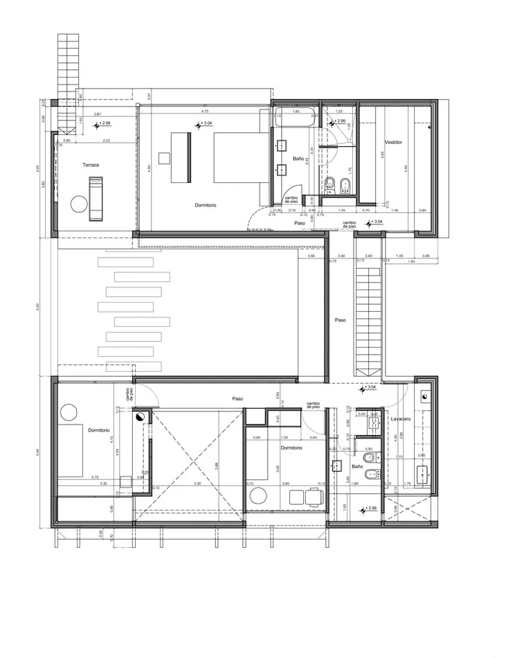
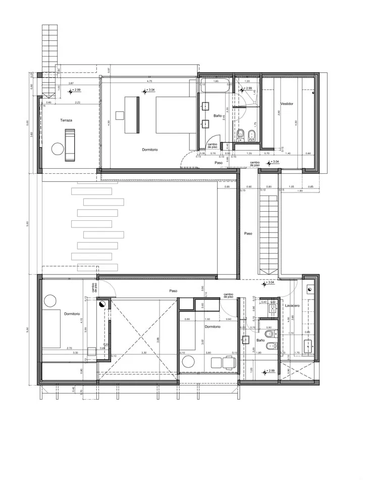
La Casa Torcuato, es una construcción de 273 m² que se destaca por la amplitud de los espacios, la iluminación, los ambientes únicos y por la particularidad de estar totalmente construida en hormigón armado a la vista.
El hormigón se transforma en el principal protagonista de esta casa que deja atrás la forma clásica de construir y juega con las líneas y las formas para idear una fachada imponente y delicada a la vez. Verticalidad y horizontalidad, macizo y suave, luz y sombra, son las principales características que este material consigue poner de manifiesto.















































