
Casa Ardmore



Para esta casa que bordea un callejón en un lote tradicional de Chicago, Kwong Von Glinow invierte la sección residencial tradicional, distribuyendo dormitorios en el primer piso y espacios de estar en el segundo. Este enfoque apoya las formas de vida contemporáneas, enfatizando las áreas comunes, la interconectividad y los espacios de vida y trabajo flexibles que reciben abundante luz natural y se involucran en el contexto urbano circundante.
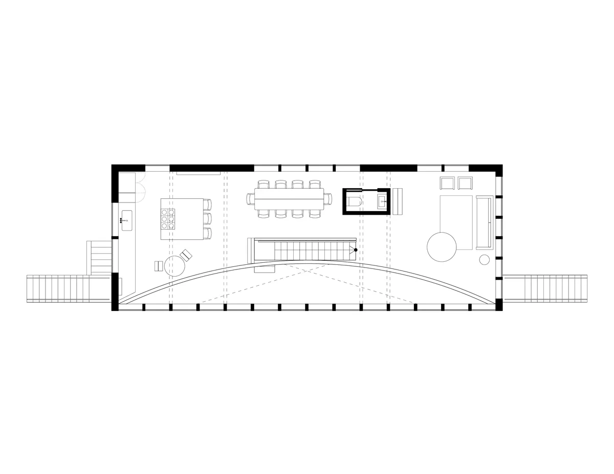
Un atrio curvo de doble altura corre a lo largo de las puertas delanteras a traseras, creando un patio interior que conecta verticalmente las áreas comunes en el primer y segundo piso. Definido por un gran ventanal y una pared curva, el patio ofrece un área informal de usos múltiples donde los residentes pueden relajarse y sus hijos pueden jugar.










El diseño de la casa equilibra la privacidad y la apertura en el sitio urbano. Fuera del muro interior curvo del patio se encuentran todas las habitaciones de la casa, alejándose del callejón hacia el lote vecino. Los dos dormitorios más cercanos al frente de la casa tienen ventanas que dan a la pared de ladrillos de Chicago del vecino, lo que brinda privacidad desde la vista de la calle y los vecinos. El dormitorio principal está en la parte trasera de la casa, con vistas a un jardín privado.
Una escalera oculta detrás del muro curvo del patio conduce al segundo piso. La planta abierta se organiza en torno a cuatro cerchas estructurales que distinguen cinco áreas: la cocina, la isla, el comedor, el tocador y la sala de estar.




















En todo momento, una paleta de colores y materiales discretos (paredes blancas y pisos, vigas y muebles de madera de roble blanco) llaman la atención sobre las cualidades de los espacios en sí. Todos los espacios públicos y compartidos en el segundo piso están orientados hacia una ventana querecorre a lo largo todo el patio interior inundando la casa con luz natural y abriendo vistas panorámicas que capturan la plenitud del vecindario circundante: árboles centenarios, los balcones traseros y las escaleras de incendios de los edificios vecinos, y farolas con sus cables serpenteantes.
El exterior de la casa utiliza el estilo vernáculo tradicional del barrio al tiempo que refleja la organización de los espacios interiores. El diseño cambia la jerarquía de la fachada de la calle al callejón, el contexto más urbano. La fachada que da a la calle tiene una fila de ventanas a lo largo del segundo piso y una sola puerta en el primer nivel, lo que mantiene la privacidad del dormitorio del frente. En el lado del callejón, ventanales de piso a techo en el segundo piso y una gran ventana panorámica que da al callejón desde el patio interior abren los interiores al entorno urbano.
El enfoque de materiales exteriores enfatiza el giro seccional y le da al edificio monolítico un ritmo visual. La casa se asienta sobre una base de hormigón. La mitad inferior del primer nivel está revestida de madera gris, mientras que la madera negra cubre la mitad superior del primer nivel y todo el segundo.
Fotos: James Florio Photograph
PROYECTO
Arquitecto: Kwong Von Glinow
www.kwongvonglinow.com
Ingeniero estructural: Goodfriend Magruder Structures
Contratista: Oslo Builders
























EGGER presenta su Colección Decorativa 26+, un espacio para nuevas sensaciones.

Se inauguró la 20° edición de Estilo Pilar con su nueva propuesta Boutique





































