
Diseño espejado y materiales con memoria: arquitectura que conecta con lo cotidiano.
**un conjunto de viviendas que se interrelacionan y dialogan entre sí, en unapropuesta con juegos dinámicos y simpleza material.
Arquitectura10 de junio de 2022 Espacio&Confort



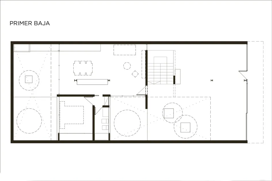
Un emprendimiento inmobiliario tiene lineamientos ineludibles en términos económicos, de rentabilidad del m² e inversión y también debe someterse a las posibilidades del terreno. Es así que muchas veces se le niegan a este tipo de edificios espacios de transición, superposiciones, capas, extensión de visuales, recursos arquitectónicos que permiten un mejor disfrute de la vivienda.
Esta obra es una mezcla entre el encargo de los emprendedores y la impronta del estudio, su forma de ver y pensar la arquitectura y a quien se le dio libertad propositiva. Aquí, al m² no se lo privó de recursos arquitectónicos.


























Diseño espejado y materiales con memoria: arquitectura que conecta con lo cotidiano.

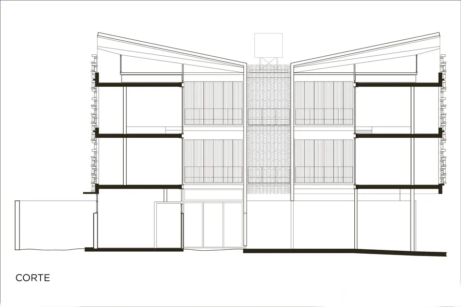
Un edificio de vivienda en La Plata que se apoya en la claridad estructural, la calidez material y la integración urbana.

Cada decisión en este proyecto fue concebida bajo un mismo enfoque: HitzigMilitello Arquitectos buscó crear un oasis botánico emplazado en pleno caos urbano. Esta línea rectora marcó un norte que determinó cada una de las definiciones proyectuales, desde lo espacial arquitectónico, pasando por la elección de materiales, equipamiento, recursos gráficos y, principalmente, las intervenciones paisajísticas.

Una obra pensada para aprender, investigar y conectar: la nueva sede universitaria que conjuga tecnología, sustentabilidad y comunidad.







En tiempos de vacas flacas, la estrategia no es salir a comprar más vacas, sino aprender a engordar las que ya tenemos.

Un recubrimiento acrílico antideslizante, versátil y resistente, pensado para prevenir accidentes.

Invertir en infraestructura es clave para la productividad, la equidad social y el crecimiento del país. Extracto de la entrevista a Martín Russo, de LFR Constructora.

Distribuidora Galuss, firma especializada en soluciones lumínicas para proyectos profesionales, anuncia la incorporación de dos marcas icónicas del diseño internacional: Luceplan y Artemide.

Tendencias, tecnologías e Innovación en Real Estate y Arquitectura. Jornada de capacitación para desarrollador, inmobiliarios y arquitectos.










