
Entre el bosque y el lago, una casa-puente que une generaciones, naturaleza y vida social.
**una casa de dipa arquitectos en una urbanización privada que se destaca porsu delicada morfología y los difusos límites entre el interior y elexterior.
Casas15 de julio de 2022 Espacio&Confort



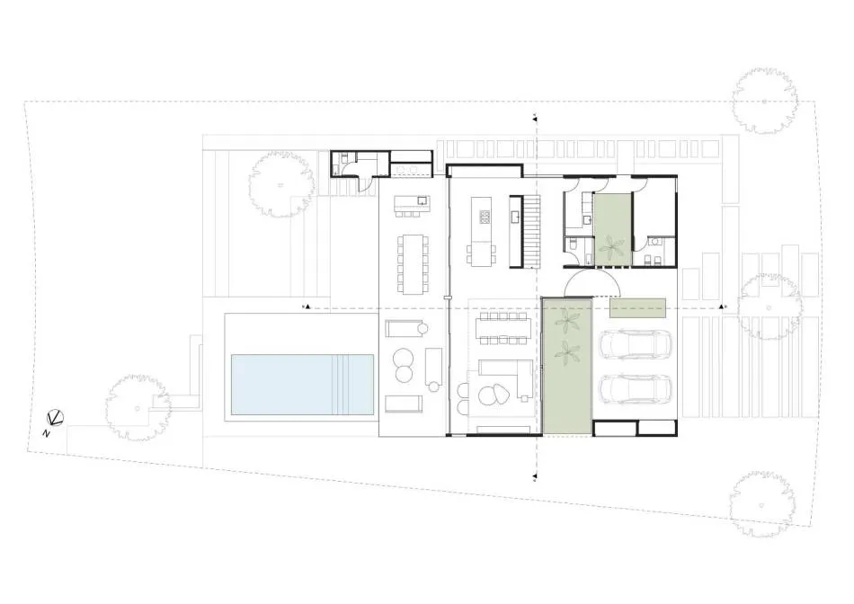
Tomando como premisas fundamentales de proyecto la orientación, las visuales y sobre todo la búsqueda de que los límites entre exterior-interior sean difusos, los arquitectos Agustina Parodi y Matías Di Pietro decidieron proyectar un volumen macizo de dos niveles con amplios ventanales, que se articulan a partir de una serie de patios internos.
La vivienda se estructura a través de un espacio central en doble altura que organiza los recorridos principales y permite que el espacio arquitectónico se abra integrando visualmente sus distintas áreas y el entorno. Con una planta de diagrama simple, se buscan generar distintas sensaciones a través del recorrido.
El proyecto se desarrolla en dos niveles con usos bien distintos.
El primer nivel se articula con las áreas de servicio al frente, las áreas sociales en el centro de la casa y luego en el contrafrente una galería que abarca todo el ancho.
En línea con los servicios se ubica el gran patio central que se fusiona con la doble altura interior aportando luz natural a través de los grandes ventanales.
Con este patio también se logra generar privacidad respecto de la calle mediante una “cortina verde” de imponentes plantas permitiendo así alargar las visuales sin perder privacidad y sumar ventilación cruzada al estar-comedor.






























Entre el bosque y el lago, una casa-puente que une generaciones, naturaleza y vida social.

Una vivienda de Fran Silvestre Arquitectos que convierte la sombra en refugio y la luz en paisaje.

La casa diseñada por MORA HUGHES arquitectos en Mendoza combina estética nórdica, la calidez de la madera y la música que marca el pulso de cada encuentro.

Estuvimos con la Arq Carolina Esnaola recorriendo una obra que realizó en el Quimilar. Un patio interno que divide el ambiente principal y llena de luz la casa.







Un recubrimiento acrílico antideslizante, versátil y resistente, pensado para prevenir accidentes.

Invertir en infraestructura es clave para la productividad, la equidad social y el crecimiento del país. Extracto de la entrevista a Martín Russo, de LFR Constructora.

Distribuidora Galuss, firma especializada en soluciones lumínicas para proyectos profesionales, anuncia la incorporación de dos marcas icónicas del diseño internacional: Luceplan y Artemide.

Tendencias, tecnologías e Innovación en Real Estate y Arquitectura. Jornada de capacitación para desarrollador, inmobiliarios y arquitectos.

El mercado inmobiliario argentino comienza a dar señales nítidas de reactivación tras años de volatilidad. La nueva fase se explica por la convergencia de cuatro vectores macroeconómicos: baja de tasas, dólar estable, riesgo país en descenso y financiamiento más accesible para el sector público y las empresas. Este “combo” no sólo mejora las expectativas: abarata el costo del capital, sanea balances y vuelve a poner en marcha la inversión privada.










