
HTH- Viviendas Accesibles




El nombre es la piedra fundamental del proyecto, pensando en las necesidades insatisfechas de personas que necesitan un espacio habitacional a su medida y donde el mismo le ofrece una mejor calidad de vida.
HTH Group nace como un nuevo concepto en espacios habitacionales únicos, especialmente diseñado con una Arquitectura Accesible, basada en la tecnología y diseño de avanzada, con el objetivo de lograr una mejor calidad de vida para todas aquellas personas con necesidades habitacionales especiales.


Combina una inversión inmobiliaria como resguardo de valor y cumple una función social, al satisfacer una necesidad del mercado hoy no contemplada.
Este proyecto coincide con las nuevas tendencias a nivel mundial. Los adultos mayores o personas con alguna dificultad en su motricidad o desplazamiento, van en busca de lugares propios, cercanos a sus cosas cotidianas y especialmente adaptados a la situación que les toca vivir. Actualmente se encuentran con la dificultad de adaptar su vivienda a las nuevas necesidades o realizar modificaciones para un futuro. En la mayoría de los casos resolver estos inconvenientes se les hace imposible tanto edilicia como económicamente.
A raíz de esto, se añadió todo un segmento de construcciones inteligentes, ya no solo pensado para individuos adultos mayores, sino para toda persona con dificultades motrices o de desplazamiento. La ausencia de este tipo de edificaciones se da en todo el país.
HTH ofrece un producto distinto, diferenciado, que agrega valor, y que satisface una demanda hoy insatisfecha, solucionando un problema futuro para uno mismo, su entorno familiar o sus seres queridos. Ofrece a sus ocupantes un espacio pensado para ellos, donde cada detalle está diseñado en función de sus necesidades y ofrece al inversor una rentabilidad superior con un producto que hoy no tiene competencia.
Arquitectura amigable, arquitectura accesible. Así son los proyectos Home That Help.
LO DESTACADO DE HTH
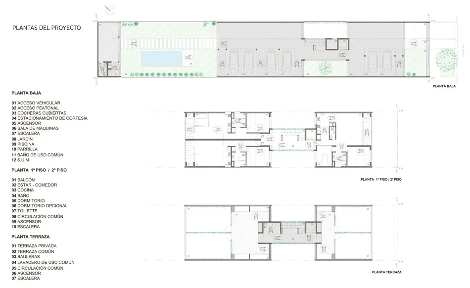
• Viviendas adaptadas. Pasillos y áreas comunes de cómodo desplazamiento y sin barreras arquitectónicas.
• Suelos antideslizantes , baños accesibles con plato de ducha y duchadores.
• Servicios eléctricos (Cocina, horno, calefacción-A/A), para evitar pérdidas de gas.
• Acceso de vehículos con descenso sin dificultades y confortable, y cochera cubierta para bajar y subir con lateral para silla. Cochera de cortesía.
• Ascensores amplios y modernos.
• Grupo electrógeno.
• Cámaras de seguridad.
• Amplio espacio verde con pileta y quincho con amenities.
• Terrazas Privadas
• Materiales de primeras calidades y aberturas de alta prestación.
• Iluminación Led en todo el edificio.
[ IDEA/DIRECCIÓN/DESARROLLO ]
Lic. Luciano Corradini
Lic. Juan Manuel Martin
[ PROYECTO ]
Arq. Martin Castillo y
Arq. Pablo Rebolledo
[ DIRECCIÓN DE OBRA ]
Arq. Martin Castillo
www.arquitecturaaccesible.com.ar
Instagram: @HTH Arquitectura
Facebook: @HTH Arquitectura Accesible




SET Office: el primer edificio corporativo de City Bell

























