
Más que un diseño técnico, la Casa Tao en Puerto Vallarta de HW STUDIO nace de la memoria, la filosofía y el deseo de habitar el mundo con atención, convirtiendo la sombra en un refugio emocional inspirado en la estética japonesa.
Cádiz, España. Una casa frente al mar de volumetría pura que se destaca porsu plano horizontal superior construido en travertino romano, siendo elprotagonista del proyecto.
Casas18 de agosto de 2020 Espacio&Confort



“En un lugar maravilloso que es como un trozo de paraíso terrenal, en Cádiz, levantamos un plano infinito frente al mar infinito, la casa más radical que jamás hemos hecho”. Así describe el arquitecto español Alberto Campo Baeza a esta obra.
Al borde mismo de las aguas del Océano Atlántico, donde el mar une el nuevo y el viejo continente surge una plataforma de piedra. En el lugar por el que cruzaban y cruzan todas las naves que vienen del Mediterráneo a abismarse en el Atlántico.
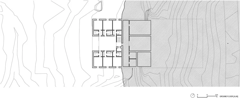
Allí se levanta una casa como si de un muelle frente al mar se tratara. Una casa que es un podio coronado por un plano horizontal superior. Sobre ese plano horizontal rotundo, despejado y desnudo, se sitúa frente al horizonte lejano que traza el mar por donde se pone el sol. Un plano horizontal en alto, construido en piedra, en travertino romano, como si fuera de arena, un plano infinito frente al mar infinito. Nada más y nada menos.
Para materializar este plano horizontal elevado, que es la estancia principal de la casa, se construyó una gran caja de 20 metros de frente y 36 metros de fondo. Y bajo los primeros 12 metros se excavaron dos plantas en el sólido de piedra para desarrollar todo el programa de la vivienda.




















Los romanos estuvieron allí hace un puñado de siglos. Bolonia, las ruinas de las factorías pesqueras romanas donde elaboraban el garum y levantaron algunos templos a sus dioses, está a la vuelta de la esquina. “En su honor hemos construido nuestra casa, como una acrópolis en piedra, en travertino romano.” – dice Baeza
Para que esa plataforma tenga más fuerza se incorporó todo el terreno hasta el muro de entrada que la separa de la calle, también en travertino romano. La entrada a la casa, traspasado este muro, se hará “en trinchera” por unas escaleras excavadas en el plano de la plataforma.
Un poeta griego, diría que éste es un verdadero temenos, el lugar donde, según la mitología, los dioses se encuentran con los hombres.
Sobre la desnuda plataforma de piedra, tres muros guardan la espalda y los costados protegiendo la construcción del fuerte viento allí dominante. A veces pareciera que alguien allí abriera el odre de los vientos de Eolo. Los mismos vientos que empujaron la embarcación de Ulises en su nostos.
“Querríamos que esta casa fuera capaz no sólo de detener el tiempo, sino además de permanecer en la memoria y en el corazón de los hombres. La casa del infinito”- concluye su autor.
Fotos: Javier Callejas
PROYECTO
Alberto Campo Baeza
www.campobaeza.com





Más que un diseño técnico, la Casa Tao en Puerto Vallarta de HW STUDIO nace de la memoria, la filosofía y el deseo de habitar el mundo con atención, convirtiendo la sombra en un refugio emocional inspirado en la estética japonesa.

En esta vivienda de fin de semana, la Arq. Gisele Baldoni de Galuss convierte la iluminación en un lenguaje: menos luz, pero mejor pensada, para crear atmósferas que hablan.

Un hogar diseñado a medida, donde la herencia familiar convive con el espíritu relajado del mar y la creatividad.

Entre el bosque y el lago, una casa-puente que une generaciones, naturaleza y vida social.







En esta vivienda de fin de semana, la Arq. Gisele Baldoni de Galuss convierte la iluminación en un lenguaje: menos luz, pero mejor pensada, para crear atmósferas que hablan.

Un café donde supo haber una histórica panadería, un lugar lleno de recuerdos entrelazados con las narraciones de Julio Verne. Funcionalidad, estética y memoria en este espacio que es una pieza de diseño.

El verano reúne factores que lo convierten en una óptima temporada para encarar una obra o reforma: clima propicio, mayor flexibilidad en los tiempos y muchas oportunidades. Porcelanato 45 aporta variedad, asesoramiento y precios que acompañan cada proyecto.

Con base en Hudson, Moderna M3 S.A. se consolida como una empresa constructora referente en el diseño y la ejecución de viviendas unifamiliares, obras en barrios privados y desarrollos residenciales en la zona sur del Gran Buenos Aires.

Tecnología nacional y accesible que facilita el mantenimiento de piscinas y que le aporta valor a todo proyecto.










