
Entre el bosque y el lago, una casa-puente que une generaciones, naturaleza y vida social.
**una propuesta en mar azul, provincia de buenos aires, de mínimos recursosmateriales y formales. una alternativa arquitectónica que garantiza lasupervivencia de la belleza de su entorno natural.
Casas10 de marzo de 2011 Espacio&Confort



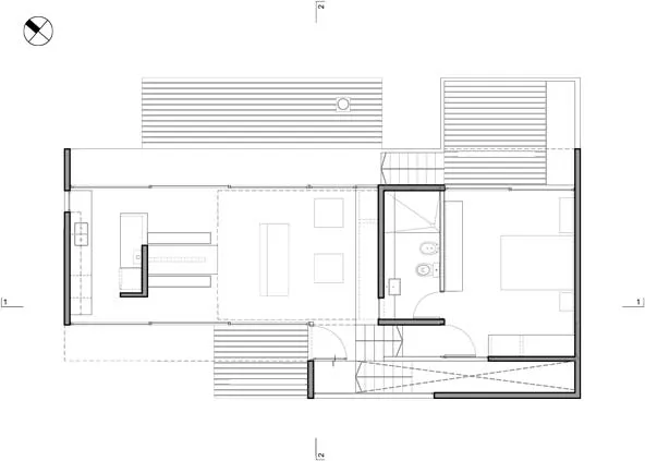
El relieve particular del lote, las vistas lejanas hacia un bosque no urbanizado y la particularidad de la composición familiar, son los temas que hacen singular a esta residencia con una propuesta estético-constructiva similar a las otras construidas en Mar Azul, por los arquitectos María Victoria Besonías y Luciano Kruk.
Este proyecto constituye una invitación a reflexionar sobre la relación armoniosa de la arquitectura del hombre y su entorno natural. Un paisaje con puro perfume a mar, plagado de añejas acacias y pinos marinos enraizados en extensos médanos.
Como resultado: una arquitectura despojada, no sólo como elección estética sino como principio ético de valoración de un uso racional de variados materiales naturales, que se incorpora armoniosamente al paisaje con voluntad de pertenencia.
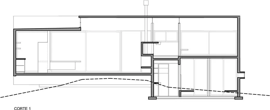
Erigida sobre un lote elevado de 600 m² de superficie, suavemente ondulado y muy forestado, esta propuesta de sólo 105 m² se materializa a través de un juego sereno, pero a la vez inquieto, de diversos planos de hormigón, casi completamente calados.
En el interior de este austero conjunto volumétrico (un prisma con su lado paralelo a la calle) se resolvió una organización de espacios a medios niveles que aprovecha la natural ondulación del predio.























Entre el bosque y el lago, una casa-puente que une generaciones, naturaleza y vida social.

Una vivienda de Fran Silvestre Arquitectos que convierte la sombra en refugio y la luz en paisaje.

La casa diseñada por MORA HUGHES arquitectos en Mendoza combina estética nórdica, la calidez de la madera y la música que marca el pulso de cada encuentro.

Estuvimos con la Arq Carolina Esnaola recorriendo una obra que realizó en el Quimilar. Un patio interno que divide el ambiente principal y llena de luz la casa.







Un recubrimiento acrílico antideslizante, versátil y resistente, pensado para prevenir accidentes.

Invertir en infraestructura es clave para la productividad, la equidad social y el crecimiento del país. Extracto de la entrevista a Martín Russo, de LFR Constructora.

Distribuidora Galuss, firma especializada en soluciones lumínicas para proyectos profesionales, anuncia la incorporación de dos marcas icónicas del diseño internacional: Luceplan y Artemide.

Tendencias, tecnologías e Innovación en Real Estate y Arquitectura. Jornada de capacitación para desarrollador, inmobiliarios y arquitectos.

El mercado inmobiliario argentino comienza a dar señales nítidas de reactivación tras años de volatilidad. La nueva fase se explica por la convergencia de cuatro vectores macroeconómicos: baja de tasas, dólar estable, riesgo país en descenso y financiamiento más accesible para el sector público y las empresas. Este “combo” no sólo mejora las expectativas: abarata el costo del capital, sanea balances y vuelve a poner en marcha la inversión privada.










