
Casa Isla del Sol



Casa Isla del Sol está ubicada en un loteo privado en el partido de Tigre, provincia de Buenos Aires a unos 30 km al norte de la ciudad de Buenos Aires.
Tigre es una ciudad con acceso al río y a las islas del Delta argentino que se caracteriza por ser un lugar inmerso en la naturaleza y es uno de los atractivos turísticos de la zona.
El lote de 23m de frente x 34m de fondo, por ser doble y de proporciones casi cuadradas, otorga dentro del barrio la particularidad de un frente amplio y la posibilidad de una mayor separación de los vecinos.
El encargo era una vivienda suburbana de uso permanente y los futuros moradores una pareja adulta con hijos jóvenes. El proyecto de esta casa fue pensado para ser vivida en esta etapa de la vida donde el nido comienza a estar vacío pero la casa sigue siendo el espacio de encuentro de toda la familia.
La incorporación del verde dentro de la vivienda, la privacidad y la proyección de generosos espacios exteriores fueron otras de las premisas a tener en cuenta.
Lejanos a la idea de un diseño compacto y un jardín extenso, los dueños imaginaban una casa donde el verde fuera apareciendo en el recorrido dotando a los espacios de luz y resguardo.
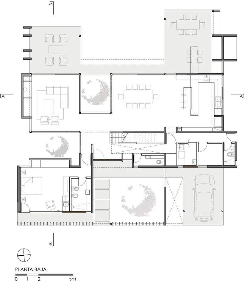
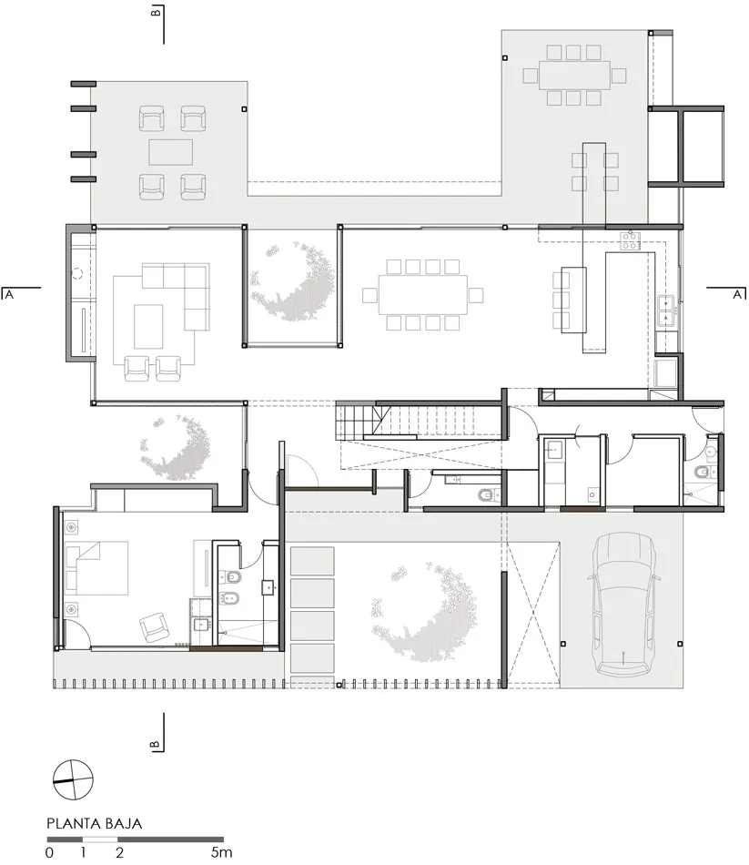
Considerando los requerimientos programáticos la casa se articula en dos plantas.
La estrategia de diseño se basó en generar una planta baja que tome la mayor cantidad de superficie posible y que, a través de la incorporación de vacíos a modo de patios, se fueran articulando las funciones en su interior.
La vivencia del verde comienza desde el ingreso a la casa con un recorrido peatonal que nos conduce a través de los jacarandas de la vereda a un gran patio de acceso donde una incipiente magnolia caracteriza el espacio.














La búsqueda de la privacidad y la protección de los rayos del oeste orientó a las arquitectas a diagramar un planteo de vivienda que cierre sus visuales al frente y las abra hacia su interior.
Se dispusieron hacia el contrafrente las áreas sociales en relación directa al jardín. El funcionamiento de estas áreas debía ser fluido pero independiente.
Se dispuso un pequeño patio que separa el estar del comedor, pero manteniendo la conexión visual entre ambos.
La cocina aparece dentro de esta área programática ligada al espacio de comedor y al sector de parrilla.
Dos amplias galerías extienden las áreas comunes hacia el jardín. Se optó por caracterizar estos espacios exteriores de forma distinta, separando el área de la parrilla del área del estar exterior.
Fue requerimiento de programa incluir dentro de la planta baja un dormitorio adicional que pudiera ser autónomo a la vivienda.
Este espacio debía ser flexible pudiendo adaptarse a las necesidades de la familia para utilizarse tanto como dormitorio, sala de ensayo, playroom, dormitorio de huéspedes, o incluso como oficina y pequeño apartamento.
Dadas estas consideraciones se decidió ubicarlo sobre el frente. Esta disposición permitió la posibilidad de ingreso desde el exterior mediante una entrada propia y se lo equipó con un baño completo en suite y un pequeño sector de kitchinette.
Se lo separó de la vivienda mediante un patio y se abrieron sus visuales hacia el frente para conservar la privacidad de la misma.
Una serie de parasoles actúan en conjunto a un pequeño espacio de alero como protección del sol y privacidad de la calle.
Los sectores de servicio se ubicaron hacia el frente en vinculación con la cocina y el lateral de la casa que actúa como paso secundario, así como el sector semicubierto de estacionamiento.
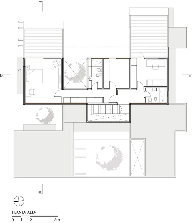
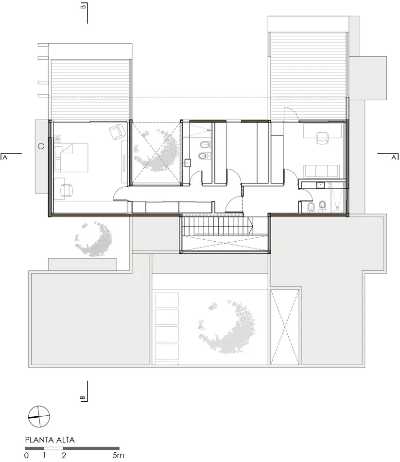
Todas las áreas programáticas que alberga la planta baja se conjugan en un único espacio, un amplio hall que articula todos los flujos circulatorios de la casa y nos conduce a través de una pequeña doble altura por la escalera a la planta alta.
Se optó por limitar el uso de la planta alta a la intimidad de la pareja.
Fue requerimiento poder contar con dos espacios de dormitorio y dos baños. Se ubicaron ambos dormitorios en los extremos de la planta, volcando sus visuales hacia el contrafrente en expansión a dos amplias terrazas.













Se optó por cerrar visualmente los dormitorios hacia la calle y colocar allí una doble pared que dotara de aislación térmica a las habitaciones.
En cuanto a la estética del proyecto se buscaron utilizar materiales nobles de bajo mantenimiento. El proyecto se sintetiza en la utilización del hormigón como material estructural y estético.
La preocupación del cliente en cuanto a la calidez de los espacios determinó la utilización de madera tanto en el exterior como en el interior. Se colocaron pisos de madera de incienso y se optó por la misma madera para la ejecución de los revestimientos exteriores.
Los aventanamientos se resolvieron con sistemas de doble vidriado hermético que garantizaran la hermeticidad térmica y acústica.
Se estudió su apertura ambiente por ambiente para garantizar en cada local la ventilación cruzada. En cuanto a la volumetría general, el proyecto expresa su organización programática interna.
La planta se genera a partir de la yuxtaposición de franjas programáticas dentro de una grilla ortogonal. El desplazamiento de las franjas y desmaterialización de sus paramentos dieron origen a los distintos patios que articulan el proyecto.
La pileta y el solárium completan el armado tomando la última franja del terreno.
Desde el frente una viga recompone la fachada y en conjunto con los parasoles de madera terminan de componer el patio de ingreso.
Desde el momento inicial la Casa Isla del sol nació como una casa fuelle, una casa rodeada de verde con la capacidad de extenderlo en su interior, una casa que pudiera albergar a toda la familia así como mantenerse cálida para el uso cotidiano de la pareja, de espacios amplios y luminosos pero resguardados de las visuales del exterior.
Un fuelle entre el ruido de la vida laboral y el silencio de la naturaleza. Desde el estudio proyectaron esta casa buscando cumplir con este anhelo.
Fotos: Alejandro Peral
PROYECTO Y DIRECCIÓN
Estudio PFARQ
Ig: @pf.arquitectura | [email protected]
Arq. Belén Ferrand | Ig: @arqbelenferrand | Tel. +54 11 34155055
Arq. Eugenia Papp | Tel. +54 11 23865677
INFORMACIÓN
País: Argentina.
Ubicación: Tigre, Provincia de Buenos Aires.
Sup. terreno: 782.43m2
Sup. Construida: 260m2
AÑO: 2020






















EGGER presenta su Colección Decorativa 26+, un espacio para nuevas sensaciones.

Se inauguró la 20° edición de Estilo Pilar con su nueva propuesta Boutique





































