
Entre el bosque y el lago, una casa-puente que une generaciones, naturaleza y vida social.
**en omval, ámsterdam, sobre el maravilloso río amstel, flota watervilla, lacasa que el estudio +31 architects construyó para revolucionar el estilo delas ya típicas casas- bote de los países bajos.
Casas10 de agosto de 2011 Espacio&Confort



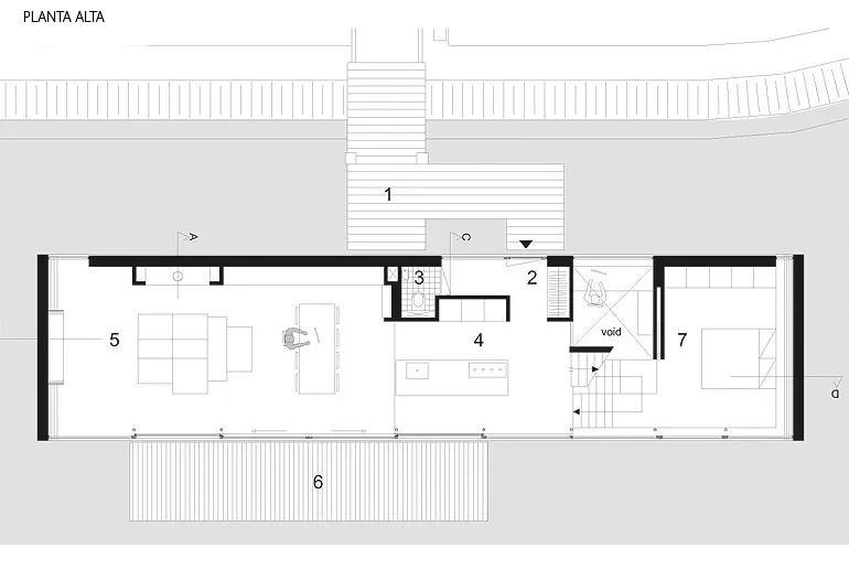
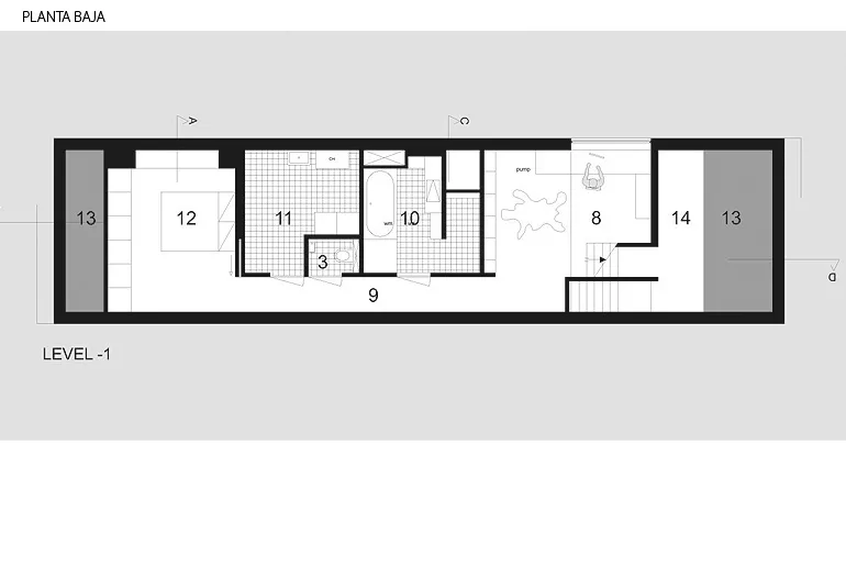
Caminando por los canales del centro de Ámsterdam es fácil dar con antiguas embarcaciones transformadas en viviendas que suelen contar, incluso, con pequeños y bien cuidados jardines. Esto es así porque, en concreto, Holanda tiene dos tercios de su superficie bajo el nivel del mar y la gran densidad de población hace que siempre se estén buscando formas de aprovechar mejor su territorio. Atrás quedaron los diques con los que durante siglos se intentó poner freno al aumento del nivel del agua; también los botes reciclados. Sobre el río Amstel se construyen hoy verdaderas casas de diseño. Entre ellas sobresale Watervilla, la casa que hubiera hecho rabiar de envidia al mismísimo Capitán Nemo.












[ PROYECTO ]
+31ARCHITECTS
Jasper Suasso de Lima de Prado
Jorrit Houwert
Amsterdam. Holanda.
[email protected]
www.plus31architects.com















Entre el bosque y el lago, una casa-puente que une generaciones, naturaleza y vida social.

Una vivienda de Fran Silvestre Arquitectos que convierte la sombra en refugio y la luz en paisaje.

La casa diseñada por MORA HUGHES arquitectos en Mendoza combina estética nórdica, la calidez de la madera y la música que marca el pulso de cada encuentro.

Estuvimos con la Arq Carolina Esnaola recorriendo una obra que realizó en el Quimilar. Un patio interno que divide el ambiente principal y llena de luz la casa.







Un recubrimiento acrílico antideslizante, versátil y resistente, pensado para prevenir accidentes.

Invertir en infraestructura es clave para la productividad, la equidad social y el crecimiento del país. Extracto de la entrevista a Martín Russo, de LFR Constructora.

Distribuidora Galuss, firma especializada en soluciones lumínicas para proyectos profesionales, anuncia la incorporación de dos marcas icónicas del diseño internacional: Luceplan y Artemide.

Tendencias, tecnologías e Innovación en Real Estate y Arquitectura. Jornada de capacitación para desarrollador, inmobiliarios y arquitectos.

El mercado inmobiliario argentino comienza a dar señales nítidas de reactivación tras años de volatilidad. La nueva fase se explica por la convergencia de cuatro vectores macroeconómicos: baja de tasas, dólar estable, riesgo país en descenso y financiamiento más accesible para el sector público y las empresas. Este “combo” no sólo mejora las expectativas: abarata el costo del capital, sanea balances y vuelve a poner en marcha la inversión privada.










