
Con voluntad de pertenencia



María Victoria Besonías y Luciano Kruk son los autores de esta casa que, por motivos relacionados no sólo con lo estético, sino también con las ventajas que ofrece el sistema de construcción propuesto, resultó ganadora en el año 2009 del Primer Premio Bienal de Arquitectura, Urbanismo, Investigación y Teoría, organizado por el Colegio de Arquitectos de la Provincia de Buenos Aires.
En realidad, ambos arquitectos habían obtenido ya un gran éxito a partir de introducir la idea de construir casas de hormigón en los bosques de Mar Azul que implicaran el mínimo posible de utilización de recursos materiales y formales. Tal arquitectura despojada comporta múltiples ventajas, entre las que se destacan, además de la mínima intervención y el acoplamiento al entorno agreste, (sin parquizar, el bosque no requiere de jardineros, el hormigón semeja una piedra más, etc.) la economía resultante del acortamiento de los plazos de ejecución y el costo prácticamente nulo de mantenimiento.




La casa que nos ocupa en esta nota fue, sin embargo, la primera de hormigón que el equipo realizó en la playa, lo que, por supuesto (teniendo en cuenta las variaciones entre la playa y el bosque y, dado que la idea primitiva se había basado en una exhaustiva investigación de las características del clima y el suelo en la que se construiría) exigió un nuevo estudio y las consecuentes adaptaciones del sistema constructivo.
El terreno de 950 m² se encuentra a escasos metros del médano que pone límite a la playa y presenta en el centro y en toda su longitud una elevación tipo cresta de alrededor de 3metros. Lo único que obstruye parte de las bellas vistas es, de un lado, otra casa de gran tamaño. La particularidad del terreno y la condición puesta por los clientes -un matrimonio joven con tres hijos pequeños y una intensa vida social- a saber, que los ambientes principales de la casa y sus expansiones tuvieran vista al mar, determinaron en gran medida el proyecto. Otros aspectos determinantes fueron optimizar la aislación térmica (facilitada en las casas anteriores por los árboles) en un lugar que se hallaba por definición sometido a la intensidad de los rayos del sol. De ahí que los techos sean expansiones de diferentes ambientes; vistosos decks de madera apoyados sobre losas que, además de permitir el disfrute de actividades al aire libre, funcionan como sombrillas. En el mismo sentido, para controlar el encandilamiento producido por el reflejo en la arena, se evitaron las clásicas aberturas de piso a techo, y a las existentes se las protegió con aleros y se determinó su tamaño y posición en relación con el barrido del sol y los vientos.






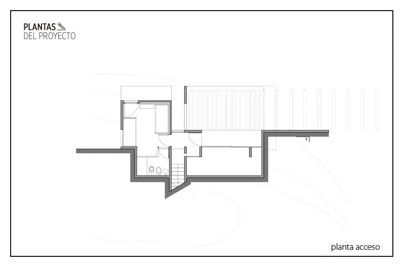
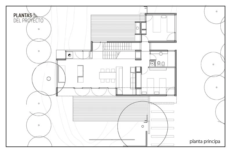
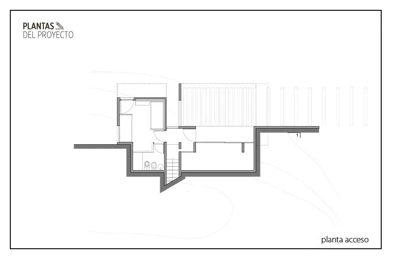
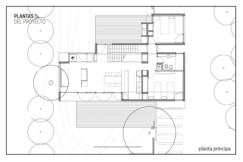
La casa tiene tres niveles conectados por una escalera y consta de estar comedor y cocina integrados, parrilla, terrazas de expansión, una cochera semi-cubierta y un lugar cerrado como depósito general con espacio suficiente para guardar un cuatriciclo; dos dormitorios para los hijos con un baño para compartir, una habitación de servicio o huéspedes también con su baño, y un dormitorio principal con baño privado. Esta construcción abarca 181 m².
La distribución funcional de los ambientes no es la clásica, porque estuvo por completo supeditada a la topografía del terreno. Así, la planta principal de la casa es un prisma montado perpendicularmente en la cresta del médano, uno de cuyos extremos da al mar, mientras el opuesto desciende creando una planta de acceso casi a nivel de la calle, de manera que, tras salvar la diferencia de altura entre la calle y el nivel de acceso con unos durmientes de quebracho que fijan el médano, se creó un ingreso a la vivienda a través del semicubierto que puede oficiar de cochera. En el ingreso se destacan los portones de quebracho que cierran el depósito y la puerta de entrada. Este primer nivel aloja un hall, la habitación de huéspedes con su baño y la entrada interna al depósito y lavadero. Ascendiendo por la escalera entre muros de hormigón se llega al nivel principal en el que se dispone el estar- comedor-cocina integrado con expansiones hacia el frente y el fondo del lote, los dormitorios de los hijos y el baño. En paralelo con la primera escalera se desarrolla otra que conduce al último nivel en el que un pequeño hall permite acceder a la terraza del frente, a la del fondo y a la suite.
Sencilla tan sólo en apariencia, porque en rigor fue pensada como un reloj suizo, esta casa entrega la calidad expresiva del hormigón a la playa con la naturalidad, pero también con la resistencia de la piedra.•
Texto: Ma. Soledad Franco
Fotos: cedidas por BAK Arquitectos
[ INFORMACIÓN ]
Tipo: Vivienda Unifamiliar de Veraneo
Ubicación: Mar Azul, partido de Villa Gesell.
Superficie del terreno: 950 m²
Superficie construida: 181 m²
Año de construcción: 2008/2009
[ PROYECTO ]
BAK Arquitectos
Arq. María Victoria Besonías
Arq. Luciano Kruk
www.bakarquitectos.com.ar






















EGGER presenta su Colección Decorativa 26+, un espacio para nuevas sensaciones.

Se inauguró la 20° edición de Estilo Pilar con su nueva propuesta Boutique





























