
La fluidez como premisa



Los arquitectos Marcos Alessio y Romina Stoichevich pensaron una vivienda cuyos interiores fueran fluidos y flexibles, sin que perdieran por ello en otros aspectos como forma, función o privacidad; esta misma idea determinó una relación dialéctica con el entorno natural sobre el que la casa ofrece una mirada limpia pero del que al mismo tiempo se nutre, impregnándose de él, apropiándose de su belleza pero también contribuyendo a ella.
De volumetría contundente y composición modular, la casa se integra al paisaje a partir de la expresión y la textura de los materiales escogidos. La piedra y la madera en su función mimética, y el vidrio como membrana que permite el fundido con el constante renovarse del afuera, se hermanan en un volumen único, contenedor, del cual se desprende hacia la fachada posterior un prisma menor, de carácter sólido, que aloja la cocina.






Situada en un terreno con tres caras libres, promete visiones expansivas y para cumplir concede a los ventanales protagonismo en cada estancia, creando con ellos una sucesión rítmica de vacíos y llenos. El vacío se colma con las vistas y el lleno se construye con la piedra que ofrece solidez y variedad cromática. Una cinta blanca como capa envolvente dibuja con claridad el volumen prismático, delimita el contorno, involucra los dos niveles de la vivienda y permite el juego sintético de las bandas verticales. La cerca de escasa altura que corona el frente es casi metafórica, marca un límite emocional con los posibles ruidos de la calle y sus palotes blancos escanciados por las puertas de entrada en madera (principal y de garaje) preanuncian en parte el amigable estilo campestre y moderno a la vez que reina en la casa.
Vale aclarar que, aunque tal combinación (la de lo campestre y lo moderno) esté de moda, aquí logra transmitir una especie de naturalidad, de facilidad en cada acertada elección, que remite a la misma idea de sinceridad que parece exhalar la estructura.






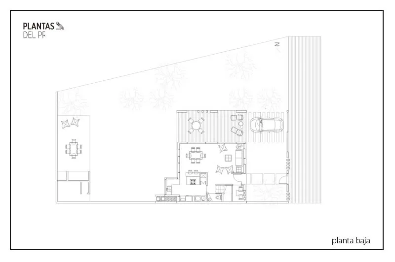
Así, la organización funcional responde a una planta baja abierta al entorno que aloja estar y comedor en un espacio único e indiviso. La cocina aparece como el volumen independiente que se incrusta en la gran caja, pero está integrada al área pública de la vivienda a través de una flamante isla con barra desayunadora, generando junto con el hall de acceso y la galería semicubierta un magnífico ambiente que invita a usos de una espontaneidad paradójica, en la medida en que es producto de una planificación arquitectónica. Por otra parte el estar, gracias a las paredes de cristal, aptas para separar y unir, también expande toda su longitud hacia la galería semicubierta que, en tanto pieza integrada en el conjunto de la construcción, además de filtrar la audacia de los rayos solares, guarece con los parasoles verticales que la cierran, la privacidad de la caja matriz. Desprendido de todo, flota en el verde un quincho que se brinda a la naturaleza.






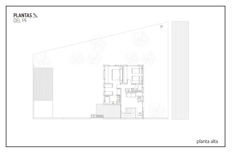
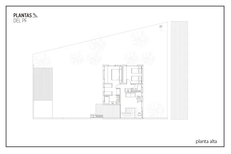
La planta alta ofrece una sucesión de varias estancias que proponen usos flexibles –dormitorios, sala de juegos, atelier- y se caracterizan por auspiciar la intimidad sin perder la mentada fluidez en su interior.
En cuanto a la decoración, hay que señalar que esa mixtura armoniosa entre lo moderno y lo rústico ostenta grados. Por ejemplo, el componente moderno alcanza cumbres pop entre los cielorrasos y pisos blancos del estar, destacándose la alfombra de círculos naranjas y negros, el sillón rojo y la lámpara de pie. Sin embargo, esta preponderancia disminuye con la misma gracia del degradé de la pared, que junto a la mesa Singer acompaña la escalera, cuya baranda de traza futurista es amortiguada por peldaños de madera. En el piso superior, la madera será el elemento dominante y el ingrediente contemporáneo honrará su calidez replegándose en un halo de color.
En síntesis, si la fluidez es la capacidad de concebir y expresar ideas de manera franca y espontánea, esta casa es su materialización.
Texto: María Soledad Franco
Fotos: Leandro Arévalo
[ INFORMACIÓN ]
Tipo de proyecto: Vivienda unifamiliar
Ubicación: Gonnet, La Plata
Sup. terreno: 260 m²
Sup. cubierta: 118 m² / Sup. semicubierta: 31 m²
Año de construcción: 2012
[ PROYECTO ]
Estudio Alessio-Stoichevich
Arq. Marcos Alessio
Arq. Romina Stoichevich
(0221) 154 553202
www.alessiostoichevich.com.ar


































EGGER presenta su Colección Decorativa 26+, un espacio para nuevas sensaciones.

Se inauguró la 20° edición de Estilo Pilar con su nueva propuesta Boutique





















































