
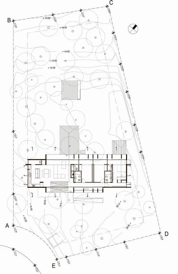
Diseño de nivel



Práctica, limpia, vistosa, funcional…. adjetivos que muy probablemente la imagen de esta casa evocará, asociados, en la cabeza de quien la observe. Estas impresiones se ahondarán a medida que el diseño y los materiales sean escudriñados con más atención. Es que el diseño fue en gran medida determinado por las particularidades del lote en el que la vivienda se emplaza, sin dejar de lado un programa de necesidades nada restringido.En cuanto al lote -de 1245m² de los cuales apenas se cubrieron 192- se integra en una urbanización nueva, con frondosa vegetación y surcada por médanos de gran altura. Cuenta con una arboleda que quiso conservarse y un doble ingreso: a través de un cul de sac en su frente más angosto o desde la calle, en el opuesto. La particularidad es que en ambas situaciones la brusca diferencia de altura entre la vía pública y el lote dificulta el acceso a la vivienda.






El programa de necesidades a cubrir era el siguiente: una casa para ser habitada en diferentes épocas del año que pudiera contar con cuatro dormitorios: el principal con baño integrado, dos para los hijos con un baño para compartir (con múltiples lugares para dormir ya que suelen estar acompañados de amigos) y un cuarto dormitorio para huéspedes con cierta independencia, también con baño. El lugar de reunión debía estar integrado con la cocina y ser lo más generoso posible. Se requerían además importantes expansiones al aire libre, un depósito y una cochera semicubierta.La vivienda se planteó entonces como un volumen compacto y fue ubicada en el claro del bosque existente en atención a la mencionada arboleda. Dado que el lugar coincidía con la cota más alta del predio, los ambientes principales se dispusieron en este nivel, con el doble beneficio de una visión panorámica y de prolongarse hacia el exterior mediante expansiones.






El sector de huéspedes ocupa el nivel inferior, resolviendo con esta función la diferencia de altura de la planta principal con el acceso al lote.El prisma resultante presenta dos fachadas bien diferenciadas: la de acceso, con orientación sur-este, bastante cerrada con una sola abertura importante en el sector social; la opuesta –nor-este- , de grandes aberturas, resuelta con una serie de tabiques verticales que no llegan al piso. Este recurso le proporciona unidad a una fachada que cobija diversos usos, a la vez que le otorgan privacidad a los ambientes y los protege de la incidencia directa de los rayos solares.
Se accede al predio desde el cul de sac, y a ese nivel se presenta el garaje, el depósito y el acceso al sector de huéspedes. Subiendo un nivel a través de una escalera de hormigón se llega a la planta principal. Una vez atravesada la puerta de entrada, se desarrollan a un lado la zona de dormitorios y baños y, hacia el lado opuesto, la escalera que desciende al sector de huéspedes, de manera que quede conectado al resto de la vivienda si así se requiere.
La zona de reunión de la familia tiene vistas a ambos lados del lote y una expansión que le es propia. El dormitorio principal se encuentra al final de la zona más intima y también cuenta con una expansión.
Al mismo criterio funcional que guió la disposición obedece la elección de los materiales -hormigón a la vista y vidrio- y del mobiliario. El hormigón a la vista oficia de estructura, de cerramiento y de base y no tiene ningún tipo de terminación exterior ni interior. El piso es de paños de cemento alisado y los deck son de listones y tablas de madera dura apoyados sobre una losa de hormigón.
Salvo la cama matrimonial, los sillones y sillas, el resto del equipamiento de esta vivienda es también de hormigón. Incluso las camas de los dormitorios secundarios son losas perforadas resueltas en voladizo. El entorno, los factores climáticos, las necesidades de la familia e incluso los muebles… todo forma parte de un diseño integral y de nivel.
[ INFORMACIÓN ]
Tipo de proyecto: Vivienda unifamiliar
Ubicación: Valeria del Mar, Buenos Aires
Superficie del terreno: 1245m²
Superficie construida: 190m²
Año de construcción: 2013
[ PROYECTO ]
Arq. María Victoria Besonías - Arq. Luciano Kruk.
Colaboradores: Diorella Fortunati / Juan Martín Antonutti / Federico Eichenberg / Pablo Magdalena
Fotos: Daniela Mac Adden




























EGGER presenta su Colección Decorativa 26+, un espacio para nuevas sensaciones.

Se inauguró la 20° edición de Estilo Pilar con su nueva propuesta Boutique













































