
Una remodelación increíble



Nevern Square se sitúa en el Municipio Real de Kensington y Chelsea, uno de los más aristocráticos de Londres. Es un barrio de forma cuadrada caracterizado por un perímetro de edificios residenciales que comparten un jardín central. Estos edificios fueron construidos en 1880 por Walter Graves en un estilo que vio su esplendor en 1870 de la mano de arquitectos como J.J. Stevenson y Richard Norman Shaw y que podríamos llamar victoriano tardío.
Originalmente eran viviendas unifamiliares que incluían planta baja, primer, segundo y tercer piso, además del ático. Hacia 1960 estas casas se convirtieron en departamentos debido a la creciente demanda de viviendas.
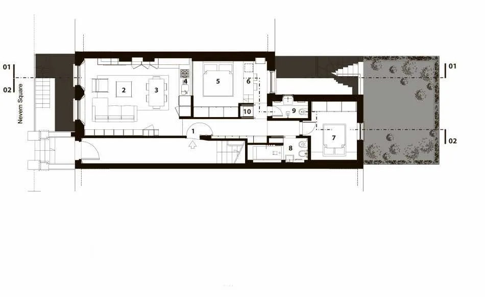
En la planta baja de una de estas construcciones cuya fachada de inconfundible cuño inglés (ladrillos de dos tonos diferentes, ventanas alargadas, hierro negro y el blanco en los alféizares de piedra y en otros detalles) debía, merced a su valor histórico, mantenerse intacta, Daniele Petteno creó –contando con apenas 5 ventanas y 69 m²- la maravilla funcional que usted ve, cuya geometría simple y aseada es la respuesta más lúcida y elegante que se hubiera podido dar a los requerimientos de los clientes.






Ellos requerían: un lugar distinguido y relajante con vistas panorámicas tanto hacia los jardines de Nevern Square como hacia el de la parte trasera de la casa, luz natural en todas las habitaciones, la mayor cantidad posible de espacios de almacenamiento incorporados de forma discreta, casi invisible, un pequeño estudio para el trabajo y un área de lavado y limpieza separada. Pidieron también, conscientes de la reducida superficie en la que morarían, que se alcanzara una impresión visual de amplitud y profundidad.
El arquitecto decidió entonces entender de una manera muy contemporánea el estilo británico haciendo caso omiso a lo superfluo pero revelando en la imponente funcionalidad de sus elecciones, la inconfundible y discreta precisión que la literatura más diversa adjudica a los ingleses.
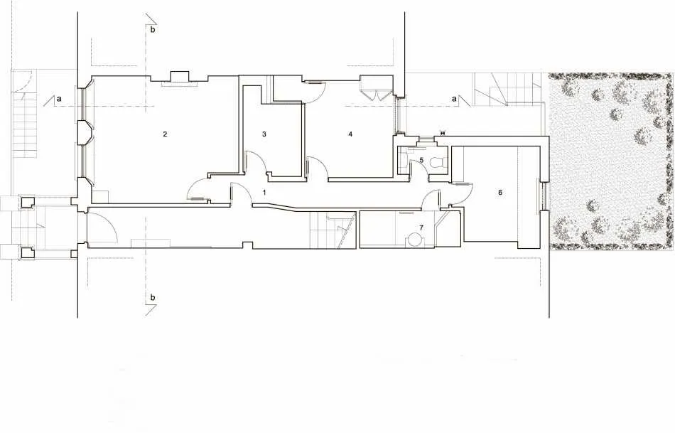
La idea de dos “L” opuestas, una blanca y otra negra, patrocina la fluidez de la línea ordenada de espacios que identifican el diseño. La blanca delimita el salón- comedor-cocina–, el dormitorio principal con estudio más baño (en suite o a compartir) y, por supuesto, el pasillo, que conecta a una segunda habitación en la parte trasera. Alcanza toda la altura de la del departamento (3,80m) y cuenta con particiones que facilitan insospechados reductos aptos para el guardado.






La ‘L’ negra, de 2,25m de altura, consiste en un mueble a medida de múltiples funciones y transita la totalidad de las áreas sociales de la casa: faculta espacio de almacenamiento, funciona como exhibidor de los electrodomésticos infaltables en el estar y el comedor (CD / DVD/TV) y como concreción de la cocina.
Es en la intersección entre estas dos “L” donde el proyecto expresa su sensibilidad inteligente: una amplia apertura interna agraciada por un vidrio fijo dota a las habitaciones delanteras y traseras de una profundidad visual extraordinaria y de continuidad. Refrenda a la vez el paso de la luz natural dada por los rayos directos del sol o por sus reverberaciones en la habitación contigua. Esta apertura acristalada puede ser cancelada mediante una persiana veneciana oculta si la situación así lo exige.
La amorosa solicitud del arquitecto para con sus clientes se ve en los detalles, por ejemplo: el podio sobre el que la cama matrimonial se alza proporciona –más allá de los ya mencionados- espacios de guardado tan insospechables como los que licencia el pasillo.
La decoración, tan moderna como sobria, ratifica que el blanco y el negro son comodines que junto a las proporciones equilibradas de llenos y vacíos, los elementos de diseño a medida , la calidad de los muebles y materiales, consiguen que un pequeño departamento del siglo XIX sea convertido en una casa elegante y práctica para una joven y creciente familia.
Fuente y fotos: Daniele Petteno
Texto: Soledad Franco
[ INFORMACIÓN + MÁS FOTOS ]
Tipo de proyecto: Rediseño interior departamento unifamiliar
Ubicación: Londres, Inglaterra
Fecha: 11/2014/ Duración: 21 semanas
Superficie construida: 69 m²
[ PROYECTO ]
Daniele Petteno Architecture Workshop
329-339 Putney Bridge Road. Londres.
www.danielepetteno.com




























EGGER presenta su Colección Decorativa 26+, un espacio para nuevas sensaciones.

Se inauguró la 20° edición de Estilo Pilar con su nueva propuesta Boutique









































