
Tan maravillosa



La palabra “maravilla” proviene de la latina “mirabilia”. En tiempos del César se aplicaba a aquello que era considerado admirable o capaz de sorprender y no se reducía, como hoy, a lo sobrenatural (las habilidades de la mujer maravilla, por ejemplo) ni a lo racionalmente inexplicable.
Empleado el adjetivo en su antigua acepción, un cuerpo, una conducta, una flor o, en el caso que nos ocupa, una casa, pueden ser calificadas sin exageración como maravillosas.
La casa en cuestión es rosa por fuera. Entre los considerables matices de este color, reviste uno fiel al de la sede del poder ejecutivo de nuestra república y también al de la fortaleza que el general Justo José de Urquiza (nuestro primer presidente constitucional) levantó en Entre Ríos. Ese rosado, logrado en su momento en base a una combinación poco matemática de cal y sangre bovina, es la más visible de una serie de decisiones estéticas destinadas a personalizar los gestos definitivos del diseño italianizante que, dicho sea de paso, las tres edificaciones comparten.






En su origen, la villa italiana suburbana quiso adaptar el aura palaciega a la campiña, tomando de los maestros griegos y romanos la planta rectangular, la galería, la columna como elemento estructural inseparable de la idea de armonía, proporción y belleza, y los pórticos con frontones para moldearla.
En esta casa el frontispicio señala con majestuosidad la entrada. La suya es una majestuosidad reforzada por las imponentes dimensiones y la madera lustrosa de la puerta. Transponiéndola, la doble altura del hall insta al visitante a formar parte de un ambiente diverso y elegante preanunciado por el adoquinado y las ordenadas parcelas de verde que acompañan la fachada.






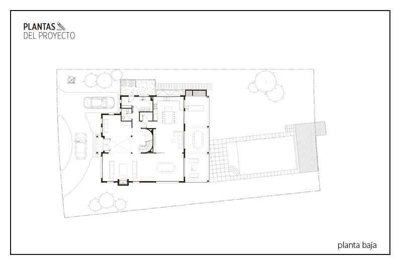
Aunque, en atención al gusto de los propietarios, expresa el mentado estilo italiano, la edificación, pensada para ser habitada de modo permanente, extrae su personalidad al cruzar este rasgo formal con las características del terreno en el que se implanta (760 m²) y el programa de necesidades de los clientes: espacialidad, comunicación e independencia de cada espacio.
Las áreas sociales se ubican en la planta baja y las privadas en la alta como es habitual. Enmarcada por dos columnas ennoblecidas por mármol de carrara, la escalera ondulante revestida en el mismo material (extendido a la pared de doble altura en la que se apoya) realza la amplitud del vestíbulo a la vez que opera una práctica división: a su izquierda, un pasillo comunica con el toilette, la entrada de servicio, el lavadero, la despensa y la cocina; a su derecha se luce el estar comedor, cuya plácida autonomía no impide la integración con el comedor diario y el family. Gracias a los paños vidriados de piso a techo, estas áreas se dilatan en una galería semicubierta con parrilla que asoma al parque. Allí la pileta con desborde infinito escurre su fina lámina de agua en el canal borrando visualmente el límite, uniéndose a él.






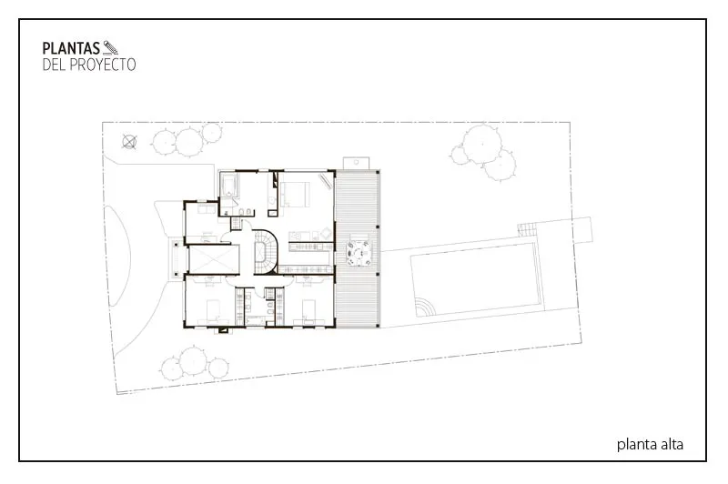
En la planta alta se hallan los dormitorios con sus respectivos baños, una sala de música y una terraza con jacuzzi.
La decoración es inseparable de los materiales escogidos. Todos los pisos de la planta baja son de porcelanato beige y, con excepción de la revestida en mármol, las paredes y cielorrasos son blancos. Esta persistencia fusiona las áreas sociales haciendo de ellas un espacio en el que todo está permitido. Coopera con el efecto de fusión la madera empleada en la carpintería y parte del mobiliario confeccionado a medida. La permisividad puede apreciarse en la fácil coexistencia de diferentes estilos. Prueba de ello son el sofá Chesterfield que domina el estar, la moderna silla Egg del family y el clásico juego de comedor.
Los pisos de la planta alta son en su totalidad de incienso hidrolaqueado. Salvo esta recurrencia, las habitaciones parecen diferir despreocupadamente entre sí para reflejar el gusto de sus respectivos usuarios. Debido a su luminosidad, la suite matrimonial puede permitirse el uso del negro en las paredes; esto, y la combinación de muebles antiguos y modernos, le confieren un aire elegante pero descontracturado. La segunda habitación conjuga lo pop con el romanticismo creando una atmósfera de innegable femineidad. La tercera se resuelve en un juvenilismo sin excesos. Los baños son poesía. El conjunto es admirable, simplemente maravilloso.•
Texto: María Soledad Franco
Fotos: Leandro Arévalo
[ INFORMACIÓN ]
Tipo de proyecto: Vivienda unifamiliar
Ubicación: Quilmes, Pcia. Bs. As.
Superficie Cubierta: 300 m²
Superficie semicuebierta: 50 m²
Superficie del terreno: 760.35 m²
Año de construcción: 2012/2013
[ PROYECTO Y DIRECCIÓN]
Estudio Santos + Marrero & Asociados
Arq. Gustavo Santos - Arq. Javier Marrero
Lavalle 507. Bernal / www.santosmarrero.com.ar
Tel/Fax: 011) 4259 9784 / 4252 9720
Colaboradores: Arq. Julieta Poggi, Arq. Cintia Giménez, Arq. Andrea Manteiga, Arq. Leandro Suarez
Constructora: Tecnoinmueble S.A.


























EGGER presenta su Colección Decorativa 26+, un espacio para nuevas sensaciones.

Se inauguró la 20° edición de Estilo Pilar con su nueva propuesta Boutique









































