
Mimetizarse con el entorno



A pesar de estar en pleno centro y lindar con una avenida congestionada, el barrio Dorrego es como un bosque salpicado por casas de dilatados terrenos. Allí, la vivienda que usted ve fue construida por Diego Ameal y Mariana Gizzi, (los arquitectos responsables de cosasminimas) bajo las premisas de sacar el máximo provecho posible de esta feliz circunstancia y de la iluminación natural. Otra consigna tan lógica como importante impelía a los arquitectos a satisfacer las necesidades de los clientes; a saber, una familia con tres hijos: dos adolescentes y una niña de seis años.
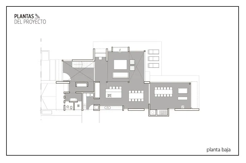
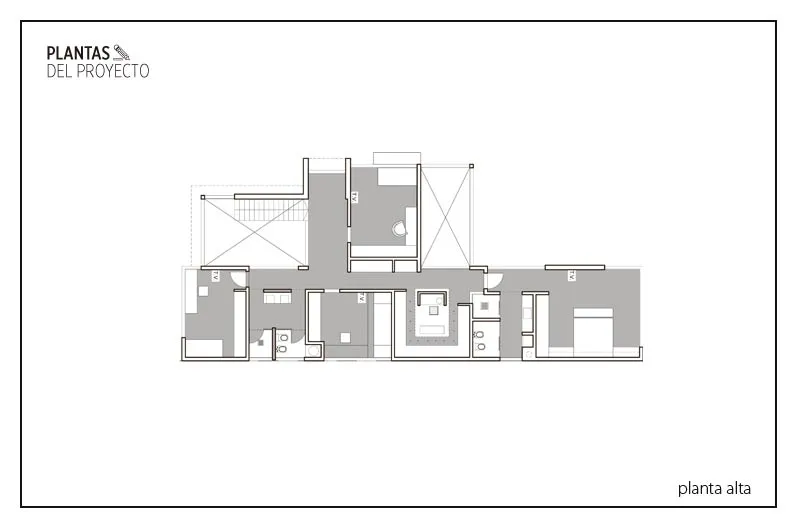
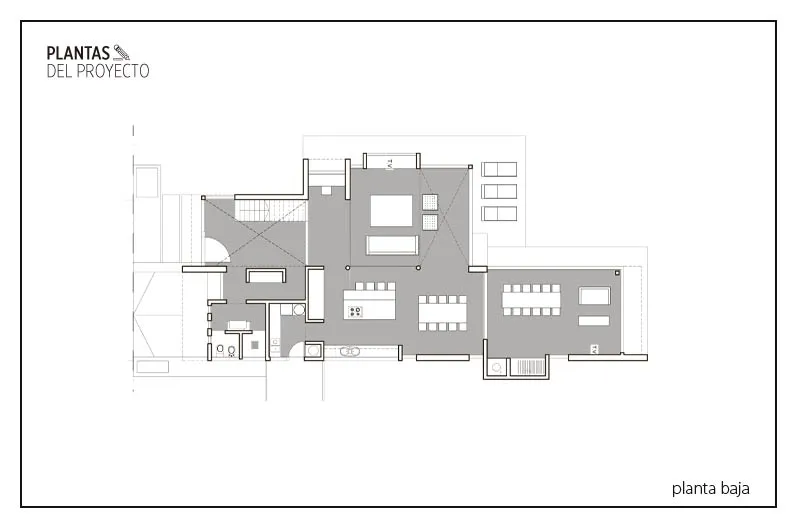
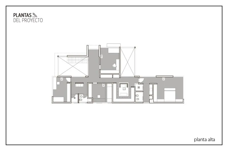
Con estos fines en mente, se decidió trazar una casa en forma de “L” que contara con un subsuelo y dos plantas. En el subsuelo se dispuso el garaje y el cuarto de máquinas; en la planta baja las áreas sociales, y en la alta las habitaciones.






A la distribución clásica corresponde una fachada de imagen sobria que se caracteriza por jugar con cuatro elementos: la volumetría, que debido a las características del terreno tiende a plantearse como una nave horizontal, la piedra, el vidrio y la madera.
Si los paneles vidriados y los ángulos transparentes hacen sistema con la idea expresada más arriba de dejar que el paisaje y la luz penetren en el interior de la vivienda, los materiales, tanto por su textura como par la gama de tonalidades en que se expresan, logran la mimetización con el entorno evitando que la construcción irrumpa en él como un enemigo.
Vale la pena mencionar que los grandes aventanamientos corresponden a los espacios principales y las vistas al exterior tan verde se reflejan en toda las circulaciones de la vivienda.
La contrafachada es aún más abierta que la fachada, y la pérgola de madera que sitúa la entrada principal en el frente encuentra su contrapartida en una galería cubierta hacia el fondo que expande las áreas sociales planteando una suave transición con el parque.






La sensación de amplitud es reforzada gracias a la total integración, funcionalidad y fluidez de los ambientes de la planta baja, integración que involucra no sólo al estar a doble altura, la cocina y el comedor, sino que alcanza incluso al quincho. En la propuesta estética de la arquitectura interior se buscó una clara síntesis entre materiales, colores y equipamiento. Al igual que en el exterior, la piedra domina algunas de las paredes creando interesantes sectores mientras el resto tiende a los beiges, reservando el blanco para los cielorrasos.
Los pisos de porcelanato italiano se dirimen en la misma paleta de colores. En algunas áreas (como el estar) se alternan con la madera con el mismo cometido que los revestimientos de piedra: sectorizar sin recurrir a muros ni puertas que atentarían contra el buscado efecto de continuidad espacial.
La gran capacidad de adecuación del estudio a los deseos de los clientes queda demostrada en la sabia combinación de un mobiliario moderno con piezas de estilo y de materiales a veces lujosos (mármoles, herrajes y porcelanato italiano) que no pierden en resistencia y durabilidad.






Es que cosasminimas, como su nombre lo indica, suele inclinarse por la reducción a lo esencial propia del minimalismo que es habitual encontrar en casas adscribibles a la corriente racionalista-funcionalista de la arquitectura. Aquí, estos tres aspectos se mantienen reenviando al inconfundible sello del estudio, pero se amalgaman con la personalidad de los propietarios generando un estilo en verdad único.
De esta amalgama son fruto rincones encantadores como el dominado por el sillón tipo Luis XV tapizado en turquesa tras el que puede verse una pared que es también una pintura abstracta, rincón complementado por una alfombra símil leopardo. También el estar en clave moderna con su mesa circular de tres bandejas y su gran sillón blanco sobre los que pende una fabulosa araña. La cocina y el comedor se resuelven asimismo al estilo de de los grandes diseñadores ya clásicos del siglo XX, mientras que las habitaciones guardan una relación tan estrecha con la naturaleza de sus ocupantes que puede atribuirse pertenencia a primera vista: por ejemplo la del varón ostenta en la pared la figura del jugador estrella de su cuadro de fútbol favorito; mientras que la de la hija adolescente lleva la pared empapelada con un motivo que reenvía a la escritura de los diarios íntimos. En cuanto a la suite, es imposible pasar por ella sin envidiar el fabuloso vestidor con mesa de tocador incorporada.
Desde todos los ángulos de la casa se ve el verde tan querido; cada área goza de luz de natural y cada miembro de la familia de espacios para compartir y de su propio espacio.
Fotos: Leandro Arévalo
Texto: Soledad Franco
[ INFORMACIÓN ]
Tipo de proyecto: Vivienda unifamiliar
Ubicación: Quilmes
Superficie del terreno: 561,71 m²
Superficie cubierta: 360 m²
Año: 2012/2013
[ PROYECTO Y DIRECCIÓN ]
cosasminimas. arquitectura - diseño interior
Arqs. Diego Ameal - Mariana Gizzi
Tel: (02229) 45 5662
[email protected]
www.cosasminimas.com.ar






























EGGER presenta su Colección Decorativa 26+, un espacio para nuevas sensaciones.

Se inauguró la 20° edición de Estilo Pilar con su nueva propuesta Boutique

























































