
Inspirada en la laguna



Que la laguna se incorpore al proyecto como paisaje es una idea que se entiende con claridad: la casa se abre a ella sin reservas y la piscina que casi oficia de límite al vasto terreno (762 m²) en el que se asienta, replica y continúa aquella extensión de agua más dilatada, frontera real, que engalana el barrio cerrado Nuevo Quilmes. En este punto la casa se engrandece. Evoca lejanas épocas de campos sin alambrar.
La idea de tomar a la laguna como estética supone un plus: lograr que la fluidez y la serenidad del agua se manifiesten al observador a través de una estructura y materiales sólidos. Fluidez y serenidad subyacen a la concepción de la vivienda creada por los arquitectos Mariana Gizzi y Diego Ameal y parecen ser éstas las propiedades que lo inducen a usted, que ahora está mirando las fotografías, a preguntarse por qué, aún hallándose visiblemente emparentada con los lineamientos racional-contemporáneos en boga, la obra es al mismo tiempo tan personal.






La estructura se compone de volúmenes ortogonales. Se halla cerrada hacia los lados y abierta al entorno hacia el fondo (en el que se encuentran la mencionada piscina y la laguna) y al frente a través del vidrio. Su fachada de hormigón coloreado en un gris que virará al azulino según la hora y la luz del día, se levanta tras una explanada de adoquín que le ofrece un elegante retiro de la calle al tiempo que señala el acceso vehicular. A su izquierda, enmarcada por un muro revestido en madera, se ve la entrada principal. Conducen a ella escalones de cemento alisado y se halla dispuesta en un bloque más retirado aún que el que aloja la cochera.
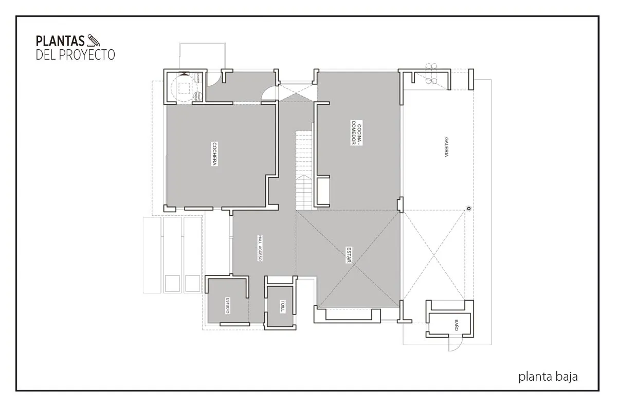
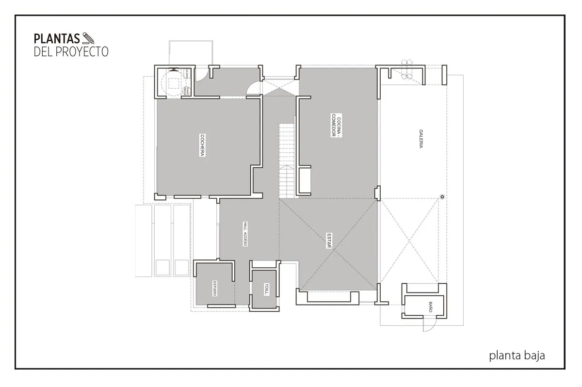
La casa cuenta con dos plantas -que cubren 450 m²- en las que se distribuyen las dependencias que cumplirán con el programa de necesidades planeado para dar estricto cumplimiento a los deseos de un matrimonio con dos nenas.






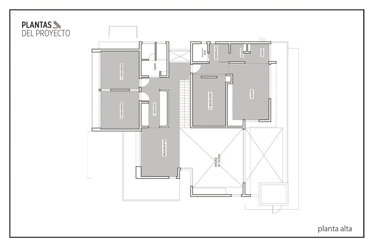
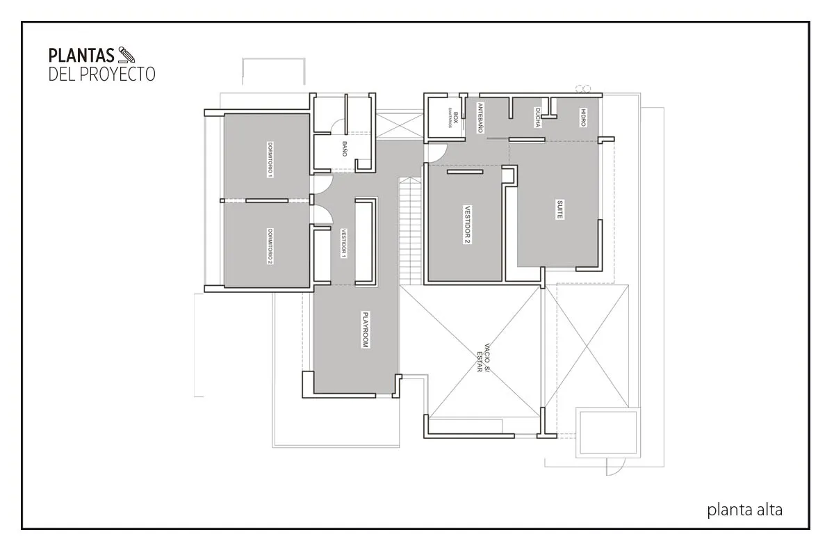
En la planta baja, al trasponer la puerta, nos encontramos con un dilatado hall de acceso que lleva hacia el área de uso social conformada por espacios integrados pero con diferentes funciones: el estar, el comedor, la cocina y la galería, en la que reluce la parrilla a la que se anexa un segundo estar, se suceden sin más divisiones que las que ofrecen los paños vidriados que separan el exterior del interior. A un lado de ese hall ha quedado oculto parte del bloque que aloja además de la cochera, una sala de máquinas y un lavadero; al otro, un estudio y un baño. En este mismo espacio de circulación se destaca la pared revestida en piedra sobre la que se apoya la escalera en voladizo que permite llegar a la planta superior: allí se encuentra un playroom y las dos suites: una para los padres y otra para las hijas. Ambas muñidas de vestidores de lujo.
En todos los ambientes principales de la planta baja y en los de alta se hace presente la laguna que penetra junto con la luz natural a través de los muchos segmentos de la construcción que –con ese fin- se ha decidido efectivizar en vidrio.






Si la fluidez del agua se hace palpable en la conexión de los ambientes, en el modo de circulación propuesto; la serenidad se desprende de la elección de materiales y colores. En la caja off-white que es la planta baja, la piedra, sumada a la madera, el cuero y la gamuza de los muebles parecen despedir un aire de felicidad sosegada. Los colores escogidos, tan neutros como la impronta del mobiliario del área social, cooperan con ese fin.
En la planta alta la madera sustituye los pisos de porcelanato y, preanunciando la ascendencia que el gusto personal de cada habitante tendrá en cada cuarto por sobre el grado cero del espacio compartido, en el playroom que balconea sobre la doble altura del estar se imprimirá un definido estilo clásico moderno visible en las sillas BKF, la alfombra de cuero de vaca genuino y el escritorio con trazos de cómoda de los años 50, entre otros.
La suite de las niñas optará por un adecuado shaby-chic, presente incluso en el baño a través de la reiteración del emblemático empapelado floreado que alegra la pared sobre la que se apoyan las cabeceras de las coquetas camas gemelas.
La suite matrimonial se permitirá un austero estilo zen equilibrado sin dudas por el fabuloso vestidor y por el baño, en el que con la acertada elección del revestimiento ocre para pisos y paredes combinado con el mueble de madera tallada se logra a la perfección la síntesis de lujo y austeridad.
Fluyen los ambientes, los estilos y la relación con ese entorno en el que la laguna es protagonista; fluye la luz y lo que se transmite es una atmósfera de tranquilidad y relajación.•
Fotos: Leandro Arévalo
Texto: Soledad Franco
[ INFORMACIÓN ]
Tipo de proyecto: Vivienda unifamiliar
Ubicación: Quilmes
Superficie de terreno: 762 m²
Superficie construida: 450 m²
[ PROYECTO Y DIRECCIÓN ]
Cosasminimas. Arquitectura - diseño interior
Arqs. Diego Ameal - Mariana Gizzi
Tel: (02229) 45 5662
[email protected]
www.cosasminimas.com.ar


























EGGER presenta su Colección Decorativa 26+, un espacio para nuevas sensaciones.

Se inauguró la 20° edición de Estilo Pilar con su nueva propuesta Boutique









































