
Entre el bosque y el lago, una casa-puente que une generaciones, naturaleza y vida social.
**obra del afamado estudio apa arquitectura esta moderna casa de hormig on,vidrio y madera incorpora el agua como elemento clave para comunicar paz ybelleza.
Casas12 de marzo de 2015 Espacio&Confort



Los griegos sostenían que el mundo estaba compuesto de cuatro elementos: tierra, aire, fuego y agua. Y aunque su veneración por el cuarto de estos fue sutil, tal vez porque temían ofender al resto de las vengativas deidades que regían su cotidianeidad, quedó registrada en la literatura de todas las épocas.
Existen pruebas más tangibles de su importancia: las aldeas se fundaron siempre a orillas de un río. Los puertos originaron naciones. El secreto de la juventud brota, según los relatos de los más diversos pueblos, de una fuente. El agua está en el origen de la vida y discursos tan disímiles como el de la Biblia, la mitología o la ciencia reconocen su potencia y su misterio. Incluso cuando el I Ching, fruto de una sabiduría ancestral de la que ignoramos tanto como la china, nos dice que “Es propicio cruzar las grandes aguas” intuimos a qué se refiere.









Texto: Soledad Franco
Fotos: cedidas por Apa Arquitectura
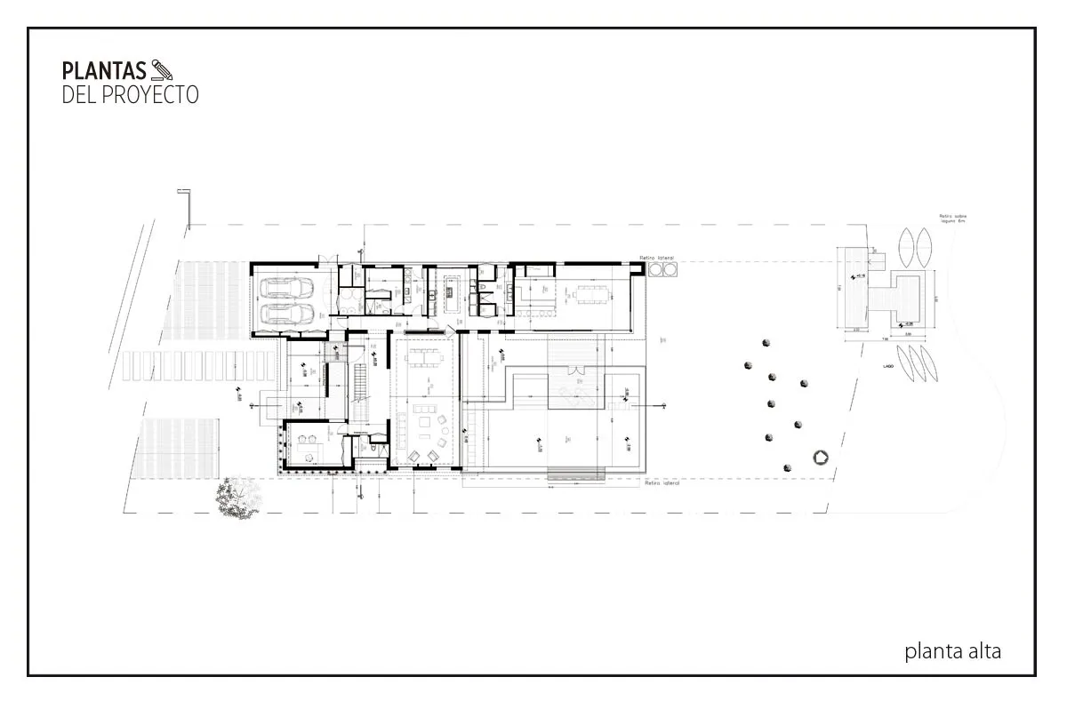
[ INFORMACIÓN ]
Tipo de proyecto: Vivienda unifamiliar
Ubicación: Zona norte de GBA
Año de construcción: 2009
Superficie: 700 m²
[ PROYECTO Y DIRECCIÓN ]
ApaArquitectura
Santa Rosa 1954, Florida
Tel. 4796-6200
www.apaarquitectura.com
Construcción: Stieglitz.






Entre el bosque y el lago, una casa-puente que une generaciones, naturaleza y vida social.

Una vivienda de Fran Silvestre Arquitectos que convierte la sombra en refugio y la luz en paisaje.

La casa diseñada por MORA HUGHES arquitectos en Mendoza combina estética nórdica, la calidez de la madera y la música que marca el pulso de cada encuentro.

Estuvimos con la Arq Carolina Esnaola recorriendo una obra que realizó en el Quimilar. Un patio interno que divide el ambiente principal y llena de luz la casa.







Un recubrimiento acrílico antideslizante, versátil y resistente, pensado para prevenir accidentes.

Invertir en infraestructura es clave para la productividad, la equidad social y el crecimiento del país. Extracto de la entrevista a Martín Russo, de LFR Constructora.

Distribuidora Galuss, firma especializada en soluciones lumínicas para proyectos profesionales, anuncia la incorporación de dos marcas icónicas del diseño internacional: Luceplan y Artemide.

Tendencias, tecnologías e Innovación en Real Estate y Arquitectura. Jornada de capacitación para desarrollador, inmobiliarios y arquitectos.

El mercado inmobiliario argentino comienza a dar señales nítidas de reactivación tras años de volatilidad. La nueva fase se explica por la convergencia de cuatro vectores macroeconómicos: baja de tasas, dólar estable, riesgo país en descenso y financiamiento más accesible para el sector público y las empresas. Este “combo” no sólo mejora las expectativas: abarata el costo del capital, sanea balances y vuelve a poner en marcha la inversión privada.










