
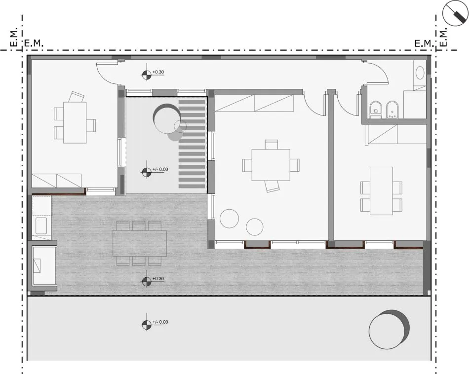
Arquitectura y cultura del vino se integran en un nuevo proyecto residencial en Pinamar Norte.
Indigo Wine es el nuevo emprendimiento proyectado por el arquitecto Marcelo García Basilio e Indigo Espacios Urbano en Pinamar Norte y forma parte de la línea de edificios Indigo, desarrollada por el estudio en esa zona.
Indigo Wine es el nuevo emprendimiento proyectado por el arquitecto Marcelo García Basilio e Indigo Espacios Urbano en Pinamar Norte y forma parte de la línea de edificios Indigo, desarrollada por el estudio en esa zona.























































