
Entre el bosque y el lago, una casa-puente que une generaciones, naturaleza y vida social.
**city bell. implantada en un dilatado terreno, esta casa, obra del estudiogast on alayes, revela lineas simples pero amables que cobijan espaciosamplios, calidos y estrechamente vinculados con el exterior.
Casas13 de octubre de 2016 Espacio&Confort



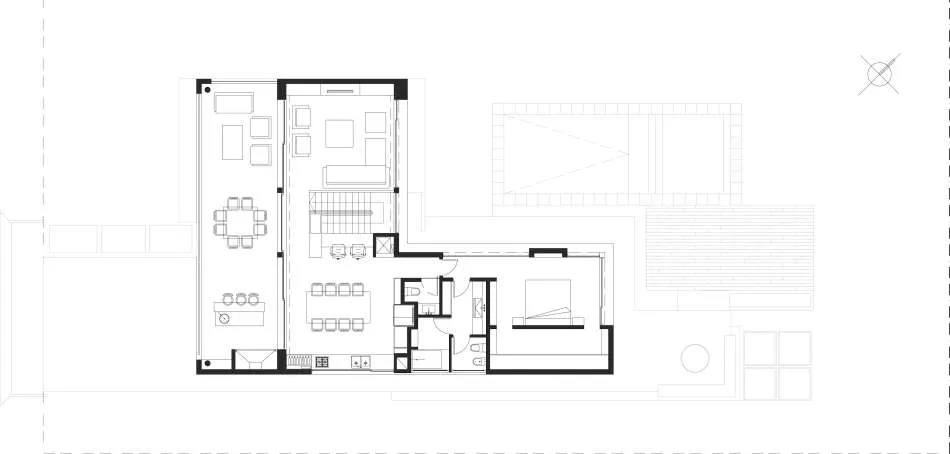
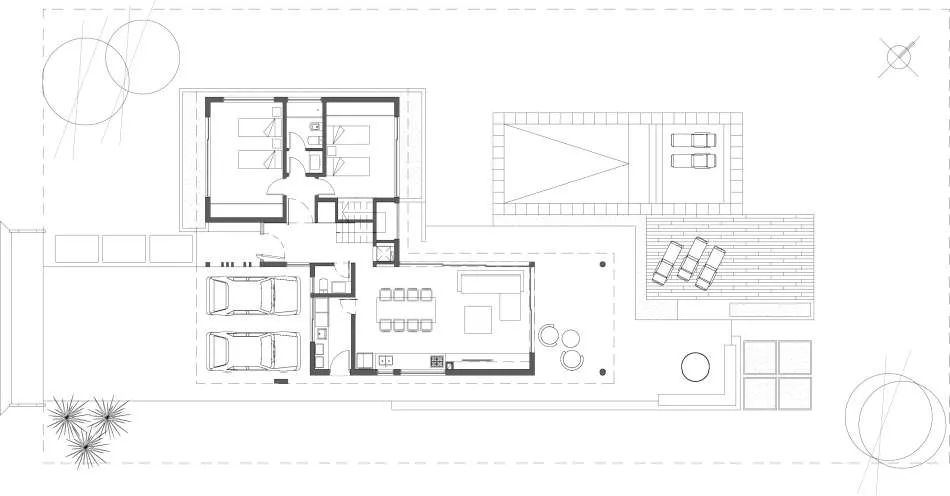
La casa se encuentra implantada en un lote cuyo frente mira a la cancha de golf y su parte posterior hacia los fondos de los lotes linderos de un barrio cerrado de City Bell.
Fue pensada para una pareja y 3 chicos de 2, 9 y 11 años y lleva el inconfundible sello del estudio dirigido por el Arq. Gastón Alayes.
Las intenciones del arquitecto eran claras: capitalizar las bondades del entorno, fundamentalmente las visuales largas que presenta el terreno, generando espacios intermedios que permitieran disfrutar del exterior en un ámbito controlado; que las actividades de los chicos y adultos se hallasen funcionalmente separadas; y que las dos premisas anteriores se materializasen dentro de las coordenadas de lo que podríamos llamar racionalismo arquitectónico.



























Entre el bosque y el lago, una casa-puente que une generaciones, naturaleza y vida social.

Una vivienda de Fran Silvestre Arquitectos que convierte la sombra en refugio y la luz en paisaje.

La casa diseñada por MORA HUGHES arquitectos en Mendoza combina estética nórdica, la calidez de la madera y la música que marca el pulso de cada encuentro.

Estuvimos con la Arq Carolina Esnaola recorriendo una obra que realizó en el Quimilar. Un patio interno que divide el ambiente principal y llena de luz la casa.







Un recubrimiento acrílico antideslizante, versátil y resistente, pensado para prevenir accidentes.

Invertir en infraestructura es clave para la productividad, la equidad social y el crecimiento del país. Extracto de la entrevista a Martín Russo, de LFR Constructora.

Distribuidora Galuss, firma especializada en soluciones lumínicas para proyectos profesionales, anuncia la incorporación de dos marcas icónicas del diseño internacional: Luceplan y Artemide.

Tendencias, tecnologías e Innovación en Real Estate y Arquitectura. Jornada de capacitación para desarrollador, inmobiliarios y arquitectos.

El mercado inmobiliario argentino comienza a dar señales nítidas de reactivación tras años de volatilidad. La nueva fase se explica por la convergencia de cuatro vectores macroeconómicos: baja de tasas, dólar estable, riesgo país en descenso y financiamiento más accesible para el sector público y las empresas. Este “combo” no sólo mejora las expectativas: abarata el costo del capital, sanea balances y vuelve a poner en marcha la inversión privada.










