
Más que un diseño técnico, la Casa Tao en Puerto Vallarta de HW STUDIO nace de la memoria, la filosofía y el deseo de habitar el mundo con atención, convirtiendo la sombra en un refugio emocional inspirado en la estética japonesa.
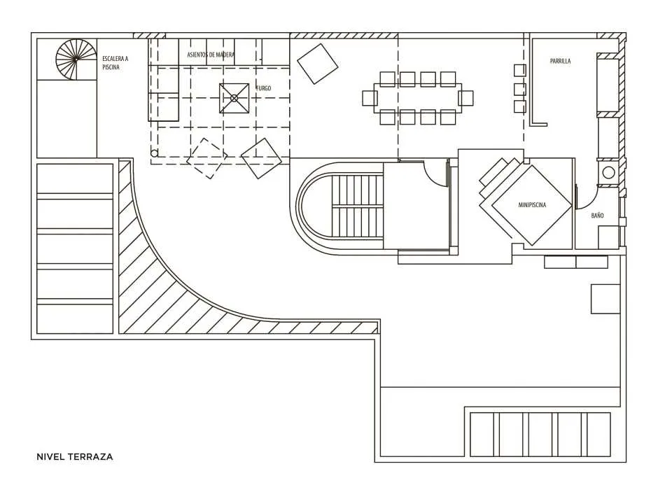
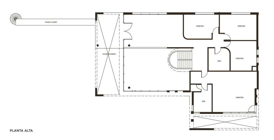
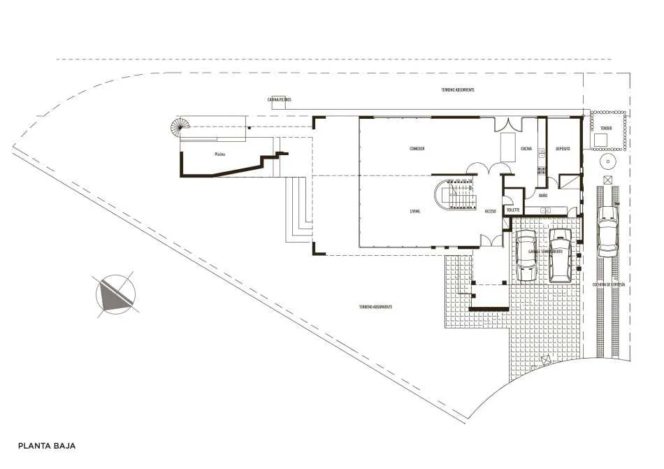
**hudson. obra de scm arquitectura, esta vivienda materializa la figura deloxímoron en cada rincón y detalle: imponencia discreta y discreción imponente. en ese juego de sentidos se erigió esta paradigmática casa.
Casas25 de noviembre de 2016 Espacio&Confort



Blanca, impoluta, su color considerado el más puro, que reúne a todos los demás colores y le va cambiando la tonalidad durante el día, la destaca, la amplía; la muestra luminosa e iluminada. En esta vivienda creada por el SCM Arquitectura, el blanco predomina tanto en el exterior como el interior, y le da la luz necesaria; el matiz se lo dan los pisos y aberturas en lapacho, las puertas deslizables que vinculan ambientes, los detalles de madera de esquema japonés (la reinterpretación de los paneles de papel de arroz que rememoran a Wright y Mackintosh) muy usado por este estudio de arquitectos en su última serie de casas… “Donde estés siempre ves el afuera, se desdibuja y comunica con el interior”, argumentan sus integrantes.
Con una fuerte reminiscencia purista y una volumetría que recuerda a las obras de Richard Meier, con su estilo y racionalidad inconfundible, la claridad de sus líneas, junto con la armonía entre sus espacios y la luz, lo homenajean con esta casa.



























Más que un diseño técnico, la Casa Tao en Puerto Vallarta de HW STUDIO nace de la memoria, la filosofía y el deseo de habitar el mundo con atención, convirtiendo la sombra en un refugio emocional inspirado en la estética japonesa.

En esta vivienda de fin de semana, la Arq. Gisele Baldoni de Galuss convierte la iluminación en un lenguaje: menos luz, pero mejor pensada, para crear atmósferas que hablan.

Un hogar diseñado a medida, donde la herencia familiar convive con el espíritu relajado del mar y la creatividad.

Entre el bosque y el lago, una casa-puente que une generaciones, naturaleza y vida social.







En esta vivienda de fin de semana, la Arq. Gisele Baldoni de Galuss convierte la iluminación en un lenguaje: menos luz, pero mejor pensada, para crear atmósferas que hablan.

SET Office introduce un modelo que combina tecnología integral, espacios flexibles y una arquitectura contemporánea pensada exclusivamente para el trabajo.

Un café donde supo haber una histórica panadería, un lugar lleno de recuerdos entrelazados con las narraciones de Julio Verne. Funcionalidad, estética y memoria en este espacio que es una pieza de diseño.

El verano reúne factores que lo convierten en una óptima temporada para encarar una obra o reforma: clima propicio, mayor flexibilidad en los tiempos y muchas oportunidades. Porcelanato 45 aporta variedad, asesoramiento y precios que acompañan cada proyecto.

Con base en Hudson, Moderna M3 S.A. se consolida como una empresa constructora referente en el diseño y la ejecución de viviendas unifamiliares, obras en barrios privados y desarrollos residenciales en la zona sur del Gran Buenos Aires.










