
Casa IT



Al momento de proyectar se intenta fusionar los conceptos y visiones de la arquitectura del estudio del Arq. Felipe Gonzalez Arzac, desde lo estético-constructivo y funcional, con las necesidades, propuestas y gustos del cliente.
Cada proyecto del estudio tiene mucho que ver con el cliente y éste no es la excepción.













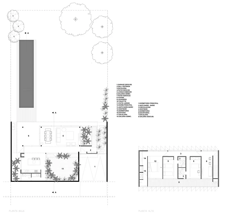
La composición empieza con la creación de dos muros de hormigón ubicados en los ejes medianeros y frente, y un bloque blanco con parasoles de madera en sus dos caras principales, que es sostenido por seis columnas circulares de hormigón visto, proporcionándole al visitante la sensación de estar viendo flotar la planta alta.
Esta caja de nivel superior contiene al sector privado de la vivienda (dormitorios, baños, vestidor y estudio) con ventanas de piso a techo que perforan en su totalidad los dos frentes y la madera de los parasoles en sentido vertical de sus tablas, con la posibilidad de su apertura, sombrean el interior sin bloquear la luz, generando un efecto de luces y sombras que cambia según el horario y posición del sol durante el día.
En la planta baja se encuentra el sector social: living, comedor y la cocina que se despega del resto y queda enmarcado con dos patios laterales, y genera a su vez un espacio semicubierto para el uso de la parrilla. Se intenta preservar las vistas al terreno en todas sus caras, para eso la piel de vidrio que la cubre en casi toda su totalidad. Detrás del muro de hormigón del frente se aloja un jardín cubierto por plantas, de esta manera se logra tener ventilación cruzada enfrentada y a su vez el muro de hormigón que lo contiene le da intimidad a la vivienda de la calle vehicular de la zona.
Todos los ambientes de la casa tienen los cristales del piso a techo para desdibujar la división entre el interior y exterior. La pileta se despega de manera perpendicular hacia el fondo del lote potenciando el punto de fuga desde la vivienda.
Fotos: Javier Agustín Rojas
PROYECTO
Arq. Felipe Gonzalez Arzac
www.felipearzacarquitecto.com
Tel. 0221.15.420.6352
INFORMACIÓN
Ubicación: City Bell, Pcia. de Bs. As.
Área : 260 m²
Año : 2021








































