
Entre el bosque y el lago, una casa-puente que une generaciones, naturaleza y vida social.
**la plata. “casa rex surge de la idea de crear un objeto arquitectónico decarácter escultórico, desafiar la gravedad, suspenderse en el aire”, explicael autor de esta vivienda con personalidad, el arquitecto felipe gonzálezarzac.
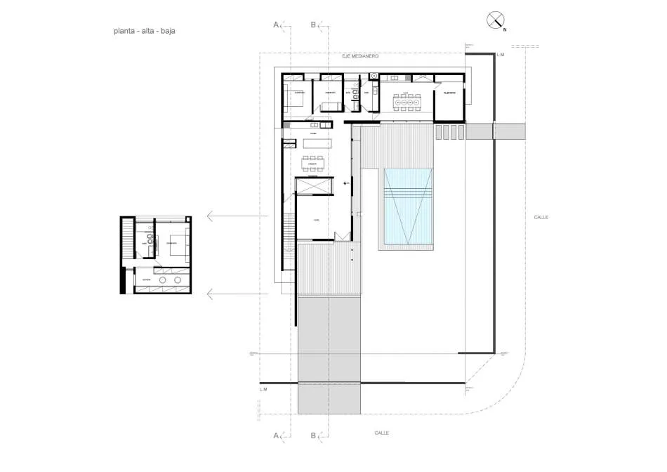
Casas04 de julio de 2019 Espacio&Confort



En esta nota compartimos una vivienda unifamiliar, implantada en una esquina, ubicada en un barrio suburbano de la ciudad de La Plata.
Materializada con un gran “bloque” de hormigón visto, con sorprendente presencia para el ojo humano, se trata de una vivienda de uso permanente para dos personas, pero con hijos y familias que visitan. Ante este escenario, se implantaron dos dormitorios extra y un S.U.M. de uso esporádico para recibir visitas. En cuanto a su distribución, la casa se divide en dos plantas, opuestas en su forma y materialidad. En la planta baja, vinculada en su totalidad con el exterior, vidrio, hormigón y madera, donde se conjugan el estilo moderno y racionalista con la calidez propia de las obras del estudio. Aquí se desarrolla la vida social; un garaje que se aloja debajo del bloque de hormigón, un ingreso al living, separado por un patio, donde aparece y se descubre el comedor y la cocina.



















Entre el bosque y el lago, una casa-puente que une generaciones, naturaleza y vida social.

Una vivienda de Fran Silvestre Arquitectos que convierte la sombra en refugio y la luz en paisaje.

La casa diseñada por MORA HUGHES arquitectos en Mendoza combina estética nórdica, la calidez de la madera y la música que marca el pulso de cada encuentro.

Estuvimos con la Arq Carolina Esnaola recorriendo una obra que realizó en el Quimilar. Un patio interno que divide el ambiente principal y llena de luz la casa.







Un recubrimiento acrílico antideslizante, versátil y resistente, pensado para prevenir accidentes.

Invertir en infraestructura es clave para la productividad, la equidad social y el crecimiento del país. Extracto de la entrevista a Martín Russo, de LFR Constructora.

Distribuidora Galuss, firma especializada en soluciones lumínicas para proyectos profesionales, anuncia la incorporación de dos marcas icónicas del diseño internacional: Luceplan y Artemide.

Tendencias, tecnologías e Innovación en Real Estate y Arquitectura. Jornada de capacitación para desarrollador, inmobiliarios y arquitectos.

El mercado inmobiliario argentino comienza a dar señales nítidas de reactivación tras años de volatilidad. La nueva fase se explica por la convergencia de cuatro vectores macroeconómicos: baja de tasas, dólar estable, riesgo país en descenso y financiamiento más accesible para el sector público y las empresas. Este “combo” no sólo mejora las expectativas: abarata el costo del capital, sanea balances y vuelve a poner en marcha la inversión privada.










