
Entre el bosque y el lago, una casa-puente que une generaciones, naturaleza y vida social.
Escobar. Obra del Arq. Luciano Kruk, esta vivienda ubicada en un barriocerrado propone una materialidad simple e imponente a la vez, dejando que lasvistas, la luz y los espacios se conjuguen en perfecta síntesis.
Casas12 de mayo de 2020 Espacio&Confort



Generar una casa que fuese capaz de dar cobijo mediante una arquitectura de trazos sencillos y espacios despojados de artificios en estrecho diálogo con su entorno natural. Esa fue la propuesta que da forma a esta vivienda.
Casa Escobar es el nombre que el Estudio del Arq. Luciano Kruk decidió para esta obra, que se encuentra ubicada en el barrio cerrado Haras Santa María de Escobar, situado en el corredor Norte, a 54 km del centro de la ciudad de Buenos Aires.
El barrio -de amplios lotes- se organiza en torno a una cancha de golf. El lote de la casa Escobar se caracteriza por su topografía plana y su privilegiada vista posterior hacia esta cancha y un vasto espacio verde con orientación Norte.
El cliente -una pareja joven- solicitó una casa de fin de semana que a corto plazo se convertiría en su vivienda permanente.
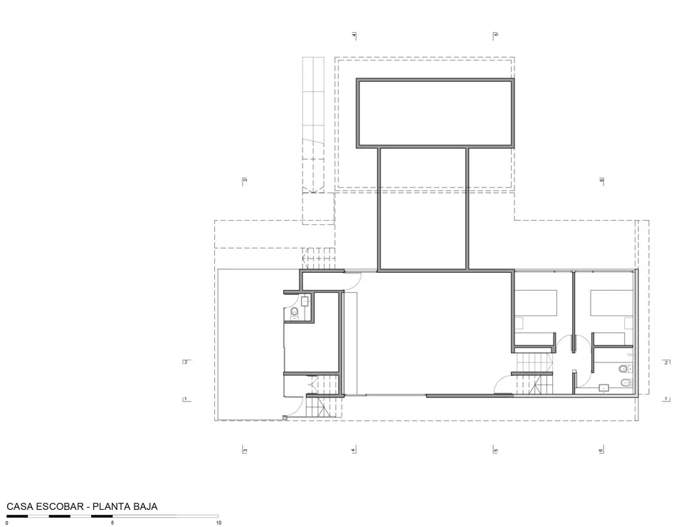
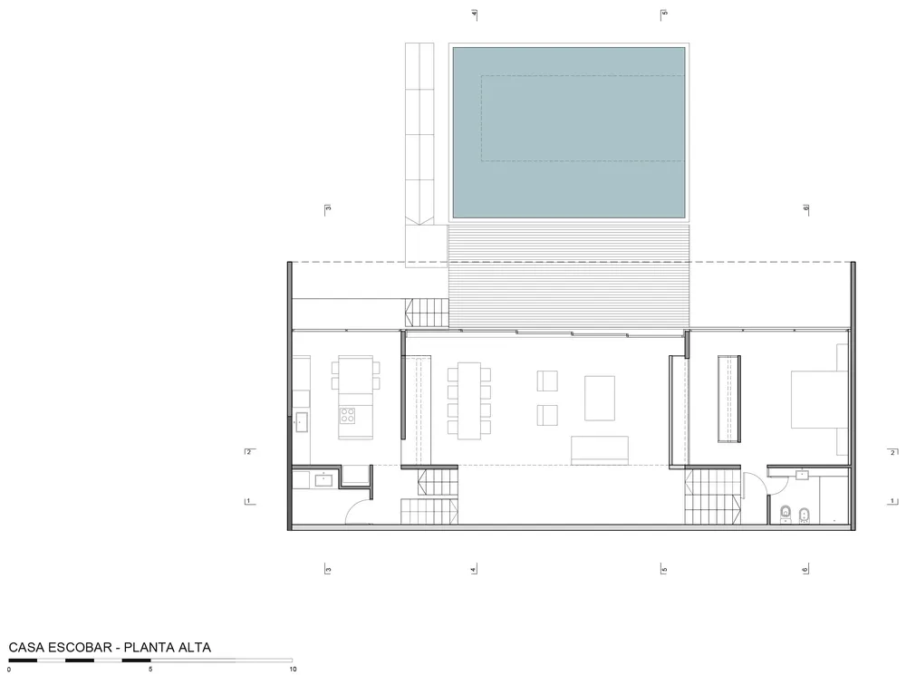
En este sentido, la premisa guía fue que el espacio protagónico de la vivienda debía ser ocupado por el sector social, con una altura interior mayor a la del resto de los locales y elevado del nivel del terreno natural con la intención de obtener vistas jerarquizadas por encima del entorno exterior. 







Además, el programa debía contemplar un dormitorio principal en suite y dos secundarios para sus futuros hijos, quienes también harían uso de una sala de juegos, la cual debía estar lo más distanciada posible del área social.
Por otra parte, se solicitó que el estar-comedor se abriera a una expansión semicubierta en contacto directo con una piscina. La casa debía abrirse al verde y contar con espacios destinados a su contemplación.
Bajo estos requerimientos, el estudio diseñó una casa de hormigón visto y vidrio, materialidad que no requiriese demasiado mantenimiento.
Se buscó generar una arquitectura de síntesis en relación a la organización de los locales y unicidad respecto de la morfología total. De esta manera, decidieron organizar el proyecto desde la plataforma principal -la de acceso y uso social- disponiendo el resto de los locales a medios niveles a partir de ésta. Esta articulación permitió conectar fluidamente a los locales entre sí, otorgándoles a su vez independencia.















Entre el bosque y el lago, una casa-puente que une generaciones, naturaleza y vida social.

Una vivienda de Fran Silvestre Arquitectos que convierte la sombra en refugio y la luz en paisaje.

La casa diseñada por MORA HUGHES arquitectos en Mendoza combina estética nórdica, la calidez de la madera y la música que marca el pulso de cada encuentro.

Estuvimos con la Arq Carolina Esnaola recorriendo una obra que realizó en el Quimilar. Un patio interno que divide el ambiente principal y llena de luz la casa.







En tiempos de vacas flacas, la estrategia no es salir a comprar más vacas, sino aprender a engordar las que ya tenemos.

Un recubrimiento acrílico antideslizante, versátil y resistente, pensado para prevenir accidentes.

Invertir en infraestructura es clave para la productividad, la equidad social y el crecimiento del país. Extracto de la entrevista a Martín Russo, de LFR Constructora.

Distribuidora Galuss, firma especializada en soluciones lumínicas para proyectos profesionales, anuncia la incorporación de dos marcas icónicas del diseño internacional: Luceplan y Artemide.

Tendencias, tecnologías e Innovación en Real Estate y Arquitectura. Jornada de capacitación para desarrollador, inmobiliarios y arquitectos.










