
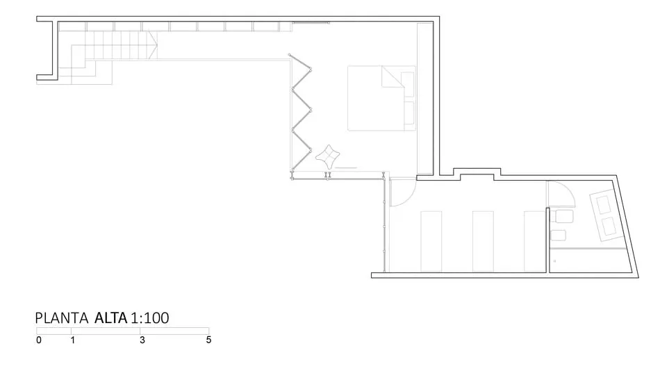
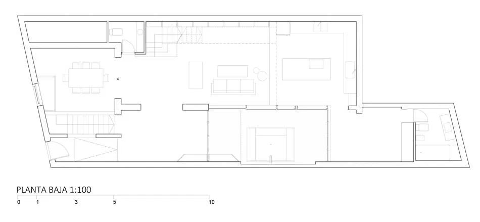
Entre el bosque y el lago, una casa-puente que une generaciones, naturaleza y vida social.
**buenos aires. una reforma que logró convertir unas oficinas en el cálido ymoderno hogar de una joven modelo y sus mascotas.
Casas10 de diciembre de 2020 Espacio&Confort



La reforma propuesta por el estudio Además Arquitectura, se basó principalmente en una puesta en valor de ciertas decisiones preexistentes.
Esta obra se trata de un típico PH porteño ubicado en el corazón de Palermo, Buenos Aires, que sirvió de oficinas y que se resignificó para un uso doméstico. Su usuario, una joven modelo y sus mascotas.
La materialidad fue el elemento determinante en orden de relevancia al pensar todo el proyecto. La impronta se resolvería alrededor de la perfilería metálica existente, en negro.




































Entre el bosque y el lago, una casa-puente que une generaciones, naturaleza y vida social.

Una vivienda de Fran Silvestre Arquitectos que convierte la sombra en refugio y la luz en paisaje.

La casa diseñada por MORA HUGHES arquitectos en Mendoza combina estética nórdica, la calidez de la madera y la música que marca el pulso de cada encuentro.

Estuvimos con la Arq Carolina Esnaola recorriendo una obra que realizó en el Quimilar. Un patio interno que divide el ambiente principal y llena de luz la casa.







Un recubrimiento acrílico antideslizante, versátil y resistente, pensado para prevenir accidentes.

Invertir en infraestructura es clave para la productividad, la equidad social y el crecimiento del país. Extracto de la entrevista a Martín Russo, de LFR Constructora.

Distribuidora Galuss, firma especializada en soluciones lumínicas para proyectos profesionales, anuncia la incorporación de dos marcas icónicas del diseño internacional: Luceplan y Artemide.

Tendencias, tecnologías e Innovación en Real Estate y Arquitectura. Jornada de capacitación para desarrollador, inmobiliarios y arquitectos.

El mercado inmobiliario argentino comienza a dar señales nítidas de reactivación tras años de volatilidad. La nueva fase se explica por la convergencia de cuatro vectores macroeconómicos: baja de tasas, dólar estable, riesgo país en descenso y financiamiento más accesible para el sector público y las empresas. Este “combo” no sólo mejora las expectativas: abarata el costo del capital, sanea balances y vuelve a poner en marcha la inversión privada.










