
Casa Unpuente
Espacio&Confort


UNPUENTE es una vivienda unifamiliar concebida como un refugio multifuncional, que equilibra el encuentro familiar de fin de semana con la intimidad en pareja. Emplazada en un barrio cerrado sobre el Embalse Los Molinos, en el Valle de Calamuchita, Córdoba, la residencia se integra a un entorno natural privilegiado, rodeado de bosque y con vistas directas al lago. Este contexto idílico no solo promueve la unión familiar en la paz de la naturaleza, sino que también fomenta la conexión con el deporte acuático, reflejando un estilo de vida activo y sereno.
La casa intentó desde el principio ser UNPUENTE, un puente generacional, un puente entre el bosque y el lago, un puente de unión entre los anfitriones y las visitas, un puente transparente, sin prejuicios y con mucho disfrute.







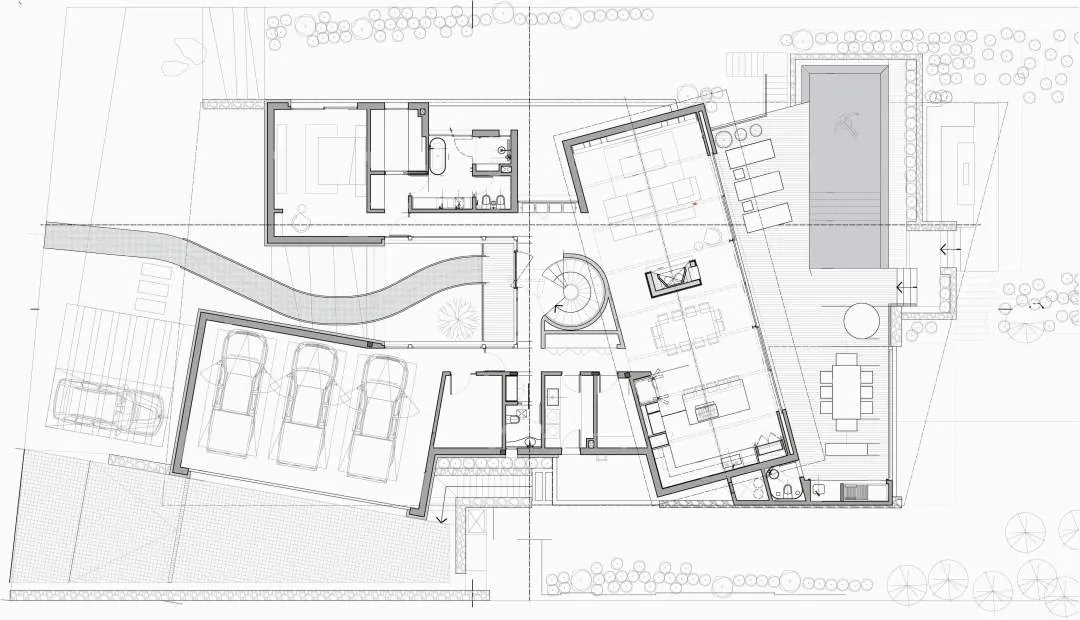
El diseño y la distribución de UNPUENTE responden directamente al principal desafío del terreno: su pronunciada pendiente. La solución arquitectónica se materializa en una casa de dos plantas, con un acceso distintivo a través de un puente que, sutilmente, evoca la forma de una lengua extendiéndose hacia el lago. En la planta alta, al nivel de la calle, se organiza el programa principal: la suite principal, las amplias áreas sociales y un acceso de servicio resuelto a través de una cochera. Las áreas sociales fueron estratégicamente orientadas con una ligera inclinación, maximizando así las vistas panorámicas al embalse e incorporando una galería, solárium y piscina que amplifican la experiencia del exterior.
La conexión entre niveles se realiza a través de una escalera helicoidal central, que no solo funciona como elemento escultórico de gran impronta, sino que también se ilumina dramáticamente mediante una lucera cenital. Esta desciende a la planta baja semienterrada, un nivel diseñado con patios centrales y laterales que aseguran ventilación cruzada, iluminación natural y una privacidad excepcional. Aquí se ubica un SUM (Salón de Usos Múltiples), concebido como un espacio versátil para el encuentro con amigos, equipado con parrilla y áreas de juegos. Su diseño permite un acceso independiente, facilitando la separación de ambientes y actividades sin interferir con la dinámica general de la vivienda.
La selección de materiales y acabados responde a la premisa familiar de bajo mantenimiento y durabilidad. Predominan elementos nobles y rústicos como la madera, el hormigón visto y el hierro, que no solo garantizan resistencia al paso del tiempo y al entorno natural, sino que también confieren una estética sólida y atemporal al conjunto.•
Fotos: Arq. Gonzalo Viramonte | Ig: @gonzaloviramonte
PROYECTO
Paolini Arquitectos
www.paoliniarquitectos.com
[email protected]
INFORMACIÓN
Año finalización construcción: 2024
Superficie construida: 564 m²
Ubicación: Córdoba, Argentina
















EGGER presenta su Colección Decorativa 26+, un espacio para nuevas sensaciones.

Se inauguró la 20° edición de Estilo Pilar con su nueva propuesta Boutique































