
Entre el bosque y el lago, una casa-puente que une generaciones, naturaleza y vida social.
Una nueva propuesta del arquitecto Guillermo Teisceira de la empresaconstructora Marpin. Una obra insertada en un anfiteatro natural que ofreceuna y mil posibilidades para el disfrute pleno en toda época del año.
Casas11 de enero de 2012 Espacio&Confort



Esta casa de playa se asienta en un paraje de fábulas donde, excepto el canto del mar, todo es silencio y el alma se siente agasajada. Sin dejar de subrayar y realzar el entorno natural que la envuelve, esta propuesta se manifiesta a través de conceptos vanguardistas.
Sin pretensiones de ser una oda al racionalismo–purista, su arquitectura expresa la dualidad de la contraposición exterior–interior que determina formalmente el conjunto cuyos límites parecen desvanecerse, y donde sólo la directriz de sus líneas netas recorta sutilmente las figuras de cada uno de sus componentes.
Volúmenes que, a través de su disposición lúdica, resuelven planos acristalados. Muros virtuales que no sólo proveen de iluminación y ventilación natural a las áreas interiores sino también, enmarcan distintas vistas del paisaje, concediendo un ritmo propio a cada una de las fachadas.
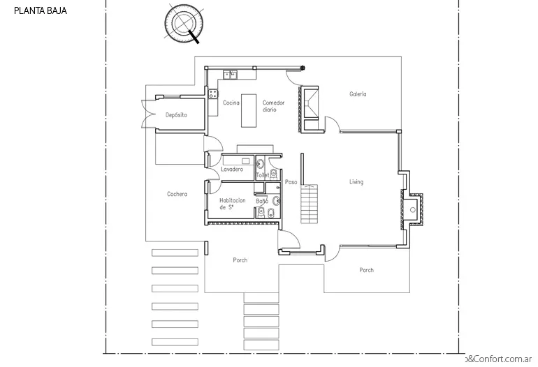
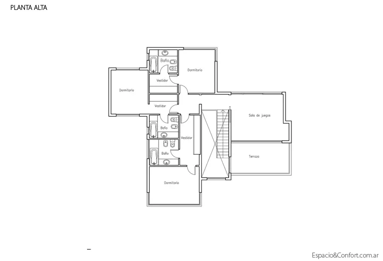
La conexión con el entorno natural se da también por medio de expansiones y espacios semicubiertos como, por ejemplo, la terraza hacia la cual se abre el área de juegos situada en el piso superior o, en la planta baja, coronadas por pérgolas de madera, una galería con asador y la zona de estacionamiento vehicular.






Texto: Dis. de Interiores Ana Thorschmidt
Fotos: Diego Medina
PROYECTO
Constructora Marpin
Av. Intermedanos y Constitución. Pinamar
Proyecto: Arq Guillermo Teisceira
Tel:(02254) 49-8444/ 40-7517







Entre el bosque y el lago, una casa-puente que une generaciones, naturaleza y vida social.

Una vivienda de Fran Silvestre Arquitectos que convierte la sombra en refugio y la luz en paisaje.

La casa diseñada por MORA HUGHES arquitectos en Mendoza combina estética nórdica, la calidez de la madera y la música que marca el pulso de cada encuentro.

Estuvimos con la Arq Carolina Esnaola recorriendo una obra que realizó en el Quimilar. Un patio interno que divide el ambiente principal y llena de luz la casa.







Un recubrimiento acrílico antideslizante, versátil y resistente, pensado para prevenir accidentes.

Invertir en infraestructura es clave para la productividad, la equidad social y el crecimiento del país. Extracto de la entrevista a Martín Russo, de LFR Constructora.

Distribuidora Galuss, firma especializada en soluciones lumínicas para proyectos profesionales, anuncia la incorporación de dos marcas icónicas del diseño internacional: Luceplan y Artemide.

Tendencias, tecnologías e Innovación en Real Estate y Arquitectura. Jornada de capacitación para desarrollador, inmobiliarios y arquitectos.

El mercado inmobiliario argentino comienza a dar señales nítidas de reactivación tras años de volatilidad. La nueva fase se explica por la convergencia de cuatro vectores macroeconómicos: baja de tasas, dólar estable, riesgo país en descenso y financiamiento más accesible para el sector público y las empresas. Este “combo” no sólo mejora las expectativas: abarata el costo del capital, sanea balances y vuelve a poner en marcha la inversión privada.










