
Naturalmente privilegiada



A través de un impecable diseño arquitectónico y de interiorismo, en esta residencia, de 353 m² cubiertos, se buscaron originales dosis masivas de puro confort, luz natural a borbotones y el disfrute pleno de vistas imperdibles hacia el entorno natural. Un paraje puramente agreste que hace dejar en el pasado el ritmo vertiginoso y bullicioso de la ciudad. Este proyecto, donde la naturaleza se entrelaza en el diario vivir de sus moradores, es un claro ejemplo de la combinación armónica entre la belleza del paisaje que la contiene y la creatividad de los arquitectos Clara Okecki, Sofía Álvarez Fourcade y Guillermo Teisceira de la empresa constructora Marpin.
Su arquitectura despojada no sólo funciona como elección estética sino como principio ético de valoración de un uso racional de variados materiales naturales. Así, se incorpora armoniosamente al paisaje con voluntad de pertenencia.






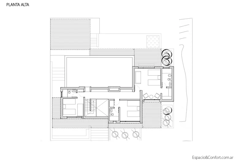
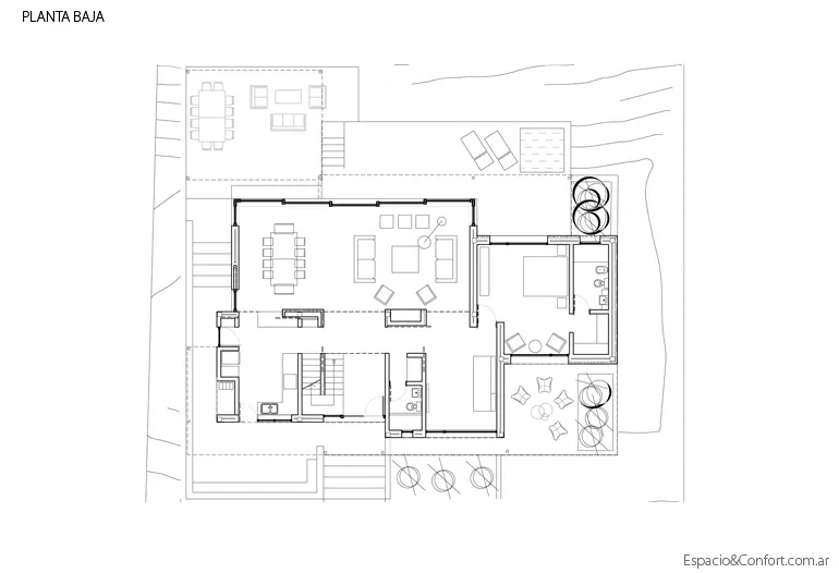
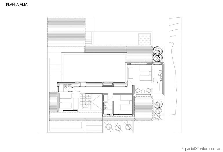
El trazado de la planta general se organizó por medio de tres niveles, distribuyendo en el piso inferior una cochera y área de servicios.En el nivel medio, extendido y tectónico, abraza la topografía del terreno, ofreciendo visuales largas y cruzadas hacia el exterior. Una visión seriada y dinámica que permite capitalizar desde todo su interior la belleza del lugar. En esta planta se dispusieron las áreas sociales - estar–comedor y cocina - y una habitación de huéspedes, todo hábilmente integrado. En la planta alta se alojaron tres dormitorios más, todos en suite y con el privilegio de gozar de vistas insuperables hacia el sector de golf. Recorrer esta residencia es una apuesta tentadora, cuyo diseño interior fue concebido a través de una interesante secuencia de espacios. Una apuesta segura para lograr amplísimas y luminosas estancias que se potencian con las inmejorables vistas del lugar.






Espacios que se prolongan hacia el exterior donde la hegemonía de los colores neutros en su ambientación, clara, aireada, con tanta elegancia moderna como frescura, favorece su espacialidad e iluminación natural. En el exterior, el gran volumen de la casa se rodea de terrazas resueltas con decks y pérgolas de madera, que se materializan en contacto directo con la galería-parrilla y el comedor de la casa. Espacios al aire libre que no sólo cuelan todo el encanto del paisaje natural sino también, producen una relación interior-exterior más dinámica, acentuando la idea mimética de la casa con su entorno.
Un comedor y estar out-doors: sonrisas, amigos, brisa fresca. Un interior con vistas envidiables: descanso, cobijo y calidez. Una arquitectura abierta al paisaje…
De alguna manera, el espíritu de esta vivienda se impuso ante cualquier concepto. Simplemente irresistible y naturalmente privilegiada.
Texto: Dis. de Interiores Ana Thorschmidt
Fotos: Diego Medina
PROYECTO
CONSTRUCTORA MARPIN
Arq. Clara Okecki
Arq. Sofia Alvarez Fourcade
Arq. Guillermo Teisceira
Av. Intermédanos y Constitución. Pinamar
Tel:(02254) 49-8444/ 40-7517


























EGGER presenta su Colección Decorativa 26+, un espacio para nuevas sensaciones.

Se inauguró la 20° edición de Estilo Pilar con su nueva propuesta Boutique



































