
Entre el bosque y el lago, una casa-puente que une generaciones, naturaleza y vida social.
**esta encantadora vivienda se apropia del paisaje natural y resuelve en tansólo 100 metros cuadrados las necesidades de todo un grupo familiar.
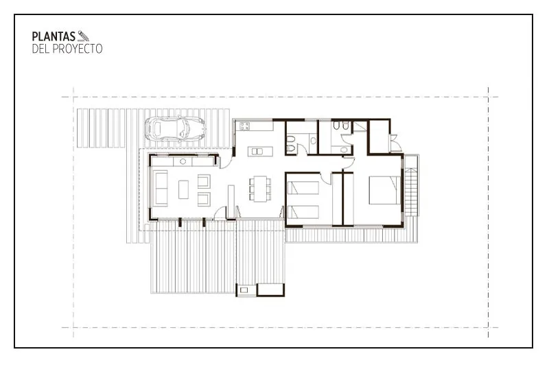
Casas21 de febrero de 2013 Espacio&Confort



Apropiarse del paisaje, establecer una continuidad con la naturaleza, es una prerrogativa de la arquitectura actual. La vivienda construida por los arquitectos Mariel Cámara y Ezequiel Muñoz para el estudio Moirë Arquitectos alcanza sin dudas este objetivo, insertándose funcional y estéticamente en un entorno caracterizado por grandes arboledas de pinos, eucaliptos y por su cercanía al mar. De más está decir que no se queda allí: como la idea es lograr también el exquisito equilibrio entre la identidad local -dada por el paisaje y las construcciones adyacentes- y una arquitectura contemporánea de cuño moderno y carácter más transnacional, se escinde de ese mismo paisaje a partir de la elección de formas puras y simples. De este modo, la casa es –ni más ni menos- que el resultado de la adición de tres volúmenes prismáticos efectivizados con materiales que remiten al entorno.
Como si las virtudes señaladas fueran pocas, en la simple decisión de adosar esos tres volúmenes (uno para los servicios, otro para los dormitorios y un tercero destinado al área social), se esconde uno de los principales hallazgos de los proyectistas: resolver en 100 m² las necesidades de toda una familia sin que merme la sensación de espacialidad.



















Entre el bosque y el lago, una casa-puente que une generaciones, naturaleza y vida social.

Una vivienda de Fran Silvestre Arquitectos que convierte la sombra en refugio y la luz en paisaje.

La casa diseñada por MORA HUGHES arquitectos en Mendoza combina estética nórdica, la calidez de la madera y la música que marca el pulso de cada encuentro.

Estuvimos con la Arq Carolina Esnaola recorriendo una obra que realizó en el Quimilar. Un patio interno que divide el ambiente principal y llena de luz la casa.







Un recubrimiento acrílico antideslizante, versátil y resistente, pensado para prevenir accidentes.

Invertir en infraestructura es clave para la productividad, la equidad social y el crecimiento del país. Extracto de la entrevista a Martín Russo, de LFR Constructora.

Distribuidora Galuss, firma especializada en soluciones lumínicas para proyectos profesionales, anuncia la incorporación de dos marcas icónicas del diseño internacional: Luceplan y Artemide.

Tendencias, tecnologías e Innovación en Real Estate y Arquitectura. Jornada de capacitación para desarrollador, inmobiliarios y arquitectos.

El mercado inmobiliario argentino comienza a dar señales nítidas de reactivación tras años de volatilidad. La nueva fase se explica por la convergencia de cuatro vectores macroeconómicos: baja de tasas, dólar estable, riesgo país en descenso y financiamiento más accesible para el sector público y las empresas. Este “combo” no sólo mejora las expectativas: abarata el costo del capital, sanea balances y vuelve a poner en marcha la inversión privada.










