
Casa de fin de semana



Como toda casa de fin de semana el requerimiento inicial es el de bajo mantenimiento y funcionalidad, es decir, espacios bien conectados, sobre todo aprovechando las visuales inmediatas hacia la laguna.
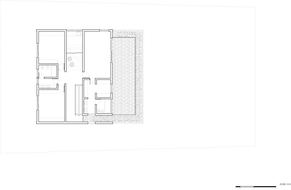
Ubicada en Hudson, en la periferia de la ciudad de Buenos Aires, esta casa se resuelve en dos plantas. Sobre la planta de acceso se resuelve el acceso a través de un semicubierto con espacio para dos cocheras.
Una vez atravesada la puerta de entrada, ee accede inmediatamente al espacio más público, el comedor y el living. Un tabique de hormigón sirve tanto de estructura como de contenedor del espacio de cocina. Todo se relaciona con grandes ventanales a una galería que sirve de quincho hacia el jardín y que, por sobre todas las cosas, enmarca la visual hacia la laguna.













La planta alta se compone de dos dormitorios hacia el frente con un baño compartido, mientras que el contrafrente, hacia la laguna, se dispone para toda la suite principal en suite con vestidor. En el centro de este nivel se resuelve como fuelle, la circulación y un jardín de invierno.
La materialidad principal de la casa es de hormigón armado, mientras que para la fachada de mayor asoleamiento se optó por muro de ladrillo con revoque para evitar los perjuicios del comportamiento del hormigón frente a la incidencia solar directa. El gris del hormigón y de los revoques predomina sobre la imagen tanto externa como interna, destacando un lenguaje de geometrías simples pero por sobre todo brindando austeridad a la vivienda.
Fotos: Gonzalo Viramonte
PROYECTO
Además arquitectura
www.ademasarquitectura.com
[email protected]
INFORMACIÓN
Ubicación: Hudson, Buenos Aires
Año finalización construcción: 2022
Superficie construida: 260 m²
















EGGER presenta su Colección Decorativa 26+, un espacio para nuevas sensaciones.

Se inauguró la 20° edición de Estilo Pilar con su nueva propuesta Boutique

















