
Con la vitalidad del agua



La casa que presentamos en esta nota está situada en un barrio residencial cerrado. Y en este marco, la premisa constructiva se explica en función de su implantación. Precisamente, el terreno resulta fundamental en la estrategia del proyecto, el cual presenta una directa relación con el agua, ubicado a orillas de la laguna, espejo de agua principal del barrio, y frente a uno de los canales perpendiculares a la misma. Esta situación amplía la perspectiva y libera las visuales.
Aprovechando entonces esta condición, la vivienda se emplaza con el objetivo de apropiarse de las excelentes vistas, rompiendo los planos ciegos, haciéndose transparente en busca de luz y visuales. La propuesta se basó en pensar una casa con características modernas y atemporales, poniendo el acento en el uso de los materiales tal cual se muestran.






La versatilidad fue otra de las premisas a la hora de proyectar, teniendo en cuenta las posibilidades que ofrecía el terreno. Una muy buena comunicación entre los ambientes y el exterior, que logren generar visuales fuertes en busca de sensaciones que interactúen con el entorno, fue la idea que lograron materializar los arquitectos del Estudio Santos Marrero en esta obra. Basta con apreciar la forma en que la galería y luego la piscina se conjugan con el deck/muelle y la pérgola que dan a la laguna para entender de qué se trata esta premisa de comunicar los distintos espacios, exteriores e interiores.
Entre los materiales utilizados en esta casa, se eligió el hormigón visto encofrado con tablas de pino cepilladas, el acero inoxidable, los mármoles y la piedra natural, junto a la utilización de grandes superficies acristaladas, que brinda luz natural a los ambientes. Todos ellos aportan a una volumetría de simple pureza que da como resultado una imagen contemporánea y que expresa la calidad de sus materiales de características nobles, prescindiendo del mantenimiento constante.






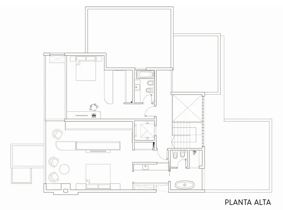
En cuanto a los usos y los espacios proyectados, el desarrollo funcional de la casa se da a partir del acceso principal, a través del recibidor en doble altura que organiza el corazón como motor distribuidor y nexo, en contacto directo con la circulación vertical; escalera y ascensor que nos comunican con el nivel superior.
En la planta alta entonces se desarrolla el sector más íntimo de la vivienda, donde se encuentran las habitaciones amplias con baños en suite, generando independencia completa.
Este nexo distribuidor que mencionamos también organiza la planta baja, donde a medida que avanzamos vamos descubriendo su potencial; hacia un lado un gran estar-comedor, dejando atrás el baño social y el estudio, y hacia el otro nos relacionamos con el servicio, lavadero, acceso secundario, despensa y cocina, generando una doble circulación muy favorable.
El diseño interior se destaca por su sobriedad y elegancia, buscando también la calidez de los ambientes; blanco, negro, gris y madera son los elegidos para revestimientos, pisos y mobiliario.





Hablamos de una casa donde el agua se vuelve uno de los cimientos que la erigen; versatilidad, armonía y contemporaneidad forman una tríada que materializa la idea de la vitalidad presente en la vivienda y en la forma en que se organizan sus espacios. Por eso afirmamos que la belleza y la comunicación que esta casa manifiesta se construyen también con la vitalidad del agua.
Foto: Leandro Arévalo
[ INFORMACIÓN ]
Ubicación: Quilmes
Sup. del terreno: 768,46 m2
Sup. cubierta: 272 m2 / Semicubierta: 81 m2
[ PROYECTO ]
Arq. Gustavo Santos, Arq. Javier Marrero, Arq. Andrea Manteiga
Dirección: Arq. Santos y Marrero
Colaboradores: Arq. Cintia Giménez, Arq. Ariel Pariente



























EGGER presenta su Colección Decorativa 26+, un espacio para nuevas sensaciones.

Se inauguró la 20° edición de Estilo Pilar con su nueva propuesta Boutique

































