
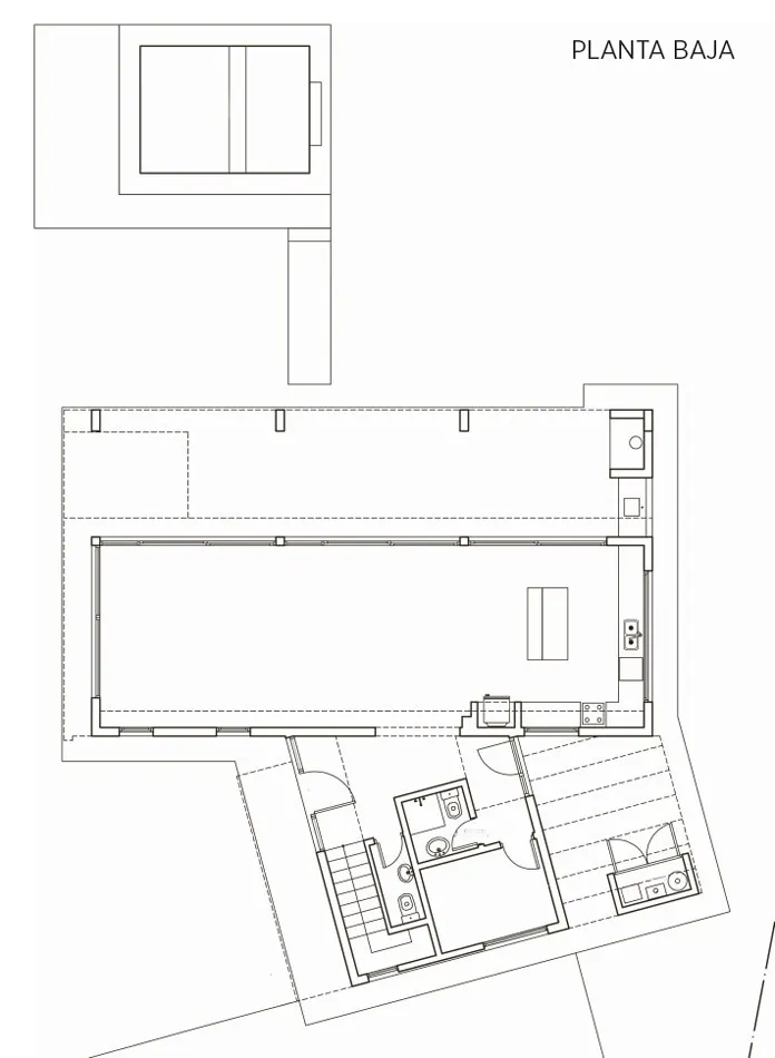
Entre el bosque y el lago, una casa-puente que une generaciones, naturaleza y vida social.
**pinamar. obra de los arquitectos guillermo teisceira y mario blangiforti,esta casa se destaca por su modernidad y sus increíbles vistas al lago delbarrio y al bosque de pinos que la rodea.
Casas10 de enero de 2019 Espacio&Confort



Existen diferentes modos de acercarse con la arquitectura a un entorno. Cuando se trata de obras inmersas en bosques, hay otras particularidades y posibilidades también. Mantener intactas las arboledas y aprovechar lo que ofrecen al enmarcar la vivienda, permitiendo que el verde ingrese a los espacios interiores, son apenas algunas de ellas.
En este sentido, esta casa proyectada por el arquitecto Guillermo Teisceira y Mario Blangiforti pone en juego esta premisa de acercarse al bosque potenciando el marco que la rodea: el verde por un lado y la laguna que linda con el terreno por el otro.























Entre el bosque y el lago, una casa-puente que une generaciones, naturaleza y vida social.

Una vivienda de Fran Silvestre Arquitectos que convierte la sombra en refugio y la luz en paisaje.

La casa diseñada por MORA HUGHES arquitectos en Mendoza combina estética nórdica, la calidez de la madera y la música que marca el pulso de cada encuentro.

Estuvimos con la Arq Carolina Esnaola recorriendo una obra que realizó en el Quimilar. Un patio interno que divide el ambiente principal y llena de luz la casa.







En tiempos de vacas flacas, la estrategia no es salir a comprar más vacas, sino aprender a engordar las que ya tenemos.

Un recubrimiento acrílico antideslizante, versátil y resistente, pensado para prevenir accidentes.

Invertir en infraestructura es clave para la productividad, la equidad social y el crecimiento del país. Extracto de la entrevista a Martín Russo, de LFR Constructora.

Distribuidora Galuss, firma especializada en soluciones lumínicas para proyectos profesionales, anuncia la incorporación de dos marcas icónicas del diseño internacional: Luceplan y Artemide.

Tendencias, tecnologías e Innovación en Real Estate y Arquitectura. Jornada de capacitación para desarrollador, inmobiliarios y arquitectos.










