
Entre el bosque y el lago, una casa-puente que une generaciones, naturaleza y vida social.
**la plata. obra del estudio va arquitectos, esta vivienda se destaca por suelegancia y calidez, y un programa que privilegió espacios integrados y unfuerte vínculo con el exterior a través de sus amplios paños vidriados.
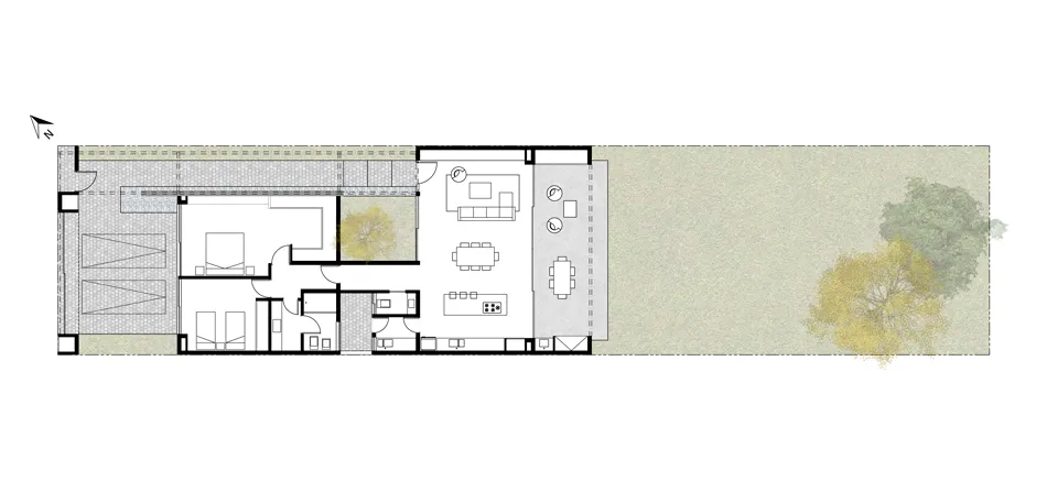
Casas04 de abril de 2019 Espacio&Confort



En un tranquilo barrio de La Plata, sobre un lote longitudinal planteado a partir de patios con diferentes jerarquías y funcionalidades, se desarrolla esta vivienda en una sola planta, de 150m².
El proyecto realizado por el Estudio VA Arquitectos cuenta con un programa de ideas claras interpretando las necesidades y demandas de sus moradores: una planta, unificación de los espacios, pocos metros y que ofrezca la posibilidad de contener a varias personas en la parte pública.



























Entre el bosque y el lago, una casa-puente que une generaciones, naturaleza y vida social.

Una vivienda de Fran Silvestre Arquitectos que convierte la sombra en refugio y la luz en paisaje.

La casa diseñada por MORA HUGHES arquitectos en Mendoza combina estética nórdica, la calidez de la madera y la música que marca el pulso de cada encuentro.

Estuvimos con la Arq Carolina Esnaola recorriendo una obra que realizó en el Quimilar. Un patio interno que divide el ambiente principal y llena de luz la casa.







Un recubrimiento acrílico antideslizante, versátil y resistente, pensado para prevenir accidentes.

Invertir en infraestructura es clave para la productividad, la equidad social y el crecimiento del país. Extracto de la entrevista a Martín Russo, de LFR Constructora.

Distribuidora Galuss, firma especializada en soluciones lumínicas para proyectos profesionales, anuncia la incorporación de dos marcas icónicas del diseño internacional: Luceplan y Artemide.

Tendencias, tecnologías e Innovación en Real Estate y Arquitectura. Jornada de capacitación para desarrollador, inmobiliarios y arquitectos.

El mercado inmobiliario argentino comienza a dar señales nítidas de reactivación tras años de volatilidad. La nueva fase se explica por la convergencia de cuatro vectores macroeconómicos: baja de tasas, dólar estable, riesgo país en descenso y financiamiento más accesible para el sector público y las empresas. Este “combo” no sólo mejora las expectativas: abarata el costo del capital, sanea balances y vuelve a poner en marcha la inversión privada.










