
Austera y flexible



Sobre un lote de grandes dimensiones y con un leve desnivel, en un barrio tranquilo y rodeado de verde, se proyectó esta vivienda unifamiliar donde el diseño prevalece en cada detalle y su funcionalidad se acomoda a la necesidad del cliente. Desarrollada en una sola planta, la practicidad, austeridad y flexibilidad son los componentes principales de la propuesta, materializada a través de líneas simples y formas puras.
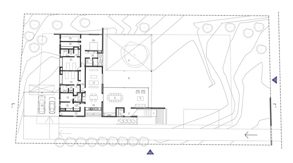
En cuanto a su implantación y morfología, la planta en forma de L se pensó con el objetivo de encuadrar el algarrobo existente en el patio para que el mismo quedara alojado como parte de la vivienda. Las grandes vigas de hormigón visto que se extiende de la losa de toda la casa hacen de límite del árbol, remarcando la importancia que tiene en el mismo tanto en el espacio social como privado.























Un muro longitudinal y puro remarca el ingreso de la casa y su imponente puerta de chapa oxidada. A continuación, el área social en conjunto con un toilet y un living-comedor con asador se abre por completo hacia una galería cubierta a través de puertas-ventanas de aluminio, siendo este el espacio intermedio entre el interior y el patio exterior del algarrobo. Una puerta corrediza de chapa que se mimetiza con el revestimiento de los muros interiores, lleva hacia el espacio de articulación que se da entre los volúmenes que conforman la vivienda. La cocina con ventanal hacia el verde se abre al espacio de estar y recreación, el cual se relaciona visualmente con el patio del algarrobo, generando un amplio espacio de circulación y contemplación. Este espacio de transición a su vez logra una distribución espacial de las funciones, dividiendo el área de servicio del sector privado: la cocina se conecta con un lavadero, tender, cuarto de servicio y cochera; mientras que la sala de estar te lleva a través de un pasillo destacado por sus luceras circulares y su losa de hormigón visto hacia los dormitorios con sus respectivos baños. Todos los espacios tienen relación directa con la naturaleza que rodea la casa.
La materialidad se define por la equilibrada combinación entre el blanco, el hormigón y el hierro hacen que el proyecto tenga su propia impronta resaltando con su entorno natural.
Losas de hormigón visto que recorren todos los espacios, acompañadas por detalles en chapa que aparecen tanto en su revestimiento como en sus parasoles y puertas, unifican visual y espacialmente a la vivienda. Y por último, el vidrio permite mostrar esta vinculación del conjunto.
Fotos: Gonzalo Viramonte
PROYECTO
AR Arquitectos / Proyecto – Arquitecta Catalina Lanza Castelli
www.ararquitectos.com.ar
Arquitectos a Cargo: Catalina Lanza Castelli; AR Arquitectos (Santiago Arzubi e Iván Revol)
Equipo de Diseño: Catalina Lanza Castelli, Santiago Arzubi, Iván Revol
Paisajismo: Selva Colección - https://www.instagram.com/selvacoleccion
INFORMACIÓN
Año finalización construcción: 2018
Superficie construida: 385 m2
Ubicación: Villa Allende Golf, Córdoba, Argentina






















































