
Casa LOP



Ubicada en un barrio privado en la Zona Norte de la Ciudad de Córdoba, en un lote entre medianeras, la casa fue proyectada para que los espacios que la componen sean usados en su totalidad, todo el tiempo. La familia que la habita está compuesta de dos adultos, pero que comparten mucho tiempo con familiares y amigos, lo que indicaba que los espacios iban a estar ocupados por mucha gente constantemente.
Para responder a esta forma de vida social, las arquitectas desarrollaron el programa de la vivienda desde la funcionalidad de la familia íntima y extendida, para que la casa sea cómoda y confortable todo el tiempo.











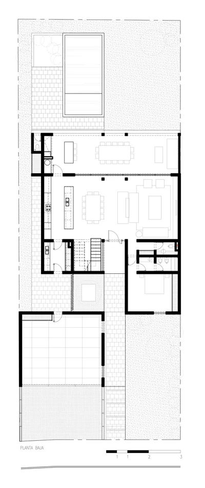
Se armó un único espacio en planta baja que contiene cocina, comedor y living, conectado en su totalidad con una galería que se vincula visualmente y espacialmente por una gran puerta ventana corrediza. Y la vivienda también se pensó desde la conexión con el exterior, enmarcando el patio desde el ingreso y vinculando la pileta con la galería.
En planta baja se incorporó una habitación para tener un espacio más íntimo diseñado para cumplir múltiples usos según sea necesario, ya sea desde dormitorio de huéspedes, gimnasio o estudio.
Las arquitectas le dieron mucha importancia a la columna vertical de circulación, desnudándola desde el ingreso y en planta alta, dándole vistas a una terraza privada.



















En la planta superior, se ubican dos dormitorios, el principal en suite con vestidor. Y se le agregó un espacio de estudio o home-office, súper requerido en los programas de vivienda post-covid.
La volumetría de la vivienda, es muy simple. Se optó por despegar el volumen de cochera y armar un recorrido con un ingreso a través de un patio interno. La planta baja se corresponde con la planta alta, salvo por un volumen que sobresale y, para generar intimidad, la planta baja solo se abre al jardín. En planta alta el vacío generado por la terraza se materializa con transparencias para generar un vínculo interior-exterior.
La materialidad de la vivienda está diferenciada en sus niveles, la planta baja por tabiquería de hormigón visto en el exterior y, ladrillo visto de color blanco, para la planta alta.
En esta obra las arquitectas, también diseñaron el interior. Utilizaron materiales nobles para armonizar con el diseño y dar calidez a la vivienda. En el interior, mucha madera de Laurel, alfombras de lana, tapizados de pana y lino, colores neutros con algunos acentos de color, empapelados símil textil, combinando la gama de colores de los negros y grises oscuros con los naturales, beige y marrones.
Fotos: Gonzalo Viramonte
PROYECTO
Fanesi & Navarro Arquitectas
Instagram: @fanesi_navarro
[email protected]
INFORMACIÓN
Año finalización construcción:2021
Ubicación: Valle Escondido, Córdoba, Argentina.
























EGGER presenta su Colección Decorativa 26+, un espacio para nuevas sensaciones.

Se inauguró la 20° edición de Estilo Pilar con su nueva propuesta Boutique





































