
Entre el bosque y el lago, una casa-puente que une generaciones, naturaleza y vida social.
Toronto, Canada. Una obra de Taylor Smyth Architects en colaboración conCecconi Simone atada a la lengua vernácula local.
Casas20 de agosto de 2021 Espacio&Confort



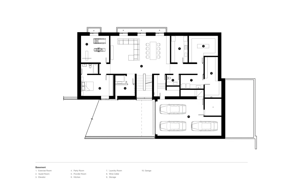
Esta nueva residencia contemporánea en el tradicional barrio de Forest Hill en Toronto es un excelente ejemplo de cómo el diseño moderno puede encajar, pero también destacarse. Grandes losas de piedra caliza de Indiana y piedra de escombros Algonquin de origen local, ambas predominantes en todo el vecindario, revestían las paredes exteriores y la base de la casa, atándola a la lengua vernácula local. Los detalles cuidadosos de las proyecciones de piedra caliza alrededor de las ventanas y las cofias crean un relieve sutil, produciendo matices y sombras que rompen la planitud de las paredes, una lección interpretada de una manera contemporánea de las casas circundantes más antiguas.














PROYECTO
Taylor Smyth Architects en colaboración con Cecconi Simone
www.taylorsmyth.com



Entre el bosque y el lago, una casa-puente que une generaciones, naturaleza y vida social.

Una vivienda de Fran Silvestre Arquitectos que convierte la sombra en refugio y la luz en paisaje.

La casa diseñada por MORA HUGHES arquitectos en Mendoza combina estética nórdica, la calidez de la madera y la música que marca el pulso de cada encuentro.

Estuvimos con la Arq Carolina Esnaola recorriendo una obra que realizó en el Quimilar. Un patio interno que divide el ambiente principal y llena de luz la casa.







Invertir en infraestructura es clave para la productividad, la equidad social y el crecimiento del país. Extracto de la entrevista a Martín Russo, de LFR Constructora.

Distribuidora Galuss, firma especializada en soluciones lumínicas para proyectos profesionales, anuncia la incorporación de dos marcas icónicas del diseño internacional: Luceplan y Artemide.

Tendencias, tecnologías e Innovación en Real Estate y Arquitectura. Jornada de capacitación para desarrollador, inmobiliarios y arquitectos.

El mercado inmobiliario argentino comienza a dar señales nítidas de reactivación tras años de volatilidad. La nueva fase se explica por la convergencia de cuatro vectores macroeconómicos: baja de tasas, dólar estable, riesgo país en descenso y financiamiento más accesible para el sector público y las empresas. Este “combo” no sólo mejora las expectativas: abarata el costo del capital, sanea balances y vuelve a poner en marcha la inversión privada.

En noviembre, la celebración del diseño continuó con la apertura de la tradicional muestra de arquitectura y diseño en sus ediciones Casa FOA Uruguay, Carrasco Boating y Casa FOA Chile, edición Zoco.










