
Entre el bosque y el lago, una casa-puente que une generaciones, naturaleza y vida social.
**hudson, pcia. de buenos aires. una vivienda permanente desarrolladatotalmente en planta baja cuyos ambientes guardan una estrecha relación con elexterior.
Casas15 de julio de 2022 Espacio&Confort



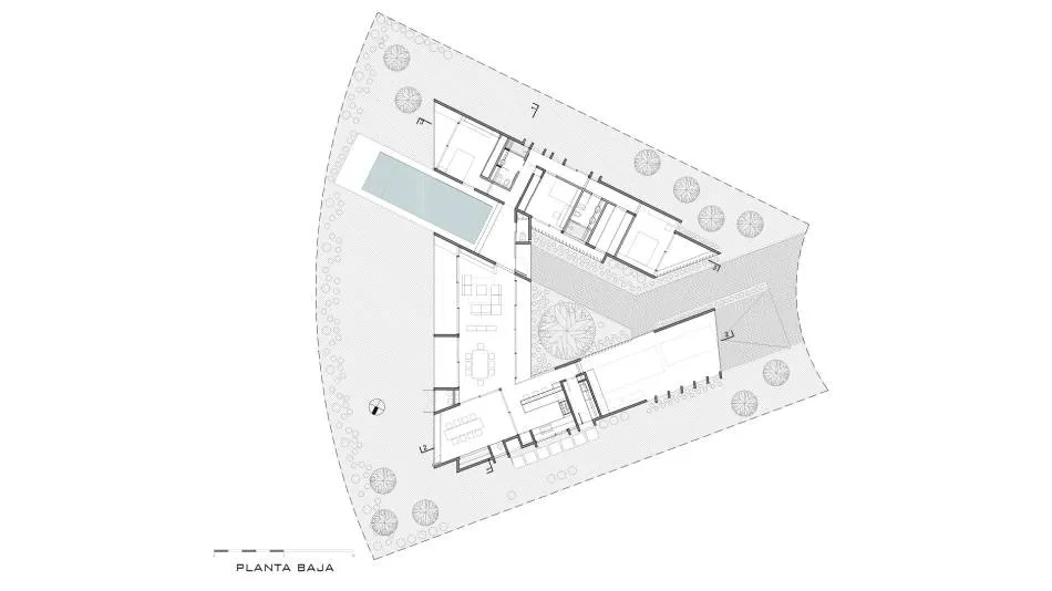
Casa Pau está ubicada en un barrio cerrado a 35 km de la ciudad de Buenos Aires. Se trata de una urbanización nueva, desarrollada en tierras de origen rural que, por su proximidad con el trazado de las autopistas, se han ido transformado en lugares aptos para vivir.
En un lugar con muy pocas viviendas vecinas, con escasa vegetación de origen y con una plantación nueva aún muy incipiente, la casa tenía que ser pensada careciendo de todos los datos que aporta un barrio consolidado.
El desafío de este encargo fue entonces concebir una vivienda que tenía que empezar a jugar sola, sentando sus propias leyes, a la espera de un completamiento que, como está reglamentado en este tipo de urbanizaciones, alienta la proliferación de objetos sueltos formalmente autistas rodeados de jardines.
El lote, en forma de sector circular, presentaba el inconveniente de un frente muy angosto para acceder al mismo y contaba con la ventaja de que la apertura en abanico hacia el fondo linda con un espacio común con unos pocos arboles aislados.




























Entre el bosque y el lago, una casa-puente que une generaciones, naturaleza y vida social.

Una vivienda de Fran Silvestre Arquitectos que convierte la sombra en refugio y la luz en paisaje.

La casa diseñada por MORA HUGHES arquitectos en Mendoza combina estética nórdica, la calidez de la madera y la música que marca el pulso de cada encuentro.

Estuvimos con la Arq Carolina Esnaola recorriendo una obra que realizó en el Quimilar. Un patio interno que divide el ambiente principal y llena de luz la casa.







Invertir en infraestructura es clave para la productividad, la equidad social y el crecimiento del país. Extracto de la entrevista a Martín Russo, de LFR Constructora.

Distribuidora Galuss, firma especializada en soluciones lumínicas para proyectos profesionales, anuncia la incorporación de dos marcas icónicas del diseño internacional: Luceplan y Artemide.

Tendencias, tecnologías e Innovación en Real Estate y Arquitectura. Jornada de capacitación para desarrollador, inmobiliarios y arquitectos.

El mercado inmobiliario argentino comienza a dar señales nítidas de reactivación tras años de volatilidad. La nueva fase se explica por la convergencia de cuatro vectores macroeconómicos: baja de tasas, dólar estable, riesgo país en descenso y financiamiento más accesible para el sector público y las empresas. Este “combo” no sólo mejora las expectativas: abarata el costo del capital, sanea balances y vuelve a poner en marcha la inversión privada.

En noviembre, la celebración del diseño continuó con la apertura de la tradicional muestra de arquitectura y diseño en sus ediciones Casa FOA Uruguay, Carrasco Boating y Casa FOA Chile, edición Zoco.










