
Entre el bosque y el lago, una casa-puente que une generaciones, naturaleza y vida social.
La Plata. Ubicada en un barrio residencial de baja densidad, fuera delcasco urbano de la ciudad, esta vivienda proyectada por la arquitecta MaríaLaura De Luca se destaca por su luminosidad y funcionalidad.
Casas08 de noviembre de 2019 Espacio&Confort



La casa que presentamos en esta nota ha sido premiada en distintos concursos; recibió una Mención en los Premios Capba I Obra Construida 2019 en la Categoría Vivienda Unifamiliar, y otra Mención Premio Capba Obra Construida 2019 en la IX BIAU Bienal de Arquitectura y Urbanismo de Mar Del Plata.
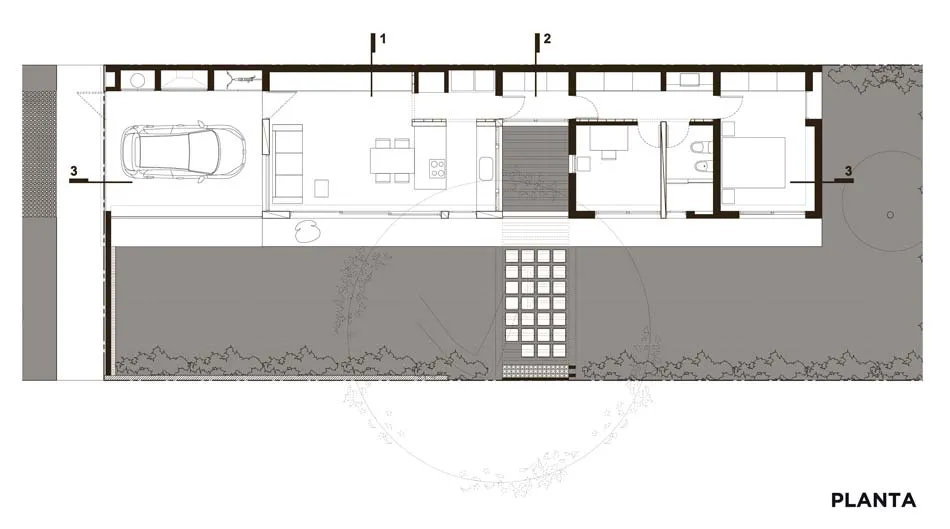
Desarrollada en un solo nivel, sobre un terreno de 267.50 m², la casa proyectada por la Arq. María Laura De Luca se apoya sobre una de sus medianeras. En este sentido, la fachada respeta volumétricamente los lineamientos linderos y la vivienda se abre completamente al interior, hacia un jardín lateral, en una arquitectura totalmente retrospectiva.
Por otra parte, y dadas las condiciones del terreno, la vivienda no tiene contacto con el exterior. Gracias a la decisión de emplazar las áreas de apoyo y servicio sobre la medianera, todos los ambientes abren al jardín, otorgando luminosidad a los espacios y conectándolos al verde que rodea la vivienda.
























Entre el bosque y el lago, una casa-puente que une generaciones, naturaleza y vida social.

Una vivienda de Fran Silvestre Arquitectos que convierte la sombra en refugio y la luz en paisaje.

La casa diseñada por MORA HUGHES arquitectos en Mendoza combina estética nórdica, la calidez de la madera y la música que marca el pulso de cada encuentro.

Estuvimos con la Arq Carolina Esnaola recorriendo una obra que realizó en el Quimilar. Un patio interno que divide el ambiente principal y llena de luz la casa.







Invertir en infraestructura es clave para la productividad, la equidad social y el crecimiento del país. Extracto de la entrevista a Martín Russo, de LFR Constructora.

Distribuidora Galuss, firma especializada en soluciones lumínicas para proyectos profesionales, anuncia la incorporación de dos marcas icónicas del diseño internacional: Luceplan y Artemide.

Tendencias, tecnologías e Innovación en Real Estate y Arquitectura. Jornada de capacitación para desarrollador, inmobiliarios y arquitectos.

El mercado inmobiliario argentino comienza a dar señales nítidas de reactivación tras años de volatilidad. La nueva fase se explica por la convergencia de cuatro vectores macroeconómicos: baja de tasas, dólar estable, riesgo país en descenso y financiamiento más accesible para el sector público y las empresas. Este “combo” no sólo mejora las expectativas: abarata el costo del capital, sanea balances y vuelve a poner en marcha la inversión privada.

En noviembre, la celebración del diseño continuó con la apertura de la tradicional muestra de arquitectura y diseño en sus ediciones Casa FOA Uruguay, Carrasco Boating y Casa FOA Chile, edición Zoco.










