
Entre el bosque y el lago, una casa-puente que une generaciones, naturaleza y vida social.
México. Obra del estudio Echauri Morales Arquitectos, esta vivienda sematerializa gracias a un juego de volúmenes, transparencias, líneas puras yconexiones con el paisaje gracias a sus magníficas terrazas.
Casas28 de noviembre de 2019 Espacio&Confort



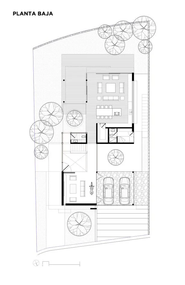
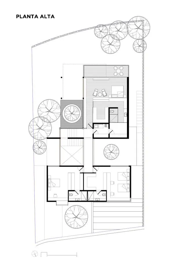
Para este increíble proyecto arquitectónico se desarrolló una casa en un terreno de 633.20 m² con un total de 461.20 m² de construcción en tres niveles, incluyendo los sótano. Ubicado en Zapopan, Jalisco, la estructura de esta obra es de concreto y acero en acabado aparente.
Dos volúmenes dislocados y separados por una franja de luz que aloja un patio y el ingreso recibidor dan lugar a esta residencia unifamiliar de dos niveles con tres dormitorios, sala, cocina, comedor y programas complementarios que logran incorporar al paisaje circundante por medio de la transparencia y los vacíos.







La idea principal de esta casa surge por la dislocación de dos volúmenes antagónicos; el primero representa la materia: cerrado de concreto dispuesto de forma horizontal flanquea la calle y resguarda el resto de la vivienda. Al interior de este cuerpo se albergan las habitaciones secundarias en planta alta y los programas públicos en planta baja. El segundo volumen se contrapone al cerrado por su transparencia: representa la luz, la penetración del exterior y el vacío. Dispuesto de forma vertical se abre hacia las áreas públicas albergando el dormitorio principal en planta alta, y la cocina, el comedor y el estar en planta baja, creando una conexión con el paisaje y las terrazas exteriores.













Entre el bosque y el lago, una casa-puente que une generaciones, naturaleza y vida social.

Una vivienda de Fran Silvestre Arquitectos que convierte la sombra en refugio y la luz en paisaje.

La casa diseñada por MORA HUGHES arquitectos en Mendoza combina estética nórdica, la calidez de la madera y la música que marca el pulso de cada encuentro.

Estuvimos con la Arq Carolina Esnaola recorriendo una obra que realizó en el Quimilar. Un patio interno que divide el ambiente principal y llena de luz la casa.







Un recubrimiento acrílico antideslizante, versátil y resistente, pensado para prevenir accidentes.

Invertir en infraestructura es clave para la productividad, la equidad social y el crecimiento del país. Extracto de la entrevista a Martín Russo, de LFR Constructora.

Distribuidora Galuss, firma especializada en soluciones lumínicas para proyectos profesionales, anuncia la incorporación de dos marcas icónicas del diseño internacional: Luceplan y Artemide.

Tendencias, tecnologías e Innovación en Real Estate y Arquitectura. Jornada de capacitación para desarrollador, inmobiliarios y arquitectos.

El mercado inmobiliario argentino comienza a dar señales nítidas de reactivación tras años de volatilidad. La nueva fase se explica por la convergencia de cuatro vectores macroeconómicos: baja de tasas, dólar estable, riesgo país en descenso y financiamiento más accesible para el sector público y las empresas. Este “combo” no sólo mejora las expectativas: abarata el costo del capital, sanea balances y vuelve a poner en marcha la inversión privada.










