
Remanso en la playa




El remanso es un concepto asociado a la acción de detenerse y relajarse, a la posibilidad de aquietarse, a buscar la calma. Es ese lugar que invita a transitar estas experiencias, alejado de lo urbano, y que permite desconectarse de lo cotidiano.
En esta vivienda, la significación del remanso se materializa por completo, porque expresa un principio de serenidad que logra combinar la quietud del bosque de Villa Robles, la cercanía a la playa y la arquitectura propuesta por el arquitecto Guillermo Teisceira.


Entonces, nos encontramos frente a un remanso por su implantación en un paraje de una geografía naturalmente privilegiada, y por la forma en que se supone el habitar.
La vivienda se implanta en un terreno de 1176 m² paralelo a la playa, de los cuales se construyeron 530 m².
Las formas simples y los volúmenes puros son ideas rectoras de este proyecto, que se estructura en tres niveles. En la fachada y el contrafrente se destacan básicamente el hormigón, el revestimiento plástico, la piedra natural San Juan y lo acompañan las aberturas de PVC foliado color madera.
El vidrio es otro de los materiales que cobra protagonismo, que junto con los balcones y terrazas logra que la casa se abra al exterior. Todo esto está vinculado a las ideas rectoras del proyecto, que aprovecha la geografía del lugar privilegiando las vistas al bosque y al mar desde cada uno de los ambientes.















Al ingresar, un subsuelo conduce al garaje doble, acompañado de un lavadero y una habitación de servicio con baño.
En el segundo nivel, que corresponde a la planta baja, se decidió alojar el área pública donde se encuentra el acceso peatonal, el living, la sala de juegos, el comedor y la cocina unificados. Allí mismo, a continuación de este espacio, una amplia galería vidriada con parrilla y barra; un ambiente todo vidriado, con vistas al bosque, ideal para disfrutar en cualquier estación del año.
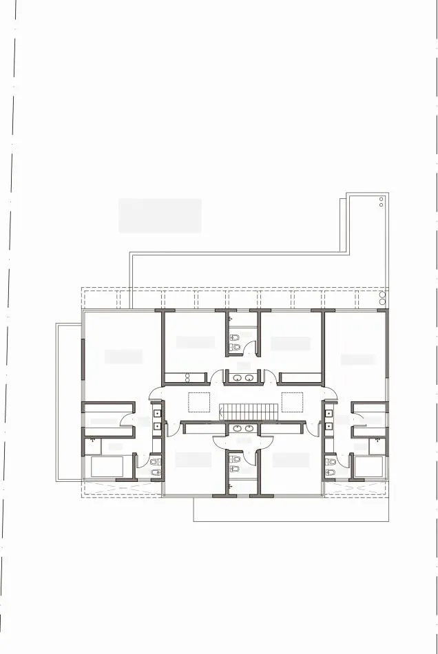
En el tercer nivel se encuentran los seis dormitorios con los que cuenta la morada, todos en suites. Los de contrafrente cuentan con terrazas propias orientadas, aprovechando las primeras vistas al mar.
Respecto a la decoración y al trabajo de interiorismo de la casa, cada elección tomada respeta conceptualmente la propuesta general.
Porcelanatos símil madera para los pisos, la escalera de doble escalón con barandas de acero inoxidable, y los colores y texturas en mobiliario y objetos, revelan elegancia, confort
y funcionalidad.
Cada detalle pensado y proyectado invita a disfrutar la experiencia de habitar un remanso.
Fotos: Diego Medina | www.diegomedina.com.ar
[ INFORMACIÓN ]
Ubicación: Villa Robles. Barrio Brisas
Sup. Terreno: 1176 m2
Sup. Construida: 530 m2
Año: 2018/2019
[ PROYECTO ]
Proyecto y dirección de obra:
Arq. Guillermo Teisceira
Arq. Mario Blangiforti
MMO Alberto Teisceira
































