
Entre el bosque y el lago, una casa-puente que une generaciones, naturaleza y vida social.
Este proyecto del Estudio Lyardet enfrentó un desafío único: combinar espacios de ocio deportivo con la funcionalidad de una vivienda familiar.
Casas07 de abril de 2025
Espacio&Confort



"Una casa es una máquina para vivir. (...) La casa debe ser el estuche de la vida, la máquina de felicidad." - Le Corbusier
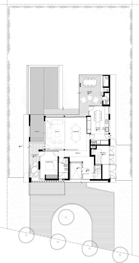
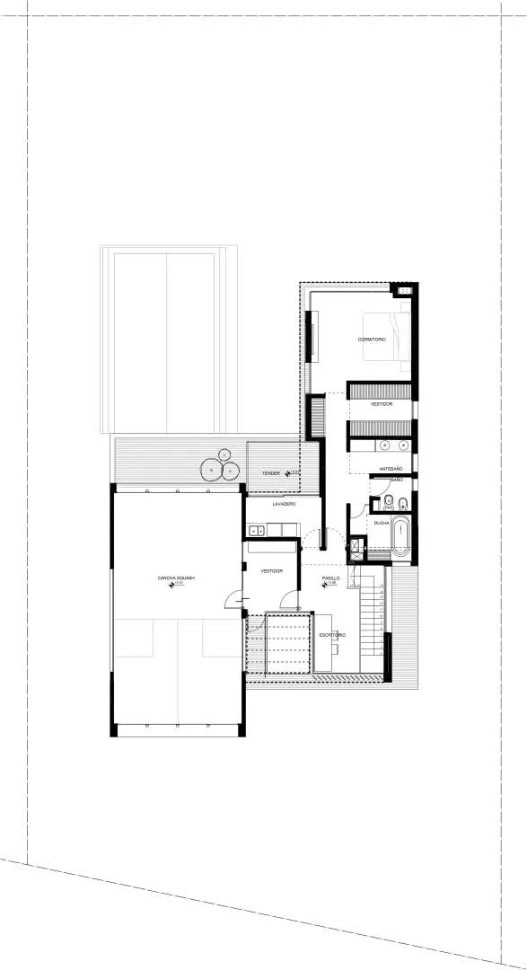
El Estudio Lyardet ha creado una obra singular que destaca por su originalidad y por la influencia de un pedido muy particular que termina definiendo su nombre. El cliente, apasionado del squash y del ocio acuático, deseaba contar en su hogar con una cancha de squash y una pileta, elementos fundamentales para su bienestar y esparcimiento. Esta solicitud, tan poco convencional, planteó un desafío interesante y motivador desde el punto de vista proyectual.


Guiado por estos requerimientos específicos, el Estudio Lyardet decidió centrar el diseño de la vivienda en torno a estos elementos. La envergadura y proporciones de la cancha de squash determinaron su ubicación en la planta alta, lo que a su vez configuró la disposición del resto de los espacios habitables que la rodean o se encuentran por debajo de ella.
El volumen considerable que ocupa la cancha, por sus dimensiones necesarias para la práctica deportiva, se convirtió en el protagonista del proyecto. Para lograr el impacto visual y la escala deseada, se optó por una materialidad acorde que, junto con la estética del hormigón y la búsqueda morfológica, dota a la casa de una impronta tectónica, moderna y juvenil.


La presencia constante del agua de la piscina, insertada de manera armoniosa en el esquema arquitectónico, completa este pedido tan original y complejo de abordar dentro de los términos clásicos de una vivienda.
Las decisiones materiales restantes para concretar el proyecto se inclinaron por contrastes bien definidos: madera, tanto natural como sintética, y porcelanatos brillantes. Estas elecciones enriquecen el diseño, aportando calidez y brillo a los diferentes espacios. La Casa Squash es un ejemplo claro de cómo una visión particular y un deseo específico pueden dar lugar a una obra arquitectónica de gran carácter y personalidad.•
Fotos: @brutostudio
PROYECTO
Arq. Christian Lyardet
Instagram: @lyardetestudio
Tel: +54 9 221 438-1961
INFORMACIÓN
Lugar: City Bell, Barrio Grand Bell 2
Año de finalización: 2022
Sup. Total: 320 m² (Cubierto+Semicubierto)




Entre el bosque y el lago, una casa-puente que une generaciones, naturaleza y vida social.

Una vivienda de Fran Silvestre Arquitectos que convierte la sombra en refugio y la luz en paisaje.

La casa diseñada por MORA HUGHES arquitectos en Mendoza combina estética nórdica, la calidez de la madera y la música que marca el pulso de cada encuentro.

Estuvimos con la Arq Carolina Esnaola recorriendo una obra que realizó en el Quimilar. Un patio interno que divide el ambiente principal y llena de luz la casa.







Un recubrimiento acrílico antideslizante, versátil y resistente, pensado para prevenir accidentes.

Invertir en infraestructura es clave para la productividad, la equidad social y el crecimiento del país. Extracto de la entrevista a Martín Russo, de LFR Constructora.

Distribuidora Galuss, firma especializada en soluciones lumínicas para proyectos profesionales, anuncia la incorporación de dos marcas icónicas del diseño internacional: Luceplan y Artemide.

Tendencias, tecnologías e Innovación en Real Estate y Arquitectura. Jornada de capacitación para desarrollador, inmobiliarios y arquitectos.

El mercado inmobiliario argentino comienza a dar señales nítidas de reactivación tras años de volatilidad. La nueva fase se explica por la convergencia de cuatro vectores macroeconómicos: baja de tasas, dólar estable, riesgo país en descenso y financiamiento más accesible para el sector público y las empresas. Este “combo” no sólo mejora las expectativas: abarata el costo del capital, sanea balances y vuelve a poner en marcha la inversión privada.










