
Moderna suntuosidad
Espacio&Confort


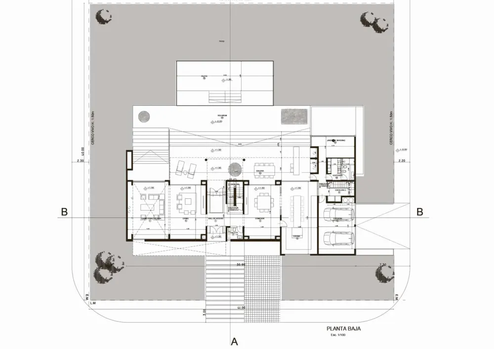
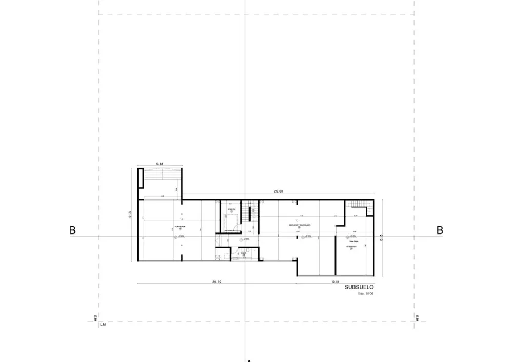
Ubicada en un barrio privado en las afueras de La Plata, esta residencia desafía las convenciones de la arquitectura contemporánea con una elegancia atemporal. Concebida por el arquitecto Marcelo García Basilio, esta casa de dimensiones imponentes se despliega en un doble lote, abarcando aproximadamente 600 metros cuadrados distribuidos en tres niveles distintivos.
Basilio ha logrado un equilibrio exquisito entre la modernidad y la tradición, utilizando materiales vanguardistas en una estructura de planta clásica. Desde el momento en que uno cruza el umbral, se encuentra inmerso en un mundo de refinamiento y sofisticación.






La residencia se articula en torno a dos ejes principales, delineando la experiencia del visitante de manera intuitiva y fluida. El eje de acceso, marcado por un pasillo que conduce al lobby principal, ofrece vistas panorámicas de la piscina, creando un ambiente de serenidad desde el primer momento. En un ala se encuentran los espacios públicos, como la sala de estar y el área de entretenimiento, mientras que en la otra ala se sitúa el comedor y una cocina de dimensiones generosas, diseñada no solo para la preparación de alimentos, sino también como un punto de encuentro para la familia y los amigos.
La ausencia de pasillos tradicionales es una característica distintiva de la casa, gracias a una ingeniosa disposición que prioriza la fluidez y la conectividad entre los espacios. Una escalera central, flanqueada por un jardín vertical en desarrollo, conecta los tres niveles, ofreciendo una experiencia de circulación vertical única.
En el nivel superior, una losa de hormigón a la vista crea una sensación de ingravidez, contrastando con la oscuridad de los volúmenes circundantes. Este enfoque en la simplicidad y la claridad arquitectónica es una firma de Basilio, quien ha sabido combinar materiales novedosos con una estética vanguardista sin sacrificar la cohesión visual.
Desde su diseño hasta su ejecución, la residencia de Marcelo García Basilio es un testimonio de su habilidad para crear espacios que trascienden lo ordinario, invitando a los residentes a sumergirse en un mundo de belleza y confort sin igual. Una síntesis magistral de innovación y tradición.
Fotos: Arq. Heber Guruciaga | Ig: @heberguru
PROYECTO Y DIRECCIÓN
Arq. Marcelo Farcia Basilio
COLABORACIONES
Interiorismo:
DRD / Duranti + Ruiz Díaz
Estudio de arquitectura y diseño
Proyecto de iluminación:
Parallel iluminación arquitectónica
María Julia Garat
IG: @parallel.ia
Paisajismo:
Estudio TRAMA, naturaleza y paisaje.
Amparo Becerra, Bióloga Paisajista
y María Moneda, Arquitecta.















































