
La pequeña casa con una gran terraza: Un oasis urbano en Tokio
Espacio&Confort


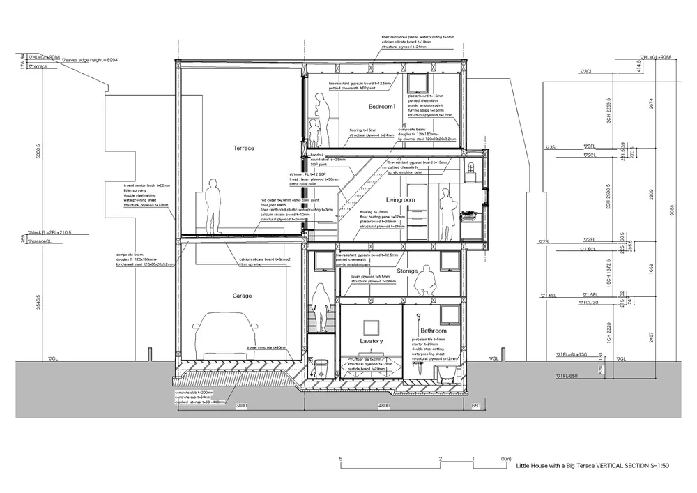
La pequeña casa con una gran terraza es un ejemplo lúcido de un amplio espacio externo en una pequeña residencia urbana en un sitio con una limitada área en Tokio. A lo largo del proceso de diseño de la casa, tratamos de demostrar que tiene un rico espacio exterior privado, por lo que era importante hacer la diferencia crucial con la calidad de vida al interior de ella, así como obtener diversas posibilidades para la actividad externa.
Lo primero que decidimos fue tener un espacio al aire libre que esté junto a la parte principal de la residencia, y conectarlo mediante la apertura de ventanas. Grandes ventanas, que son necesarias para ampliar los espacios interiores, para iluminar y ventilar, son una de las partes más costosas de la casa, por lo que se concentran en lugares seleccionados, eficaz para mejorar la calidad de vida de los espacios interiores.

Teniendo en cuenta que la solicitud inicial de la pareja cliente era tener una gran terraza para hacer yoga libremente bajo el sol, conectar la terraza a la sala de estar y el dormitorio por medio de grandes ventanales fue la mejor manera de ofrecer aire fresco y luz del día a los espacios interiores, como tener un órgano que permite respirar a la casa.


El segundo nivel, en la mitad oriental del sitio, fue electo como el espacio privado al aire libre. Esto se debe a que este lugar se enfrenta a la azotea del garage de una casa vecina, de un nivel, al lado sur. Gracias a la altura inferior del garage, este espacio está expuesto a la luz natural del sol en la zona residencial de alta densidad, lo que es una situación relativamente rara en Tokio.

Al hacer un gran tubo rectangular que penetra de norte a sur, se obtiene un amplio y luminoso espacio abierto. Al mismo tiempo, la intimidad de este espacio externo esta protegida contra ventanas cercanas de casas vecinas al oriente por medio del muro del tubo que se cierra en esta dirección.

El tubo se trató de hacer lo más grande posible debido a que un mayor espacio exterior es capaz de captar más sol y un cielo azul mayor. Sin embargo, tener un gran espacio exterior en el limitado sitio significó la reducción del espacio interior de la casa. Para compensar la pérdida de superficie del suelo, se insertó un ático para el almacenamiento entre el primer y segundo nivel, cuya altura de techo es de menos de 1.400 mm.

Mediante esta disposición, la casa obtiene una cantidad suficiente de espacio, mientras que la luz natural de la sala de estar y terraza se ha mejorado debido a que los niveles de estos espacios fueron empujados hacia arriba.
Como ya se ha visto, la pequeña casa con una gran terraza crea espacios interiores confortables al conectarlos a la extensión ilimitada de espacio exterior. La manera más eficaz para lograr la amplitud real de las casas urbanas de alta densidad residencial es incorporar espacios externos ilimitados en el diseño en lugar de tratar de hacer espacios internos más grandes, que está inevitablemente limitado por el tamaño del área del sitio.•
PROYECTO: Takuro Yamamoto Architects
Ubicación: Barrio de Edogawa, Tokio
Área del Sitio: 70.13 m2
Área de Construcción: 41.91 m2
Superficie Total: 74,63 m2





















EGGER presenta su Colección Decorativa 26+, un espacio para nuevas sensaciones.

Se inauguró la 20° edición de Estilo Pilar con su nueva propuesta Boutique































