
Sin límites




“Ustedes en música y nosotros en arquitectura, a todos nos interesa la estructura. Para mí la estructura es la creadora de la luz. Cuando escojo un orden estructural que exige una columna tras otra, aparece un ritmo así: no luz, luz, no luz, luz, no luz, luz. (…). La arquitectura crea la sensación de estar en un mundo dentro de otro mundo (…)”
Louis Kahn, en L'Architecture d'Aujourd'hui
Implantada en un lote del Barrio Nordelta, provincia de Buenos Aires, con particulares condiciones topográficas dadas tanto por su geometría como por su relación con el lugar, la vivienda intenta abordar la problemática proyectual que representa el pensar la vivienda en el ámbito de un barrio privado.
Bordeado por agua en dos de sus lados, hacia donde se abren las visuales y lindando con una construcción existente, el edificio busca generar diálogos permanentes con el entorno. Algunas de las preguntas que fundamentaron el proceso proyectual, tienen que ver con la relación interior-exterior. ¿Como se debería habitar este paisaje? ¿Qué implicaría redefinir lo doméstico?













La casa plantea como eje de dicha problemática la definición de un paisaje interior; un patio que no sólo articula los distintos usos de la vivienda y sus lógicas de habitabilidad, sino que se presenta como un espacio articulador entre dos paisajes exteriores: el paisaje interior y el exterior. A partir este vacío, el espacio se redefine como una serie de transiciones verticales y horizontales, entre lo público y lo privado, buscando que los límites sean disueltos.
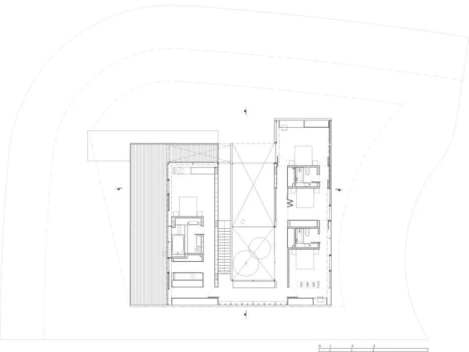
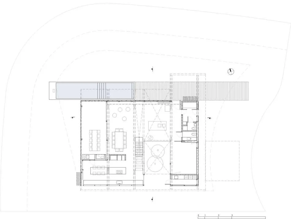
En la planta baja la pileta flotando sobre la barranca, articula la laguna con el estar, y el semicubierto del quincho. El estar aparece como un lugar intermedio entre dos exteriores distintos; un “exterior propio” y el que le pertenece al paisaje. En la planta alta, los dormitorios quedan contenidos en dos volúmenes definidos también por el vacío del patio, los cuales dan distintas respuestas al entorno.
Centrando la problemática en el tema matérico-estructural, el proyecto indaga sobre el par material hormigón-madera, proponiendo al primero como el material que define la estructura tectónico-espacial del proyecto. Los tabiques soportan las losas que a su vez cuelgan de las vigas superiores. La estructura, con sus diferencias de texturas y dimensiones, define los límites de los espacios y se hace presente potenciando la planta liberada del sector público y posibilitando fenoménicamente que dicho espacio sea totalmente etéreo en cuanto a sus límites; dado que las carpinterías pueden abrirse en su totalidad conformando un espacio continuo semicubierto. El límite es el horizonte del paisaje que plantea el lugar.
Fotos: Albano García
PROYECTO
ATV Arquitectos
Azubel Federico - Trabucchi Ignacio - Viggiano Walter
www.atvarquitectos.com
Equipo de Proyecto: Arq. Anabella Gatto, Arq. Guadalupe Pinazo
Asesor estructural: Ing. Ángel Santos
Superficie o Volumen construido: 510 m²



















EGGER presenta su Colección Decorativa 26+, un espacio para nuevas sensaciones.

Se inauguró la 20° edición de Estilo Pilar con su nueva propuesta Boutique












