
Superposición de volúmenes



La morfología de esta casa surge de la superposición de varios volúmenes materializados como cajas independientes; cajas que se cierran hacia sus laterales y se abren solo en su frente; en consonancia con las buenas orientaciones y las caras libres con perspectiva larga.
Hacia la calle y el fondo propio de la vivienda, cada una de estas cajas, que contiene una estancia, enmarca una piel de parasoles de madera, corredizos, que son muy característicos de la vivienda, y le proporcionan privacidad, aislamiento térmico y acústico, y un dinamismo que permite tener una fachada en movimiento, según el uso y las horas del día.
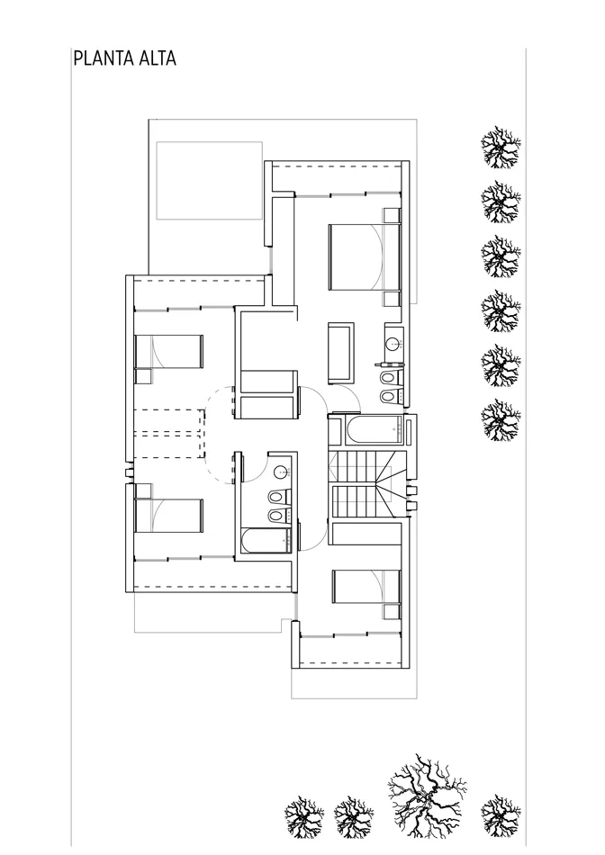
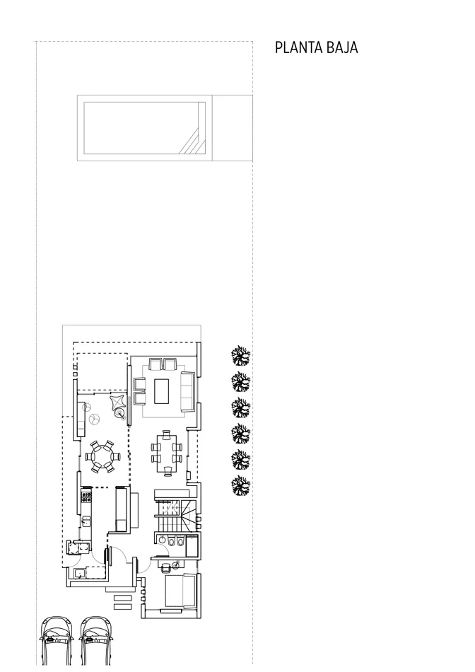
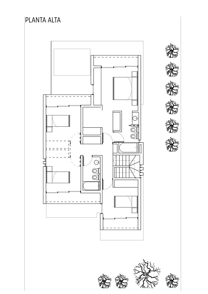
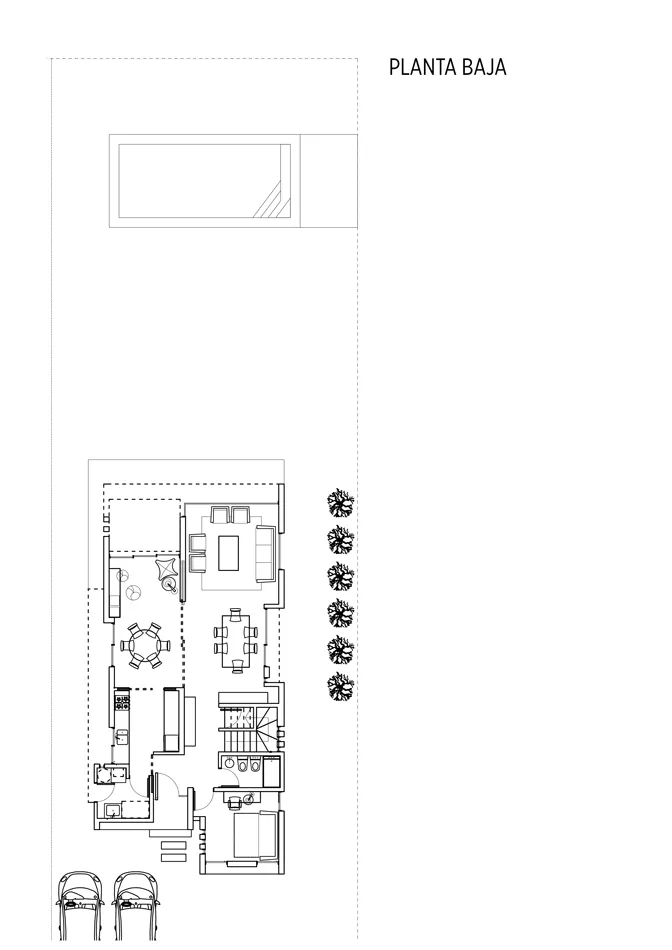
Respecto de lo funcional, aloja en planta baja las actividades sociales, con francas expansiones hacia el parque; y en planta alta se ubican los dormitorios, siendo el principal en suite con uncómodo vestidor.




























Es una vivienda de carácter compacto de casi 230 m² de superficie, resultante de varias restricciones respecto de retiros laterales y de frente, así como la pretensión de un parque amplio. El núcleo vertical y los servicios se ubican en el centro de la planta del proyecto, minimizando espacios de circulación.
La planta baja se dispone de manera tal que permita la mayor flexibilidad posible en sus usos, en ese sentido, próximo al ingreso a la vivienda aparece un estudio que en algunas oportunidades se transforma en cuarto de huéspedes; y el área de play room, a continuación del comedor diario puede separarse a través de un cerramiento plegable del estar de la vivienda, admitiendo en simultáneo el uso de varios ambientes independientes, incluso teniendo cada uno sus propias expansiones.
Respecto de la elección de materiales, es una vivienda construida con materiales tradicionales, hormigón, mampostería y frentes acristalados, que se complementan con este sistema de parasoles móviles tan distintivo dando por resultado una imagen moderna y cálida a la vez.
Fotos: Lean Arló
PROYECTO
Arq. Marcos Alessio
Arq. Romina Stoichevich
www.as-arquitectos.com.ar
221-154553202
INFORMACIÓN
Ubicación: Barrio El Quimilar.
Año de construcción: 2017
Sup. del terreno: 900 m²
Sup. de la casa: 230 m²




























EGGER presenta su Colección Decorativa 26+, un espacio para nuevas sensaciones.

Se inauguró la 20° edición de Estilo Pilar con su nueva propuesta Boutique









































